Contact met de makelaar

Deze woning is gevonden buiten ons eigen netwerk. Met de knop hieronder kom je direct bij de aanbieder terecht.

Nieuw

Jan van Galenlaan 31

Bekijk kaart
1901 WD Castricum (Kooiweg)
€ 700.000 k.k.
  • 164 m²
  • 6 kamers
  • 1964

Samenvatting

  • Deze woning wordt sinds 28 januari 2026 aangeboden door Kloes & Goudsblom makelaardij Castricum;
  • De tussenwoning heeft een woonoppervlakte van 164 m² en beschikt over 6 kamers, waarvan 5 slaapkamers;
  • De woning is gebouwd In 1964 en ligt in de buurt Kooiweg in Castricum.

Beschrijving

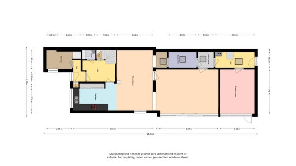
In de groene wijk van Castricum staat een ruime hoekwoning op een perceel van 332 m². Deze woning beschikt over vijf slaapkamers en is levensloopbestendig door de voorbereidingen voor een slaapkamer en badkamer op de begane grond. De uitbouw aan de achterzijde zorgt voor een lichte woonkamer met uitzicht op de tuin. De woning heeft duurzame upgrades ondergaan, zoals kunststof kozijnen met isolatieglas en vloerverwarming. De moderne keuken is vernieuwd in 2024. Op de eerste verdieping zijn vier slaapkamers en een functionele badkamer. De riante tuin biedt veel privacy en mogelijkheden voor een zonnig terras. Dichtbij scholen, winkels en natuurgebieden, met uitstekende verbindingen naar Haarlem en Amsterdam.

Overdracht

Vraagprijs
€ 700.000 k.k.
Aangeboden sinds
28-01-2026
Status
Beschikbaar
Beschikbaar
Per direct

Oppervlakte en inhoud

Woonoppervlakte
164 m²
Perceeloppervlakte
332 m²

Bouw

Type woning
Huis
Soort woning
Tussenwoning (rijtjeshuis), Eengezinswoning
Soort bouw
Bestaande bouw
Bouwjaar
1964

Indeling

Aantal kamers
6
Aantal slaapkamers
5
Aantal badkamers
2

Buitenruimte

Dakterras
Niet aanwezig

Energie

Energielabel
A
Meld een probleem met deze woning