- 160 m²
- 5 kamers
- 1981
Samenvatting
- Deze woning wordt sinds 11 oktober 2025 aangeboden door Rietveld Makelaars;
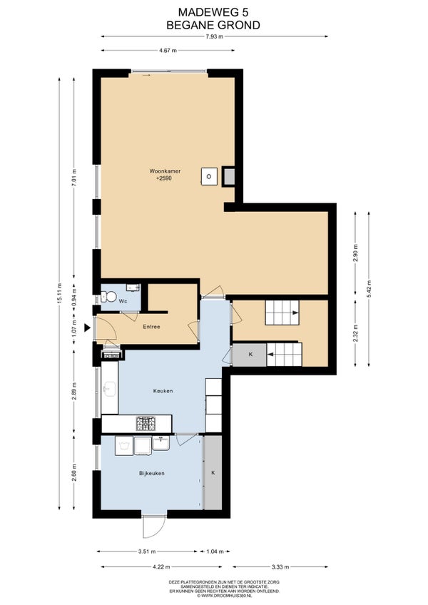
- De geschakelde woning heeft een woonoppervlakte van 160 m² en beschikt over 5 kamers, waarvan 3 slaapkamers;
- De woning is gebouwd In 1981 en ligt in de buurt Bakkum-Noord in Castricum;
- De woning beschikt onder andere over de volgende voorzieningen: Kabel TV, Rookkanaal, Buitenzonwering, Douche, Dakraam, Schuifdeuren, Bergruimte, Toilet, Wasruimte.
Beschrijving
Overdracht
- Vraagprijs
- € 1.250.000 k.k.
- Aangeboden sinds
- 11-10-2025
- Status
- Beschikbaar
- Beschikbaar
- In overleg
- Onderhoudsstaat
- Goed
Oppervlakte en inhoud
- Woonoppervlakte
- 160 m²
- Perceeloppervlakte
- 2.645 m²
- Inhoud
- 645 m³
Bouw
- Type woning
- Huis
- Soort woning
- Geschakelde woning, Woonboerderij
- Soort bouw
- Bestaande bouw
- Bouwjaar
- 1981
- Ligging
-
- Aan een rustige weg
- Landelijk gebied
- Open gebied
- Vrij uitzicht
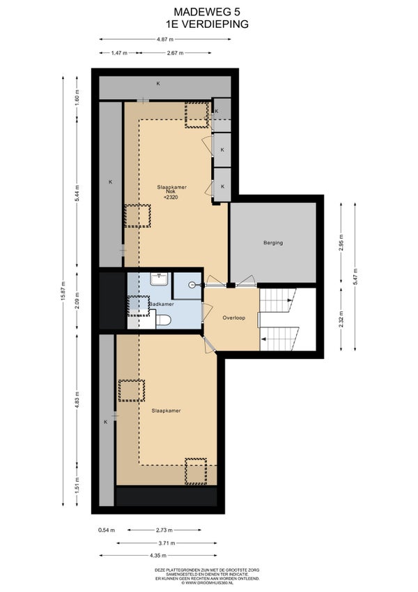
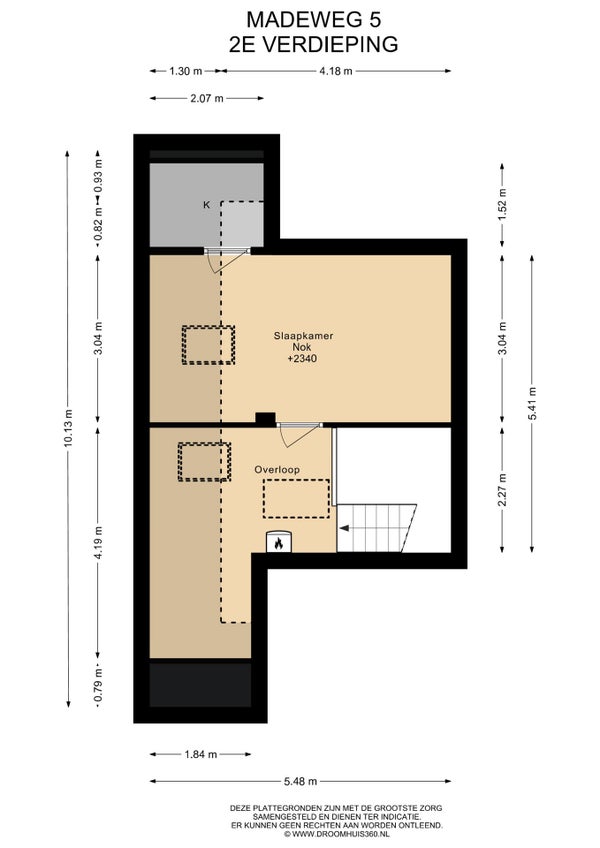
Indeling
- Aantal kamers
- 5
- Aantal slaapkamers
- 3
- Aantal badkamers
- 1
- Aantal woonlagen
- 4
- Voorzieningen
-
- Kabel TV
- Rookkanaal
- Buitenzonwering
- Douche
- Dakraam
- Schuifdeuren
- Bergruimte
- Toilet
- Wasruimte
Buitenruimte
- Balkon
- Niet aanwezig
- Tuin
- Aanwezig
- Tuinbeschrijving
- tuin rondom
- Dakterras
- Niet aanwezig
Energie
- Isolatie
- Dubbele beglazing, Dakisolatie, Muurisolatie
- Verwarming
- CV-ketel
- Warm water
- CV-ketel
- Cv-ketel
- Quinta 28c (Gas, Eigendom)
- Energielabel
- A
Bergruimte
- Schuur/Berging
- Aanwezig
- Omschrijving
- Vrijstaand steen
Parkeergelegenheid
- Aanwezig
- Ja
- Soort parkeergelegenheid
- Op eigen terrein
Garage
- Aanwezig
- Nee