Contact met de makelaar

Deze woning is gevonden buiten ons eigen netwerk. Met de knop hieronder kom je direct bij de aanbieder terecht.

Nieuwe Uitleg

Bekijk kaart
7721 BZ Dalfsen (Vechtvliet-Leemcule)
€ 525.000 k.k.
  • 109 m²
  • 5 kamers
  • 1964

Samenvatting

  • Deze woning wordt sinds 3 maanden aangeboden door Gjaltema Verzekeringen - Hypotheken - Makelaardij;
  • De tussenwoning heeft een woonoppervlakte van 109 m² en beschikt over 5 kamers, waarvan 4 slaapkamers;
  • De woning is gebouwd In 1964 en ligt in de buurt Vechtvliet-Leemcule in Dalfsen.

Beschrijving

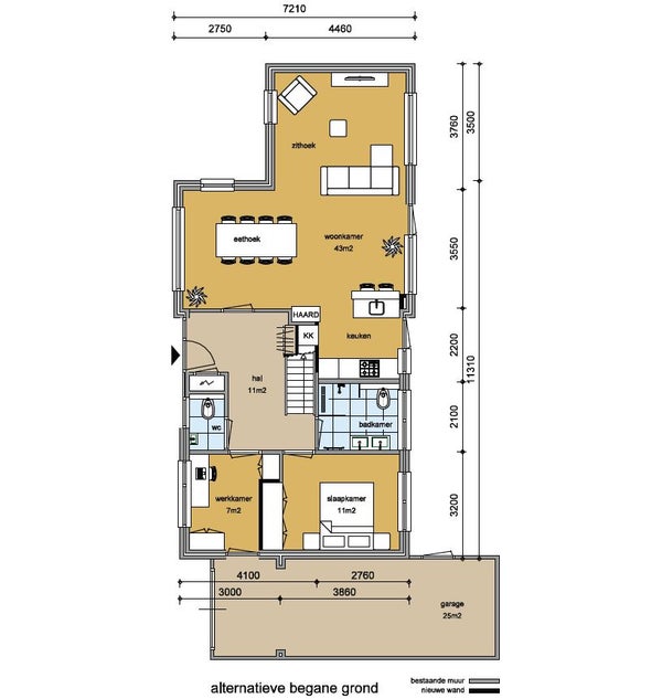
Deze ruime vrijstaande woning, geschakeld met een garage, ligt op een perceel van 448 m² in een vriendelijke buurt. Met alle voorzieningen op de begane grond is het ideaal voor gelijkvloers wonen, en met slaapkamers op de verdieping ook geschikt voor (jonge) gezinnen.

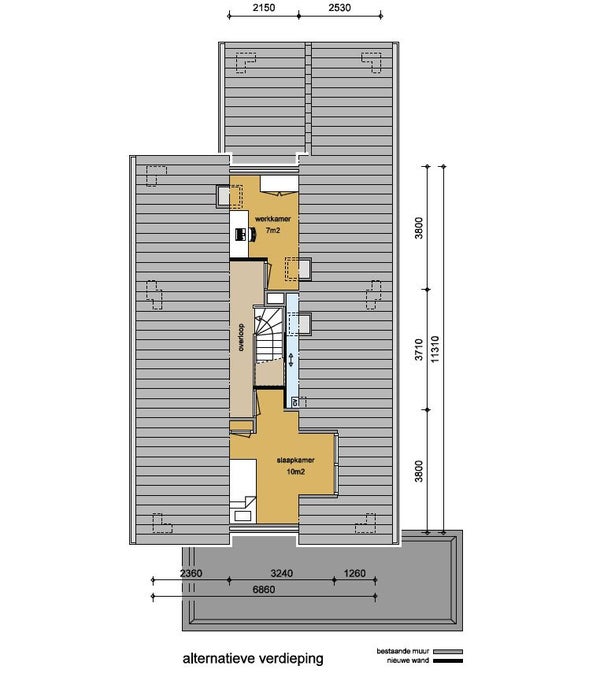
De indeling omvat een lichte woonkamer met tuin toegang, een dichte keuken en een hal met toegang tot twee grote en een kleine slaapkamer. De kleine slaapkamer biedt opties voor uitbreiding van de keuken. Op de eerste verdieping is er een ruime overloop met voldoende bergruimte en een slaapkamer met dakkapel.

De tuin is rondom de woning en er is een ruime garage aanwezig. Deze woning is goed onderhouden, maar kan verder gepersonaliseerd worden.

Woonoppervlakte: 109 m², bouwjaar: 1964, energielabel: E, en een maandlasten van € 324,-. Gelegen nabij het centrum van Dalfsen en de A28.

Overdracht

Vraagprijs
€ 525.000 k.k.
Prijs per m²
€ 4.817
Aangeboden sinds
30-10-2025
Status
Beschikbaar
Beschikbaar
Per direct

Oppervlakte en inhoud

Woonoppervlakte
109 m²
Perceeloppervlakte
448 m²

Bouw

Type woning
Huis
Soort woning
Tussenwoning (rijtjeshuis), Eengezinswoning
Soort bouw
Bestaande bouw
Bouwjaar
1964

Indeling

Aantal kamers
5
Aantal slaapkamers
4
Aantal badkamers
1

Buitenruimte

Dakterras
Niet aanwezig

Energie

Energielabel
E
Meld een probleem met deze woning