Contact met de aanbieder

Deze woning is gevonden buiten ons eigen netwerk. Via de knop hieronder ga je direct naar de website van de aanbieder.

Nieuw

Ankerstraat

Bekijk kaart
2586 RJ Den Haag (Scheveningen Badplaats)
€ 365.000 k.k.
  • 43 m²
  • 2 kamers
  • 1865

Samenvatting

  • Deze woning wordt sinds 28 februari 2026 aangeboden door DOEN NVM Makelaars - Voorburg;
  • De tussenwoning heeft een woonoppervlakte van 43 m² en beschikt over 2 kamers, waarvan 1 slaapkamer;
  • De woning is gebouwd In 1865 en ligt in de buurt Scheveningen Badplaats in Den Haag.

Beschrijving

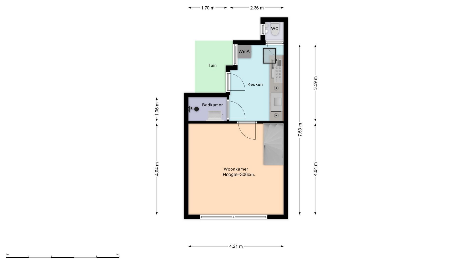
In een rustige, pittoreske hofje in Scheveningen ligt deze charmante visserswoning met een prachtige gevel op de hoek. Op loopafstand bevinden zich het strand en de gezellige winkelstraten zoals de Keizerstraat, Badhuisstraat en de Fred. De haven van Scheveningen met restaurants en terrassen is dichtbij, terwijl het centrum van Den Haag op 15 minuten fietsen ligt. De woning heeft een entree via het hofje met een voortuin, en in de lichte woonkamer heb je toegang tot de keuken met inbouwapparatuur. Boven is er een ruime slaapkamer met dakkapel. De woning is goed onderhouden met recentelijk vernieuwde badkamer en dakbedekking. Met een woonoppervlakte van 43,3 m² en uitstekende isolatie is dit een unieke kans in een beschermd stadsgezicht.

Overdracht

Vraagprijs
€ 365.000 k.k.
Prijs per m²
€ 8.488
Aangeboden sinds
28-02-2026
Status
Beschikbaar
Beschikbaar
Per direct

Oppervlakte en inhoud

Woonoppervlakte
43 m²

Bouw

Type woning
Huis
Soort woning
Tussenwoning (rijtjeshuis), Eengezinswoning
Soort bouw
Bestaande bouw
Bouwjaar
1865

Indeling

Aantal kamers
2
Aantal slaapkamers
1
Aantal badkamers
2

Buitenruimte

Dakterras
Niet aanwezig

Energie

Energielabel
E
Meld een probleem met deze woning