Contact met de makelaar

Deze woning is gevonden buiten ons eigen netwerk. Met de knop hieronder kom je direct bij de aanbieder terecht.

Sloe 1

Bekijk kaart
5751 ZZ Deurne (Koolhof)
€ 449.000 k.k.
  • 130 m²
  • 5 kamers
  • 1975

Samenvatting

  • Deze woning wordt sinds 22 oktober 2025 aangeboden door Assurantie- en Makelaarskantoor Swinkels;
  • De hoekwoning heeft een woonoppervlakte van 130 m² en beschikt over 5 kamers, waarvan 4 slaapkamers;
  • De woning is gebouwd In 1975 en ligt in de buurt Koolhof in Deurne;
  • De woning beschikt onder andere over de volgende voorzieningen: Bad, Douche, Bergruimte, Toilet.

Beschrijving

Overdracht

Vraagprijs
€ 449.000 k.k.
Aangeboden sinds
22-10-2025
Status
Beschikbaar
Beschikbaar
In overleg
Onderhoudsstaat
Goed

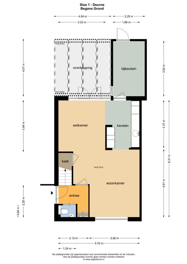
Oppervlakte en inhoud

Woonoppervlakte
130 m²
Perceeloppervlakte
475 m²
Inhoud
465 m³

Bouw

Type woning
Huis
Soort woning
Hoekwoning, Eengezinswoning
Soort bouw
Bestaande bouw
Bouwjaar
1975
Ligging
  • Aan een rustige weg
  • In een woonwijk
  • Vrij uitzicht

Indeling

Aantal kamers
5
Aantal slaapkamers
4
Aantal badkamers
1
Aantal woonlagen
3
Voorzieningen
  • Bad
  • Douche
  • Bergruimte
  • Toilet

Buitenruimte

Balkon
Niet aanwezig
Tuin
Aanwezig (471 m²)
Tuinbeschrijving
achtertuin, voortuin, zijtuin
Dakterras
Niet aanwezig

Energie

Isolatie
Dubbele beglazing, Dakisolatie, Muurisolatie
Verwarming
CV-ketel
Warm water
CV-ketel
Cv-ketel
Nefit (Gas, uit 2016, Eigendom)
Energielabel
C

Parkeergelegenheid

Aanwezig
Ja
Soort parkeergelegenheid
Op eigen terrein

Garage

Aanwezig
Nee
Meld een probleem met deze woning
Contact met de makelaar Bel