Contact met de makelaar

Deze woning is gevonden buiten ons eigen netwerk. Met de knop hieronder kom je direct bij de aanbieder terecht.

Nieuw

Peelven 25

Bekijk kaart
5751 NM Deurne (Verspreide huizen Deurne)
€ 449.000 k.k.
  • 125 m²
  • 6 kamers
  • 2011

Samenvatting

  • Deze woning wordt sinds 14 januari 2026 aangeboden door Vastgoed-Totaal;
  • De tussenwoning heeft een woonoppervlakte van 125 m² en beschikt over 6 kamers, waarvan 4 slaapkamers;
  • De woning is gebouwd In 2011 en ligt in de buurt Verspreide huizen Deurne in Deurne;
  • De woning beschikt onder andere over de volgende voorzieningen: Bad, Glasvezelaansluiting, Mechanische ventilatie, Douche, Toilet.

Beschrijving

Instapklare tussenwoning aan het Peelven - Deurne

Zoekt u een moderne, instapklare woning in een gewilde woonwijk van Deurne? Dan zal deze fraai afgewerkte tussenwoning aan het Peelven u zeker aanspreken. Met een woonoppervlakte van circa 125 m², royale vertrekken, vier fijne slaapkamers en een grote zolderverdieping (daar is de vierde slaapkamer gerealiseerd) woont u hier comfortabel, energiezuinig én met veel privacy.

BEZICHTIGEN?
Wilt u een afspraak maken voor een bezichtiging? Dan ontvangen wij uw aanvraag graag via 'plan een bezichtiging' op de ****** site.
Wij nemen dan telefonisch contact met u op.

Hoogtepunten
Woonoppervlakte: ca. 125 m², gelegen in een gewilde woonwijk van Deurne
Ruimte: royale leefruimtes, vier slaapkamers
Staat van de woning: goed onderhouden, modern afgewerkt en instapklaar
Bijgebouw: vrijstaande royale berging met een achterom
Energiezuinig: bodemwarmtepomp met zonneboiler; vloerverwarming en koeling in de zomermaanden
Ligging: tegenover een speeltuintje in een jonge, gezellige buurt met fijne buren
Privacy: geen inkijk in de tuin – u geniet van rust en beschutting

Indeling
Begane grond
Hal
De verzorgde hal biedt toegang tot de toiletruimte en de woonkamer. U treft hier een tegelvloer met vloerverwarming, gestuukte wanden en plafonds en voldoende ruimte voor uw garderobe—een nette, praktische ontvangst.

Woonkamer
De moderne woonkamer voelt direct prettig aan: een pvc-vloer met vloerverwarming, gestuukte wanden en plafonds, een royale zithoek en veel daglicht dankzij de grote raampartij. De ruimte is sfeervol en functioneel ingedeeld, met een fijne zithoek voor uw dagelijkse comfort.

Keuken
De open, L-vormige keuken sluit naadloos aan op de woonkamer. Ook hier vindt u een pvc-vloer met vloerverwarming en gestuukte wanden en plafonds. De keuken is keurig afgewerkt en het grote raam zorgt voor extra lichtinval tijdens het koken.
Apparatuur: koelkast, vaatwasser, inductiekookplaat en hete-lucht oven.

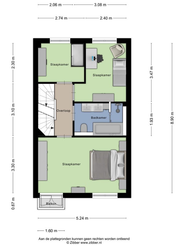
Eerste verdieping
Slaapkamers
Op de eerste verdieping beschikt u over drie nette slaapkamers met laminaatvloeren, gestuukte wanden en fijne draaikiepramen met horren in alle kamers. Stuk voor stuk leuke, verzorgde slaapkamers—ideaal als ouderslaapkamer, kinderkamers of thuiswerkplek.

Badkamer
De royale, volledig betegelde badkamer is keurig onderhouden en van alle gemakken voorzien: ligbad, inloopdouche, toilet en een dubbele wastafel met meubel. Dankzij vloerverwarming en ingebouwde speakers heeft u hier een comfortabele beleving.

Zolder
Via een vaste trap bereikt u de zeer ruime zolderverdieping, uitstekend geschikt als vierde slaapkamer of werkplek. U beschikt over een dakraam, laminaatvloer, gestuukte wanden en een praktische kastenwand met schuifdeuren voor extra opslag. Daarnaast is er een aparte ruimte voor het witgoed en de warmtepompinstallatie inclusief zonneboiler.

Tuin
De achtertuin biedt veel privacy en geen inkijk, waardoor u in alle rust kunt genieten. De tuin is sfeervol en praktisch ingericht, voorzien van een nette overkapping waar u heerlijk kunt ontspannen.

Bijgebouw
Achterin de tuin staat een vrijstaande, royale berging—ideaal voor fietsen, tuinspullen en extra opslag.

Ligging & bereikbaarheid
U woont hier rustig maar centraal in Deurne, tegenover een speeltuintje in een jonge, gezellige buurt met fijne buren. Dagelijkse voorzieningen zoals supermarkten, scholen en sportfaciliteiten bevinden zich op korte afstand.
Deze woning bevindt zich op een unieke locatie: direct naast het prachtige bos, waar je heerlijk kunt wandelen en genieten van de natuur. Bovendien ligt de gezellige kinderboerderij van het Rijtven op slechts vijf minuten lopen. Een toplocatie voor rust, ruimte én plezier voor het hele gezin!”

Openbaar vervoer: het NS-station Deurne is binnen fietsafstand bereikbaar, met rechtstreekse verbindingen richting Eindhoven en Venlo.
Wegennet: snelle aansluiting op de N270 richting Helmond en Venray; via A67 (o.a. afrit Liessel) rijdt u vlot naar Eindhoven en Venlo.
Bus: bushaltes bevinden zich in de omgeving, met verbindingen naar het centrum en omliggende kernen.

Duurzaamheid & comfort
Dankzij de warmtepomp met zonneboiler woont u hier energiezuinig en comfortabel. De vloerverwarming (begane grond en badkamer) zorgt voor een gelijkmatige warmteverdeling in de winter, terwijl de warmtepomp in de zomer koelt voor een aangenaam binnenklimaat.

AANVULLENDE BIJZONDERHEDEN

  • Verkopers verlangen een waarborgsom/bankgarantie ter grootte van 10% van de koopsom.
  • Wilt u weten wat de verkoopmogelijkheden van uw eigen woning zijn? Neem gerust eens contact met ons op voor een vrijblijvend verkoopadvies.
  • Partijen zijn pas gebonden als er een schriftelijke koopovereenkomst is getekend.
  • De plattegronden dienen er uitsluitend voor om u een indruk te geven van de indeling.
  • Ons kantoor besteedt de uiterste zorg aan de betrouwbaarheid en actualiteit van de gegevens. Onjuistheden en onvolledigheden kunnen echter voorkomen.
    Aan de door ons gepresenteerde gegevens waaronder de teksten en plattegronden kunnen geen rechten worden ontleend.
    Twijfelt u aan de juistheid van de gegevens, vraag dan hoe deze zijn verkregen of kom nog een keer kijken. Probeer te allen tijde alle voor u relevante informatie vooraf te verkrijgen.

Overdracht

Vraagprijs
€ 449.000 k.k.
Aangeboden sinds
14-01-2026
Status
Beschikbaar
Beschikbaar
In overleg
Onderhoudsstaat
Goed

Oppervlakte en inhoud

Woonoppervlakte
125 m²
Perceeloppervlakte
150 m²
Inhoud
438 m³

Bouw

Type woning
Huis
Soort woning
Tussenwoning (rijtjeshuis), Eengezinswoning
Soort bouw
Bestaande bouw
Bouwjaar
2011
Ligging
  • Aan een rustige weg
  • In een woonwijk

Indeling

Aantal kamers
6
Aantal slaapkamers
4
Aantal badkamers
1
Aantal woonlagen
3
Voorzieningen
  • Bad
  • Glasvezelaansluiting
  • Mechanische ventilatie
  • Douche
  • Toilet

Buitenruimte

Balkon
Niet aanwezig
Tuin
Aanwezig (150 m²)
Tuinbeschrijving
achtertuin, voortuin
Achterom
Niet aanwezig
Dakterras
Niet aanwezig

Energie

Isolatie
Dubbele beglazing, Vloerisolatie, Dakisolatie, Muurisolatie
Verwarming
Gedeeltelijke vloerverwarming
Warm water
Zonneboiler
Energielabel
A

Bergruimte

Schuur/Berging
Aanwezig
Omschrijving
Vrijstaand steen

Parkeergelegenheid

Aanwezig
Ja
Soort parkeergelegenheid
Openbaar

Garage

Aanwezig
Nee
Meld een probleem met deze woning