- 107 m²
- 5 kamers
- 1986
Samenvatting
- Deze woning wordt sinds 27 januari 2026 aangeboden door Droomhuis Makelaardij Rheden;
- De tussenwoning heeft een woonoppervlakte van 107 m² en beschikt over 5 kamers, waarvan 4 slaapkamers;
- De woning is gebouwd In 1986 en ligt in de buurt Dieren-Zuid beneden spoorlijn in Dieren.
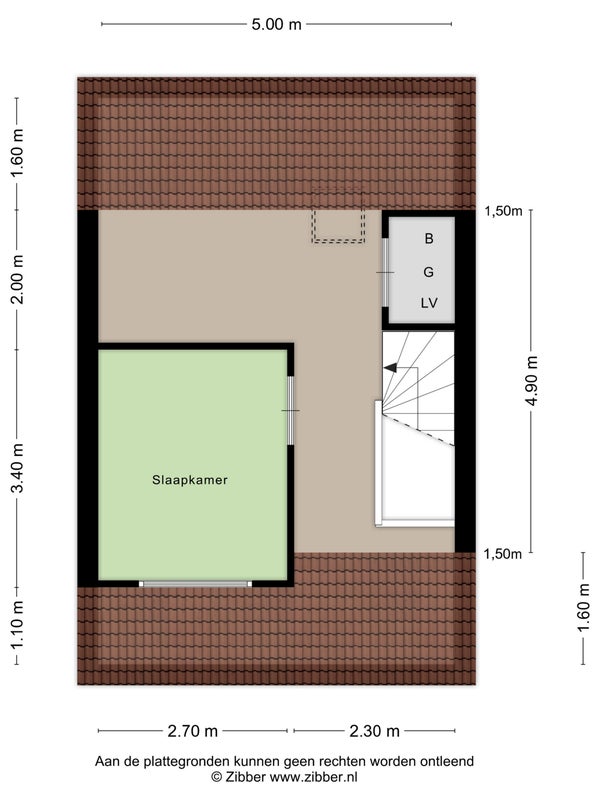
Beschrijving
Deze lichte en ruime hoekwoning aan de Vingerhoed 89 in Dieren biedt de perfecte combinatie van comfort en privacy. Met een woonoppervlakte van 107 m², vier slaapkamers en een diepe achtertuin op het zuidoosten, is het een ideale plek om thuis te komen. De moderne keuken is uitgerust met Bosch inbouwapparatuur en biedt uitzicht over de straat. De woonkamer geniet van een vrij uitzicht op de tuin. Op de eerste verdieping bevinden zich drie slaapkamers en een praktische badkamer. De zolder is bereikbaar via een vaste trap en biedt een vierde slaapkamer.
Bijzonderheden zijn de garage met elektrische deur, een stenen berging, energielabel C en hetelucht verwarming. Deze woning, gelegen in een rustige woonwijk, biedt volop parkeermogelijkheden en is klaar voor nieuw bewoners.
Overdracht
- Vraagprijs
- € 395.000 k.k.
- Aangeboden sinds
- 27-01-2026
- Status
- Beschikbaar
- Beschikbaar
- Per direct
Oppervlakte en inhoud
- Woonoppervlakte
- 107 m²
- Perceeloppervlakte
- 233 m²
Bouw
- Type woning
- Huis
- Soort woning
- Tussenwoning (rijtjeshuis), Eengezinswoning
- Soort bouw
- Bestaande bouw
- Bouwjaar
- 1986
Indeling
- Aantal kamers
- 5
- Aantal slaapkamers
- 4
- Aantal badkamers
- 1
Buitenruimte
- Dakterras
- Niet aanwezig
Energie
- Energielabel
- C