Contact met de makelaar

Deze woning is gevonden buiten ons eigen netwerk. Met de knop hieronder kom je direct bij de aanbieder terecht.

Nieuw

Hof de Vriendschap 48

Bekijk kaart
3312 EK Dordrecht (Transvaalstraat en omgeving)
€ 250.000 k.k.
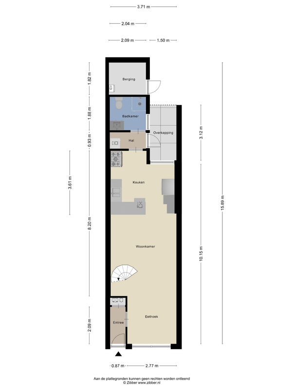
  • 74 m²
  • 4 kamers
  • 1890

Samenvatting

  • Deze woning wordt sinds 17 oktober 2025 aangeboden door Ambitie Makelaars;
  • De tussenwoning heeft een woonoppervlakte van 74 m² en beschikt over 4 kamers, waarvan 2 slaapkamers;
  • De woning is gebouwd In 1890 en ligt in de buurt Transvaalstraat en omgeving in Dordrecht;
  • De woning beschikt onder andere over de volgende voorzieningen: Kabel TV, Glasvezelaansluiting, Rolluiken, Douche, Bergruimte, Toilet.

Beschrijving

Meer woninginformatie bekijken?

Log in of registreer gratis.

Overdracht

Vraagprijs
€ 250.000 k.k.
Aangeboden sinds
17-10-2025
Status
Beschikbaar
Beschikbaar
In overleg
Onderhoudsstaat
Redelijk

Oppervlakte en inhoud

Woonoppervlakte
74 m²
Perceeloppervlakte
78 m²
Inhoud
281 m³

Bouw

Type woning
Huis
Soort woning
Tussenwoning (rijtjeshuis), Eengezinswoning
Soort bouw
Bestaande bouw
Bouwjaar
1890
Ligging
  • Aan een rustige weg
  • In een woonwijk

Indeling

Aantal kamers
4
Aantal slaapkamers
2
Aantal badkamers
1
Aantal woonlagen
2
Voorzieningen
  • Kabel TV
  • Glasvezelaansluiting
  • Rolluiken
  • Douche
  • Bergruimte
  • Toilet

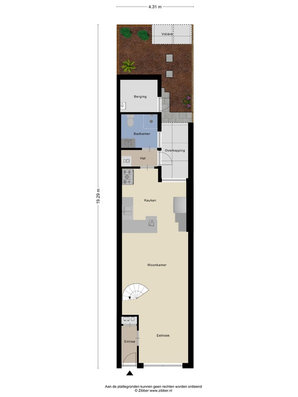
Buitenruimte

Balkon
Niet aanwezig
Tuin
Aanwezig (13 m², gelegen op het noordoosten)
Tuinbeschrijving
achtertuin, voortuin
Dakterras
Niet aanwezig

Energie

Isolatie
Gedeeltelijk dubbele beglazing
Verwarming
CV-ketel
Warm water
CV-ketel
Cv-ketel
Remea (Gas, uit 2017, Eigendom)
Energielabel
E

Bergruimte

Schuur/Berging
Aanwezig
Omschrijving
Aangebouwd steen

Parkeergelegenheid

Aanwezig
Ja
Soort parkeergelegenheid
Betaald

Garage

Aanwezig
Nee
Meld een probleem met deze woning
Contact met de makelaar Bel