Contact met de makelaar

Deze woning is gevonden buiten ons eigen netwerk. Met de knop hieronder kom je direct bij de aanbieder terecht.

Nieuw

Pelserstraat

Bekijk kaart
3311 VP Dordrecht (Boogjes en omgeving)
€ 700.000 k.k.
  • 130 m²
  • 5 kamers
  • 1624

Samenvatting

  • Deze woning wordt sinds 30 oktober 2025 aangeboden door Stad en Land NVM Makelaars;
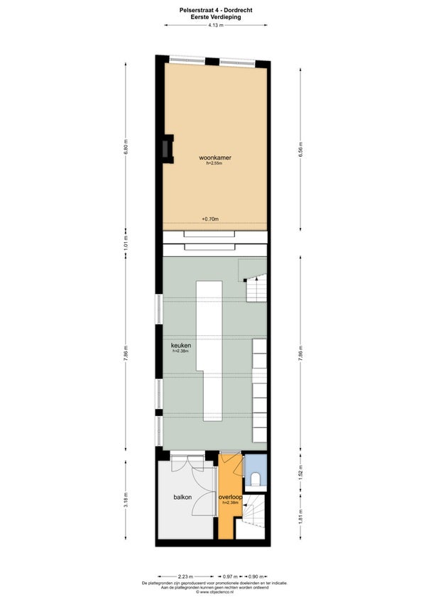
  • De tussenwoning heeft een woonoppervlakte van 130 m² en beschikt over 5 kamers, waarvan 2 slaapkamers;
  • De woning is gebouwd In 1624 en ligt in de buurt Boogjes en omgeving in Dordrecht.

Beschrijving

Meer woninginformatie bekijken?

Log in of registreer gratis.

Overdracht

Vraagprijs
€ 700.000 k.k.
Aangeboden sinds
30-10-2025
Status
Beschikbaar
Beschikbaar
In overleg

Oppervlakte en inhoud

Woonoppervlakte
130 m²

Bouw

Type woning
Huis
Soort woning
Tussenwoning (rijtjeshuis), Eengezinswoning
Soort bouw
Bestaande bouw
Bouwjaar
1624

Indeling

Aantal kamers
5
Aantal slaapkamers
2
Aantal badkamers
1

Buitenruimte

Dakterras
Niet aanwezig
Meld een probleem met deze woning