Contact met de makelaar

Deze woning is gevonden buiten ons eigen netwerk. Met de knop hieronder kom je direct bij de aanbieder terecht.

Nieuw

Geuldal 54

Bekijk kaart
6718 NS Ede (De Venen en Zanden)
€ 630.000 k.k.
  • 152 m²
  • 5 kamers
  • 2023

Samenvatting

  • Deze woning wordt sinds 29 januari 2026 aangeboden door Domicilie Ede B.V.;
  • De tussenwoning heeft een woonoppervlakte van 152 m² en beschikt over 5 kamers, waarvan 4 slaapkamers;
  • De woning is gebouwd In 2023 en ligt in de buurt De Venen en Zanden in Ede.

Beschrijving

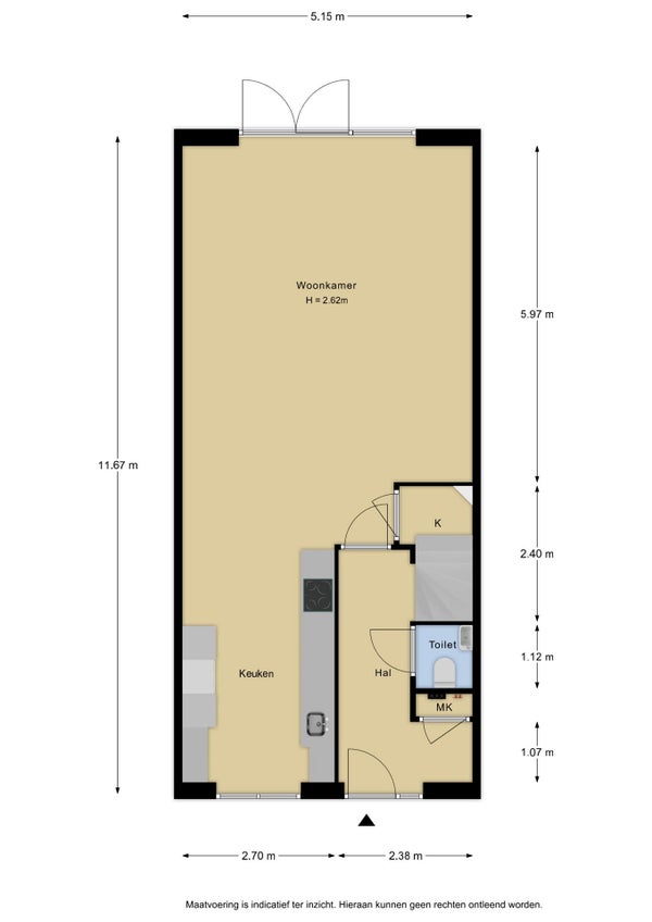
Deze duurzame woning in Kernhem biedt een prachtig uitzicht op het water en beschikt over vier (mogelijk vijf) slaapkamers en twee badkamers. Met een woonoppervlakte van 152 m² en een perceel van 134 m², is dit huis uitstekend geïsoleerd, heeft stadsverwarming en balansventilatie. De moderne woonkamer met open keuken, perfect voor een housewarming, heeft een lengte van 11,67 meter en is voorzien van hoge ramen die veel licht binnenlaten. Op de eerste verdieping zijn twee ruime slaapkamers en een lichte badkamer met inloopdouche. De tweede verdieping telt een grote slaapkamer en een tweede badkamer. Buiten geniet je van een onderhoudsarme tuin op het oosten, met een berging en poort naar de steeg. Er is parkeergelegenheid voor de deur en in de buurt zijn scholen, winkels en natuurgebieden.

Overdracht

Vraagprijs
€ 630.000 k.k.
Aangeboden sinds
29-01-2026
Status
Beschikbaar
Beschikbaar
Per direct

Oppervlakte en inhoud

Woonoppervlakte
152 m²

Bouw

Type woning
Huis
Soort woning
Tussenwoning (rijtjeshuis), Eengezinswoning
Soort bouw
Bestaande bouw
Bouwjaar
2023

Indeling

Aantal kamers
5
Aantal slaapkamers
4
Aantal badkamers
2

Buitenruimte

Dakterras
Niet aanwezig

Energie

Energielabel
A++
Meld een probleem met deze woning