Contact met de aanbieder

Deze woning is gevonden buiten ons eigen netwerk. Via de knop hieronder ga je direct naar de website van de aanbieder.

Nieuw

Bovenstraat 4

Bekijk kaart
6245 KR Eijsden (Mesch)
€ 689.000 k.k.
  • 151 m²
  • 5 kamers
  • 1938

Samenvatting

  • Deze woning wordt sinds 19 februari 2026 aangeboden door Goessens & Goessens Makelaardij;
  • De vrijstaande woning heeft een woonoppervlakte van 151 m² en beschikt over 5 kamers, waarvan 4 slaapkamers;
  • De woning is gebouwd In 1938 en ligt in de buurt Mesch in Eijsden.

Beschrijving

Deze woning wordt aangeboden door Goessens & Goessens Makelaardij

-Omschrijving:
In het schilderachtige en rustige dorp Mesch, vlak bij Eijsden, staat deze statige vrijstaande woning die klassieke architectuur moeiteloos combineert met modern wooncomfort. De woning biedt een riante leefruimte, vier slaapkamers en is energiezuinig dankzij energielabel C en 15 zonnepanelen, waardoor stijl en duurzaamheid hand in hand gaan.

De rondom aangelegde tuin is een groene oase van rust en privacy, met volop ruimte om te ontspannen, te spelen of te genieten van het buitenleven. Dit maakt de woning ideaal voor gezinnen, tuinliefhebbers of iedereen die het comfort van buitenruimte waardeert.

Wonen in Mesch betekent genieten van landelijke charme, weidse vergezichten en een gemoedelijke dorpssfeer, terwijl de bereikbaarheid uitstekend is. Binnen ongeveer vijftien autominuten bereikt u het bruisende centrum van Maastricht, het MUMC+ of de Universiteit Maastricht. Zo biedt deze woning een unieke combinatie van rust, ruimte en comfort, met alle voordelen van de stad binnen handbereik.

-Indeling:

-Kelder:
De woning is voorzien van een handige kelder, bestaande uit twee ruimtes van ca. 13 en 17 m² groot. De kelder is te bereiken via een trap in de entree en ideaal voor het opbergen van voorraden of materialen.

-Begane grond:
Bij binnenkomst valt het karakter en de ruime opzet van de woning direct op. De entree van ca. 11,5 m² is licht en sfeervol, voorzien van een voordeur met glas-in-loodramen, een originele tegelvloer, een eikenhouten trap en een hoog plafond. In de entree bevindt zich de meterkast, de toegang tot de woonkamer, de toegang tot de eetkamer en de toiletruimte. Tevens bevindt zich hier de trapopgang naar de eerste verdieping en de trap naar de kelder. De nette toiletruimte is gedeeltelijk betegeld en voorzien van een staand closet.

Het is mooi binnenkomen in de ruime woonkamer van 33 m² groot. Ook hier valt de charme van de woning direct op door de houten vloer, de zandstenen schouw in het midden van de ruimte en de erker met glas-in-loodramen aan de voorzijde van de woning. Grote raampartijen zorgen voor veel natuurlijk licht, waardoor een fijne leefruimte ontstaat.

De keuken van ca. 18 m² is modern uitgevoerd met witte greep loze fronten en uitgerust met een inductiekookplaat, afzuigkap, combi-oven, koelkast en vaatwasser. Grote ramen en een deur naar de tuin zorgen voor een mooie verbinding tussen binnen en buiten, waardoor de keuken een lichte en open uitstraling heeft.

De keuken biedt toegang tot een tussenhal, welke leidt naar een kastruimte van ca. 2 m² groot. Deze kastruimte is zeer praktisch voor het opbergen van voorraden of het plaatsen van een vriezer.

-Eerste verdieping:
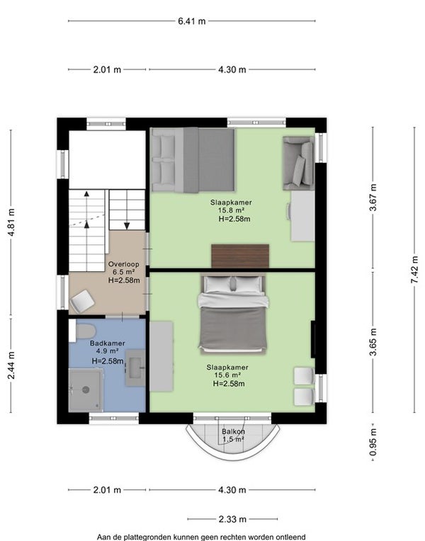
Via de trap in de entree is de eerste verdieping te bereiken. Op deze verdieping treft u twee slaapkamers en een badkamer. Tevens bevindt zich hier de vaste trap naar de tweede verdieping. De gehele verdieping is afgewerkt met een mooie houten vloer.
• Slaapkamer 1: Deze slaapkamer is ca. 16 m² groot en beschikt over een schouw en een deur naar het balkon met uitzicht over de straat.
• Slaapkamer 2: Deze fijne slaapkamer is ca. 16 m² groot.
• Badkamer: De moderne, betegelde badkamer (ca. 5 m²) is voorzien van een douchecabine, een wastafelmeubel en een staand closet.

-Tweede verdieping:
Via de vaste trap op de eerste verdieping bereikt u de tweede verdieping, waar zich eveneens twee slaapkamers bevinden.
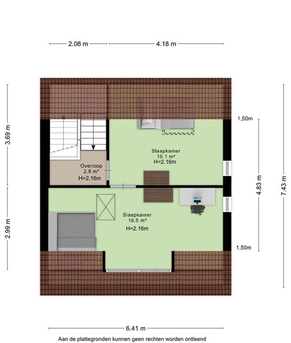
• Slaapkamer 3: Deze ruime slaapkamer is ca. 16,5 m² groot en voorzien van een mooie lichtinval door het dakkapel. Tevens bevindt zich hier een vlizotrap naar de vliering. Deze is enkel als (ruimere) opslagruimte beschikbaar door de lagere nokhoogte.
• Slaapkamer 4: Deze comfortabele slaapkamer is ca. 10 m² groot.

-Zolder:
Via een vlizotrap op de derde slaapkamer is de zolder te bereiken. Deze zolderruimte heeft een vloeroppervlakte van ca. 23 m² groot en wordt momenteel gebruikt als berging en is praktisch voor het opbergen van bijvoorbeeld seizoensgebonden spullen.

-Garage:
De garage van ca. 21 m² is bereikbaar via een handmatig bedienbare poort aan de oprit en via een deur in de tuin. Hier bevinden zich aansluitingen voor de wasmachine en droger, evenals de cv-ketel (Eigendom, Atag, 2023). De garage biedt ruimte voor het parkeren van een voertuig of het stallen van fietsen, terwijl de oprit aan de voorzijde plaats biedt voor het parkeren van twee extra auto’s.

-Tuin:
De woning is voorzien van een royale en fraai aangelegde achtertuin met veel privacy. De tuin is te bereiken via een deur in de keuken, een deur in de garage of de handige zijingang. De tuin is ingericht met een combinatie van een terras, een ruim gazon en plantenborders. Dankzij de royale opzet is er volop ruimte om te ontspannen, buiten te eten of voor kinderen om te spelen. De overkapping (ca. 34 m²), grenzend aan de garage en keuken, biedt de mogelijkheid om op warme dagen beschut in de schaduw te zitten en comfortabel van het buitenleven te genieten. Achterin de tuin bevindt zich een houten berging van ca. 17 m² met een overkapping, ideaal voor het bergen van tuingereedschap, materialen of het stallen van fietsen.

-Nadere bijzonderheden:
• Type woning: Unieke, karakteristieke, vrijstaande woning met een royale woonoppervlakte, vier slaapkamers en een ruime, fraaie achtertuin, gelegen op een ruim perceel van ca. 680 m².
• Kozijnen: Houten en kunststof kozijnen met dubbele beglazing.
• Centrale verwarming: HR combi-ketel (Eigendom, Atag, 2023).
• Energielabel: C.
• Zonnepanelen: 15 zonnepanelen in eigendom (2021).
• Alle vermelde afmetingen zijn indicatief en kunnen afwijken van de werkelijkheid.

-Omgeving:
Deze woning is gelegen in Mesch. Mesch is een charmant en historisch dorpje in het uiterste zuiden van Nederland, gelegen in het prachtige Heuvelland. Het staat bekend om zijn schilderachtige straatjes, vakwerkhuizen en de groene, glooiende omgeving die uitnodigt tot wandelen en fietsen. Dankzij de ligging vlak bij Eijsden en Maastricht zijn alle voorzieningen binnen handbereik, terwijl u in Mesch geniet van de rust, natuur en de authentieke dorpse sfeer. Ook België ligt om de hoek, waardoor u profiteert van een unieke en centrale ligging in het grensgebied.

Graag verwijzen wij u naar onze website ******, waar meer verkoopinformatie, onze disclaimer en de verkoopvoorwaarden te vinden zijn. Deze presentatie is door Goessens & Goessens Makelaardij met de nodige zorg samengesteld. Onzerzijds wordt echter geen enkele aansprakelijkheid aanvaard voor enige onvolledigheid, onjuist of anderszins, dan wel de gevolgen daarvan. Alle opgegeven maten en oppervlakten zijn indicatief. Deze presentatie is slechts indicatief. Er is nagestreefd naar een zo zorgvuldig mogelijke informatie van de ter beschikking staande gegevens.

Overdracht

Vraagprijs
€ 689.000 k.k.
Prijs per m²
€ 4.563
Aangeboden sinds
19-02-2026
Status
Beschikbaar
Beschikbaar
In overleg
Onderhoudsstaat
Goed

Oppervlakte en inhoud

Woonoppervlakte
151 m²
Perceeloppervlakte
680 m²
Inhoud
759 m³

Bouw

Type woning
Huis
Soort woning
Vrijstaande woning, Eengezinswoning
Soort bouw
Bestaande bouw
Bouwjaar
1938
Ligging
Aan een rustige weg

Indeling

Aantal kamers
5
Aantal slaapkamers
4
Aantal badkamers
1
Aantal woonlagen
5
Voorzieningen
  • Bergruimte
  • Toilet

Buitenruimte

Balkon
Aanwezig
Tuin
Aanwezig
Tuinbeschrijving
tuin rondom
Achterom
Niet aanwezig
Dakterras
Niet aanwezig

Energie

Isolatie
Dubbele beglazing
Verwarming
CV-ketel
Warm water
CV-ketel
Cv-ketel
iZone i36CZ HR Combiketel H2 ready (Gas, uit 2023, Eigendom)
Energielabel
C

Parkeergelegenheid

Aanwezig
Ja
Soort parkeergelegenheid
Openbaar

Garage

Aanwezig
Ja
Meld een probleem met deze woning