Contact met de makelaar

Deze woning is gevonden buiten ons eigen netwerk. Met de knop hieronder kom je direct bij de aanbieder terecht.

Nieuw

Kerkstraat

Bekijk kaart
5154 AP Elshout (Elshout)
€ 795.000 k.k.
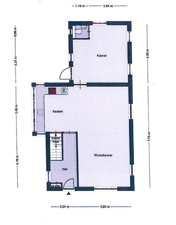
  • 120 m²
  • 5 kamers
  • 1920

Samenvatting

  • Deze woning wordt sinds 17 december 2025 aangeboden door Agrohome Van den Boer Makelaardij;
  • De tussenwoning heeft een woonoppervlakte van 120 m² en beschikt over 5 kamers, waarvan 4 slaapkamers;
  • De woning is gebouwd In 1920 en ligt in de buurt Elshout in Elshout.

Beschrijving

Overdracht

Vraagprijs
€ 795.000 k.k.
Aangeboden sinds
17-12-2025
Status
Beschikbaar
Beschikbaar
In overleg

Oppervlakte en inhoud

Woonoppervlakte
120 m²
Perceeloppervlakte
11.380 m²

Bouw

Type woning
Huis
Soort woning
Tussenwoning (rijtjeshuis), Eengezinswoning
Soort bouw
Bestaande bouw
Bouwjaar
1920

Indeling

Aantal kamers
5
Aantal slaapkamers
4
Aantal badkamers
1

Buitenruimte

Dakterras
Niet aanwezig

Energie

Energielabel
C
Meld een probleem met deze woning