Contact met de makelaar

Deze woning is gevonden buiten ons eigen netwerk. Met de knop hieronder kom je direct bij de aanbieder terecht.

Nieuw

Zoetendaal 239

Bekijk kaart
6662 XN Elst (de Wuurde)
€ 375.000 k.k.
  • 136 m²
  • 5 kamers
  • 1975

Samenvatting

  • Deze woning wordt sinds 10 februari 2026 aangeboden door PUNTMAN - Jouw Excellent NVM Makelaar!;
  • De tussenwoning heeft een woonoppervlakte van 136 m² en beschikt over 5 kamers, waarvan 4 slaapkamers;
  • De woning is gebouwd In 1975 en ligt in de buurt de Wuurde in Elst.

Beschrijving

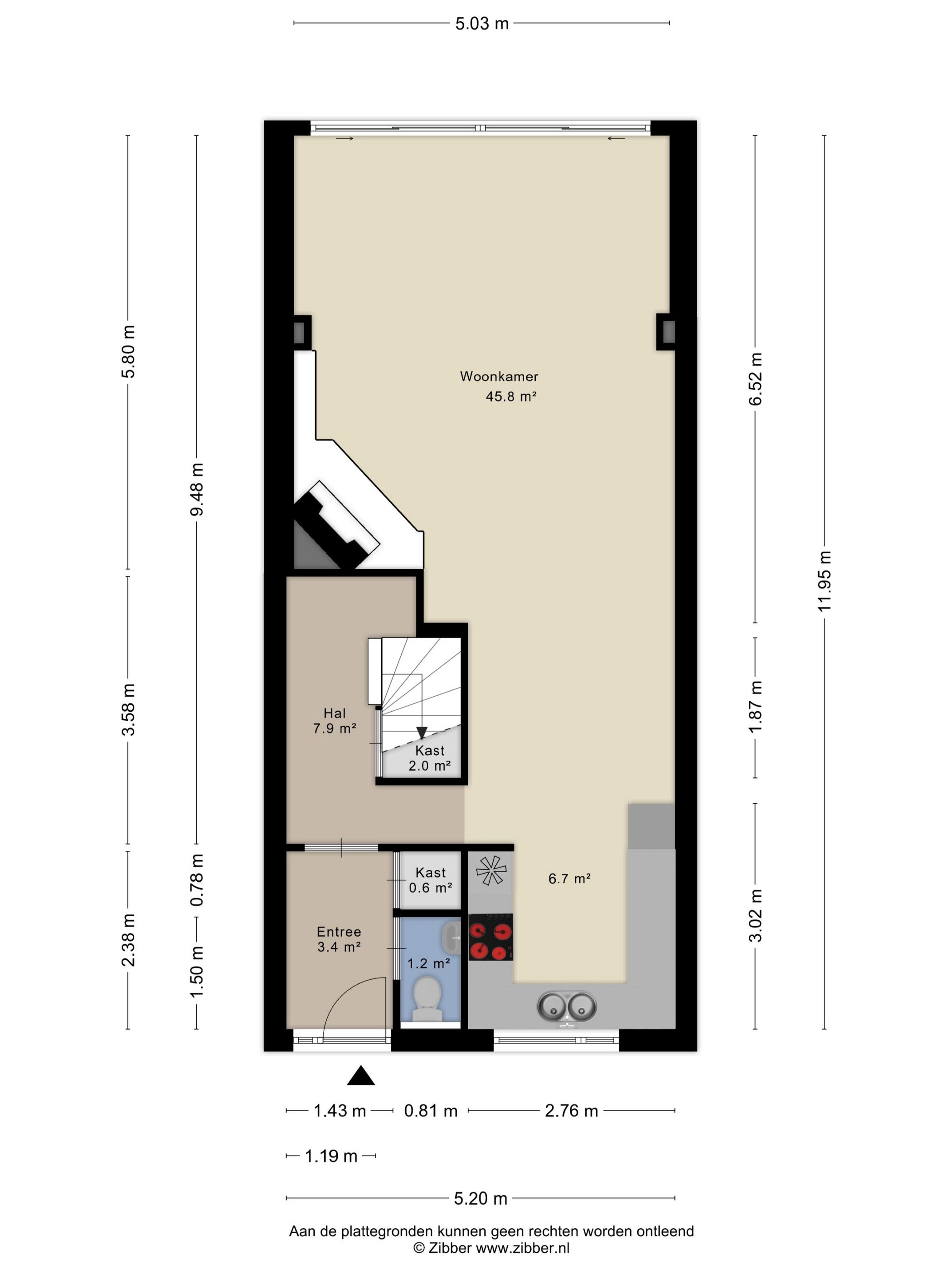
Deze royale tussenwoning biedt een unieke kans voor starters en klussers die hun eigen stempel willen drukken. Gelegen in een rustige wijk, beschikt de woning over een uitgebouwde tuingerichte woonkamer van 46 m² met een open keuken van 7 m². Op de eerste verdieping vind je drie ruime slaapkamers van 9, 10 en 11 m² en een badkamer met een inloopdouche. De tweede verdieping herbergt een 4e slaapkamer van 9 m², evenals de cv- en wasruimte. De diepe achtertuin ligt op het noorden en er zijn voorzieningen zoals een stenen berging en een carport. Met een woonoppervlakte van ****** m² en in de nabijheid van het centrum van Elst en scholen, biedt deze woning veel potentieel. Maak van dit huis jouw droomwoning!

Overdracht

Vraagprijs
€ 375.000 k.k.
Prijs per m²
€ 2.757
Aangeboden sinds
10-02-2026
Status
Beschikbaar
Beschikbaar
Per direct

Oppervlakte en inhoud

Woonoppervlakte
136 m²
Perceeloppervlakte
156 m²

Bouw

Type woning
Huis
Soort woning
Tussenwoning (rijtjeshuis), Eengezinswoning
Soort bouw
Bestaande bouw
Bouwjaar
1975

Indeling

Aantal kamers
5
Aantal slaapkamers
4
Aantal badkamers
1

Buitenruimte

Dakterras
Niet aanwezig

Energie

Energielabel
B
Meld een probleem met deze woning