- 111 m²
- 5 kamers
- 1980
Samenvatting
- Deze woning wordt sinds 26 januari 2026 aangeboden door PUNTMAN - Jouw Excellent NVM Makelaar!;
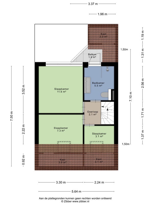
- De tussenwoning heeft een woonoppervlakte van 111 m² en beschikt over 5 kamers, waarvan 4 slaapkamers;
- De woning is gebouwd In 1980 en ligt in de buurt de Wuurde in Elst.
Beschrijving
Deze ruime en instapklare hoekwoning biedt alles voor comfortabel wonen. Gelegen op een perceel van 227 m², bestaat de woning uit een uitgebouwde woonkamer, een grote woonkeuken van 20 m² met moderne inbouwapparatuur, vier slaapkamers en een moderne badkamer met inloopdouche en dubbele wastafel. De riante voor- en achtertuin zijn perfect voor ontspanning en privégebruik. De ligging is ideaal, dichtbij een park en het centrum van Elst. De woning, gebouwd in 1980, is goed onderhouden en heeft een woonoppervlakte van 111 m², perfect voor gezinnen. Met een zonnige tuin, een houten berging van 6 m² en ruime kamers is deze woning een uitstekende keuze voor wie op zoek is naar een comfortabel thuis.
Overdracht
- Vraagprijs
- € 465.000 k.k.
- Aangeboden sinds
- 26-01-2026
- Status
- Beschikbaar
- Beschikbaar
- Per direct
Oppervlakte en inhoud
- Woonoppervlakte
- 111 m²
- Perceeloppervlakte
- 227 m²
Bouw
- Type woning
- Huis
- Soort woning
- Tussenwoning (rijtjeshuis), Eengezinswoning
- Soort bouw
- Bestaande bouw
- Bouwjaar
- 1980
Indeling
- Aantal kamers
- 5
- Aantal slaapkamers
- 4
- Aantal badkamers
- 1
Buitenruimte
- Dakterras
- Niet aanwezig
Energie
- Energielabel
- E