Contact met de makelaar

Deze woning is gevonden buiten ons eigen netwerk. Met de knop hieronder kom je direct bij de aanbieder terecht.

Nieuw

Veenzoom 132

Bekijk kaart
2804 CL Gouda (Zomenbuurt)
€ 395.000 k.k.
  • 97 m²
  • 5 kamers
  • 1973

Samenvatting

  • Deze woning wordt sinds 29 januari 2026 aangeboden door Rotsvast Verkoop B.V.;
  • De tussenwoning heeft een woonoppervlakte van 97 m² en beschikt over 5 kamers, waarvan 3 slaapkamers;
  • De woning is gebouwd In 1973 en ligt in de buurt Zomenbuurt in Gouda;
  • De woning beschikt onder andere over de volgende voorzieningen: Bad, Douche, Toilet.

Beschrijving

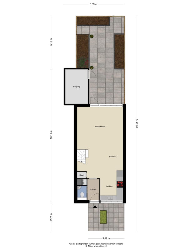
In rustige woonwijk in Gouda gelegen 4-kamer tussenwoning met een voor- en achtertuin.
De woning is gelegen aan de Veenzoom, een rustige straat met voornamelijk bestemmingsverkeer. Zowel de voor- als achtertuin bieden fijne buitenruimte. In de achtertuin bevindt zich een ruime stenen berging. De woning ligt in een kindvriendelijke woonomgeving met diverse voorzieningen zoals winkels, scholen, openbaar vervoer en uitvalswegen in de directe nabijheid.

Indeling:
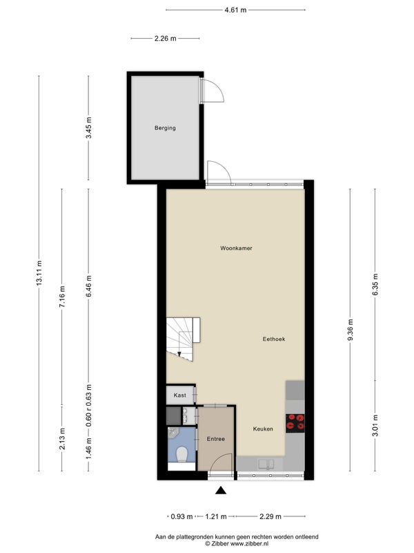
Begane grond:
Entree/hal met meterkast en toiletruimte. De toiletruimte is voorzien van een toilet en een fonteintje. Vanuit de hal is er toegang tot de woonkamer. De tuingerichte woonkamer beschikt over een prettige lichtinval en geeft toegang tot de achtertuin.
De keuken is gesitueerd aan de voorzijde van de woning en is uitgevoerd in een praktische opstelling met onder- en bovenkasten. De keuken is voorzien van de volgende inbouwapparatuur: koelkast, vriezer, oven, magnetron, gaskookplaat, afzuigkap, vaatwasser en een kraan met spoelbak.

Eerste verdieping:
Overloop met toegang tot 2 slaapkamers en de badkamer.
De twee slaapkamers zijn gelegen aan de achterzijde van de woning.
De badkamer bevindt zich aan de voorzijde van het pand en is ingericht met een los ligbad, een inloopdouche, een toilet en een wastafel.

Tweede verdieping:
Deze verdieping is bereikbaar middels een vaste trap en bestaat uit één grote open ruimte. Direct bij de trapopgang bevindt zich de opstelplaats van de cv-ketel. De ruimte biedt diverse gebruiksmogelijkheden, zoals een extra slaapkamer, werkruimte of hobbyruimte.

Tuin:
De woning beschikt over een voortuin en een achtertuin. De achtertuin is voorzien van een ruime stenen berging en biedt voldoende ruimte om een fijne buitenplek te creëren.

Bijzonderheden:

  • 4-kamer tussenwoning gelegen in een rustige woonwijk;
  • Voor- en achtertuin aanwezig;
  • Energielabel C;
  • Ruime stenen berging in de achtertuin;
  • Keuken voorzien van diverse inbouwapparatuur;
  • Gelegen nabij winkels, scholen en uitvalswegen;
  • Woning biedt diverse mogelijkheden om naar eigen wens te moderniseren;
  • In de koopovereenkomst worden een ouderdomsclausule en niet-zelfbewoningsclausule worden opgenomen;

Deze informatie is door Rotsvast met de nodige zorgvuldigheid samengesteld. Onzerzijds wordt echter geen enkele aansprakelijkheid aanvaard voor enige onvolledigheid, onjuistheid of anderszins, dan wel de gevolgen daarvan. Alle opgegeven maten en oppervlakten zijn indicatief. Van toepassing zijn de NVM-voorwaarden.

Toelichtingsclausule NTA 2581:2011
De woning is ingemeten conform de NTA 2581:2011 normering. Deze normering is bedoeld om op een eenduidige wijze de gebruiksoppervlakte vast te stellen. Ondanks de zorgvuldige uitvoering van de meting kunnen er verschillen ontstaan in meetuitkomsten, bijvoorbeeld als gevolg van interpretatieverschillen, afrondingen of beperkingen bij het uitvoeren van de meting. Aan de opgegeven maten en oppervlakten kunnen derhalve geen rechten worden ontleend.

Overdracht

Vraagprijs
€ 395.000 k.k.
Aangeboden sinds
29-01-2026
Status
Beschikbaar
Beschikbaar
In overleg
Onderhoudsstaat
Redelijk

Oppervlakte en inhoud

Woonoppervlakte
97 m²
Perceeloppervlakte
104 m²
Inhoud
371 m³

Bouw

Type woning
Huis
Soort woning
Tussenwoning (rijtjeshuis), Eengezinswoning
Soort bouw
Bestaande bouw
Bouwjaar
1973

Indeling

Aantal kamers
5
Aantal slaapkamers
3
Aantal badkamers
1
Aantal woonlagen
3
Voorzieningen
  • Bad
  • Douche
  • Toilet

Buitenruimte

Balkon
Niet aanwezig
Tuin
Aanwezig (35 m², gelegen op het oosten)
Tuinbeschrijving
achtertuin, voortuin
Achterom
Aanwezig
Dakterras
Niet aanwezig

Energie

Verwarming
CV-ketel
Warm water
CV-ketel
Energielabel
C

Bergruimte

Schuur/Berging
Aanwezig
Omschrijving
Aangebouwd steen

Parkeergelegenheid

Aanwezig
Ja
Soort parkeergelegenheid
Openbaar

Garage

Aanwezig
Nee
Meld een probleem met deze woning