Contact met de makelaar

Deze woning is gevonden buiten ons eigen netwerk. Met de knop hieronder kom je direct bij de aanbieder terecht.

Nieuw

Provincialeweg 56

Bekijk kaart
4503 GG Groede (Verspreide huizen Breskens)
€ 269.000 k.k.
  • 64 m²
  • 4 kamers
  • 1932

Samenvatting

  • Deze woning wordt sinds 24 oktober 2025 aangeboden door Versluijs Makelaardij;
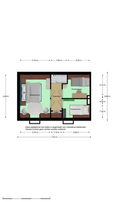
  • De halfvrijstaande woning heeft een woonoppervlakte van 64 m² en beschikt over 4 kamers, waarvan 3 slaapkamers;
  • De woning is gebouwd In 1932 en ligt in de buurt Verspreide huizen Breskens in Groede;
  • De woning beschikt onder andere over de volgende voorzieningen: Airconditioning, Kabel TV, Rookkanaal, Internetaansluiting, Rolluiken, Sauna, Douche, Dakraam, Toilet.

Beschrijving

Overdracht

Vraagprijs
€ 269.000 k.k.
Aangeboden sinds
24-10-2025
Status
Beschikbaar
Beschikbaar
In overleg
Onderhoudsstaat
Goed

Oppervlakte en inhoud

Woonoppervlakte
64 m²
Perceeloppervlakte
132 m²
Inhoud
285 m³

Bouw

Type woning
Huis
Soort woning
Halfvrijstaande woning, Eengezinswoning
Soort bouw
Bestaande bouw
Bouwjaar
1932
Ligging
Buiten bebouwde kom

Indeling

Aantal kamers
4
Aantal slaapkamers
3
Aantal badkamers
1
Aantal woonlagen
2
Voorzieningen
  • Airconditioning
  • Kabel TV
  • Rookkanaal
  • Internetaansluiting
  • Rolluiken
  • Sauna
  • Douche
  • Dakraam
  • Toilet

Buitenruimte

Balkon
Niet aanwezig
Tuin
Aanwezig (44 m², gelegen op het zuiden)
Tuinbeschrijving
achtertuin
Dakterras
Niet aanwezig

Energie

Isolatie
Dubbele beglazing, Dakisolatie, Muurisolatie
Verwarming
CV-ketel, Gashaard
Cv-ketel
Nefit (Gas, uit 2016, Eigendom)
Energielabel
B

Bergruimte

Schuur/Berging
Aanwezig

Parkeergelegenheid

Aanwezig
Ja
Soort parkeergelegenheid
Openbaar
Meld een probleem met deze woning
Contact met de makelaar Bel