Contact met de makelaar

Deze woning is gevonden buiten ons eigen netwerk. Met de knop hieronder kom je direct bij de aanbieder terecht.

Nieuw

Hertog Albrechtstraat

Bekijk kaart
1613 GX Grootebroek (Princenhof Grootebroek)
€ 349.500 k.k.
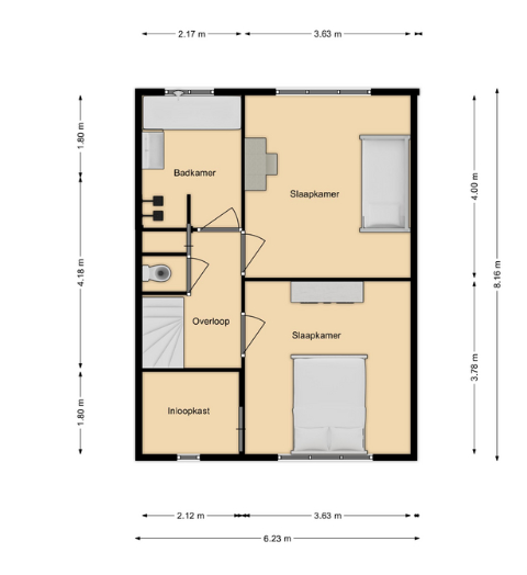
  • 126 m²
  • 6 kamers
  • 1975

Samenvatting

  • Deze woning wordt sinds 31 oktober 2025 aangeboden door Linda Jansen makelaardij;
  • De tussenwoning heeft een woonoppervlakte van 126 m² en beschikt over 6 kamers, waarvan 3 slaapkamers;
  • De woning is gebouwd In 1975 en ligt in de buurt Princenhof Grootebroek in Grootebroek.

Beschrijving

Overdracht

Vraagprijs
€ 349.500 k.k.
Aangeboden sinds
31-10-2025
Status
Beschikbaar
Beschikbaar
In overleg

Oppervlakte en inhoud

Woonoppervlakte
126 m²
Perceeloppervlakte
200 m²

Bouw

Type woning
Huis
Soort woning
Tussenwoning (rijtjeshuis), Eengezinswoning
Soort bouw
Bestaande bouw
Bouwjaar
1975

Indeling

Aantal kamers
6
Aantal slaapkamers
3

Buitenruimte

Dakterras
Niet aanwezig

Energie

Energielabel
B
Meld een probleem met deze woning