Contact met de makelaar

Deze woning is gevonden buiten ons eigen netwerk. Met de knop hieronder kom je direct bij de aanbieder terecht.

Reuveltweg 34

Bekijk kaart
5971 CX Grubbenvorst (Reuvelt)
€ 400.000 k.k.
  • 141 m²
  • 12 kamers
  • 1967

Samenvatting

  • Deze woning wordt sinds 17 oktober 2025 aangeboden door Startpunt Wonen;
  • De geschakelde 2-onder-1-kapwoning heeft een woonoppervlakte van 141 m² en beschikt over 12 kamers, waarvan 4 slaapkamers;
  • De woning is gebouwd In 1967 en ligt in de buurt Reuvelt in Grubbenvorst;
  • De woning beschikt onder andere over de volgende voorzieningen: Bad, Douche, Toilet.

Beschrijving

Meer woninginformatie bekijken?

Log in of registreer gratis.

Overdracht

Vraagprijs
€ 400.000 k.k.
Aangeboden sinds
17-10-2025
Status
Beschikbaar
Beschikbaar
In overleg
Onderhoudsstaat
Goed

Oppervlakte en inhoud

Woonoppervlakte
141 m²
Perceeloppervlakte
290 m²
Inhoud
643 m³

Bouw

Type woning
Huis
Soort woning
Geschakelde 2-onder-1-kapwoning, Eengezinswoning
Soort bouw
Bestaande bouw
Bouwjaar
1967

Indeling

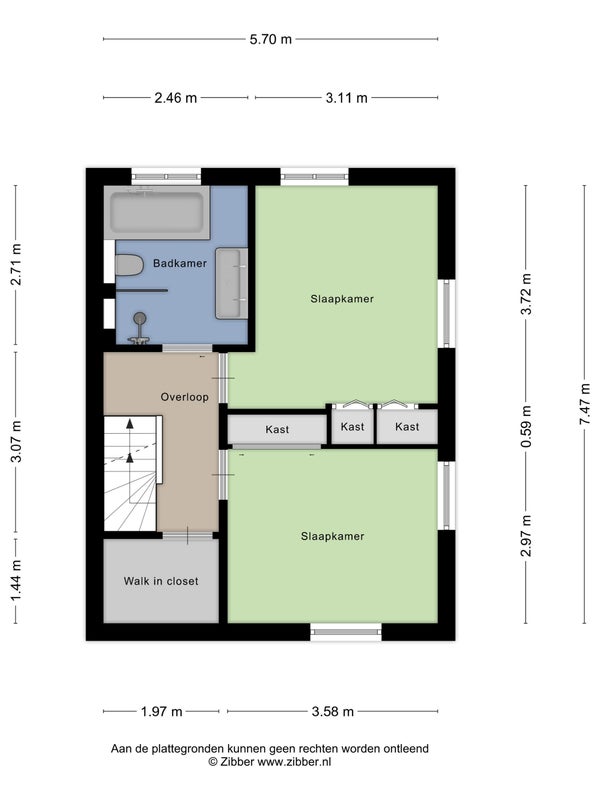
Aantal kamers
12
Aantal slaapkamers
4
Aantal badkamers
1
Aantal woonlagen
4
Voorzieningen
  • Bad
  • Douche
  • Toilet

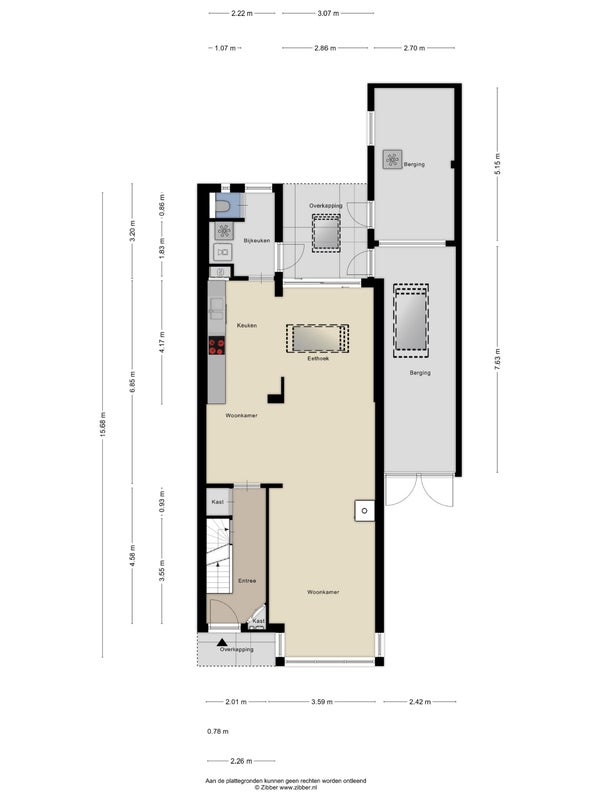
Buitenruimte

Balkon
Niet aanwezig
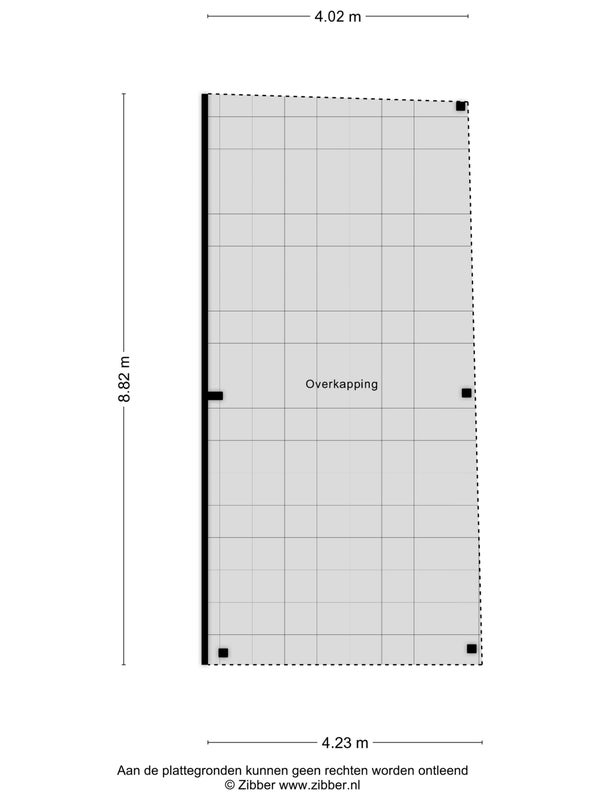
Tuin
Aanwezig (175 m², gelegen op het noordwesten)
Tuinbeschrijving
achtertuin, voortuin
Dakterras
Niet aanwezig

Energie

Isolatie
Volledig geïsoleerd
Verwarming
CV-ketel
Warm water
CV-ketel
Cv-ketel
Nefit Topline (Gas, uit 2009, Eigendom)
Energielabel
A

Bergruimte

Schuur/Berging
Aanwezig
Omschrijving
Aangebouwd steen

Garage

Aanwezig
Ja
Omschrijving
Aangebouwd steen
Meld een probleem met deze woning
Contact met de makelaar Bel