Contact met de makelaar

Deze woning is gevonden buiten ons eigen netwerk. Met de knop hieronder kom je direct bij de aanbieder terecht.

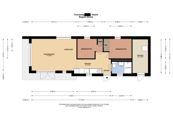
Tunnelweg

Bekijk kaart
7448 RW Haarle (Haarle)
€ 189.000 k.k.
  • 53 m²
  • 3 kamers
  • 2024

Samenvatting

  • Deze woning wordt sinds 30 oktober 2025 aangeboden door Van Egmond Makelaardij & Taxaties;
  • De tussenwoning heeft een woonoppervlakte van 53 m² en beschikt over 3 kamers, waarvan 2 slaapkamers;
  • De woning is gebouwd In 2024 en ligt in de buurt Haarle in Haarle.

Beschrijving

Meer woninginformatie bekijken?

Log in of registreer gratis.

Overdracht

Vraagprijs
€ 189.000 k.k.
Aangeboden sinds
30-10-2025
Status
Beschikbaar
Beschikbaar
In overleg

Oppervlakte en inhoud

Woonoppervlakte
53 m²
Perceeloppervlakte
406 m²

Bouw

Type woning
Huis
Soort woning
Tussenwoning (rijtjeshuis), Eengezinswoning
Soort bouw
Nieuwbouw
Bouwjaar
2024

Indeling

Aantal kamers
3
Aantal slaapkamers
2
Aantal badkamers
1

Buitenruimte

Dakterras
Niet aanwezig
Meld een probleem met deze woning