- 53 m²
- 3 kamers
- 2024
Samenvatting
- Deze woning wordt sinds 26 januari 2026 aangeboden door Van Egmond Makelaardij & Taxaties;
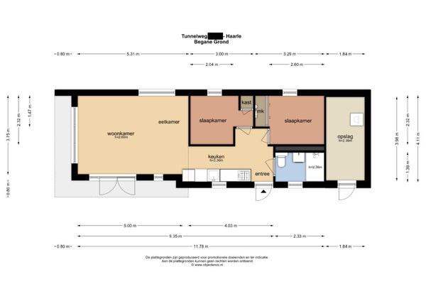
- De tussenwoning heeft een woonoppervlakte van 53 m² en beschikt over 3 kamers, waarvan 2 slaapkamers;
- De woning is gebouwd In 2024 en ligt in de buurt Haarle in Haarle.
Beschrijving
Stap binnen in dit charmante 4-persoons chalet, gelegen op eigen grond in Bospark "het Groene Hert", omringd door natuur en rust. Dit park, nabij de Sallandse Heuvelrug, biedt de perfecte uitvalsbasis voor wandel- en fietstochten, evenals avontuurlijke uitjes naar Avonturenpark Hellendoorn en het Natuurmuseum Holterberg. Na een dag vol ontdekkingen vind je in de omliggende dorpen Nijverdal, Hellendoorn en Raalte gezellige terrassen en winkels. Het chalet heeft 53 m² woonoppervlakte, twee slaapkamers en een moderne badkamer. Met hoogwaardige isolatie en airconditioning geniet je het hele jaar door van comfort. Dit recreatiewoning is geschikt voor eigen gebruik of verhuur. Perceelgrootte is 406 m².
Overdracht
- Vraagprijs
- € 189.000 k.k.
- Aangeboden sinds
- 26-01-2026
- Status
- Beschikbaar
- Beschikbaar
- In overleg
Oppervlakte en inhoud
- Woonoppervlakte
- 53 m²
- Perceeloppervlakte
- 406 m²
Bouw
- Type woning
- Huis
- Soort woning
- Tussenwoning (rijtjeshuis), Eengezinswoning
- Soort bouw
- Nieuwbouw
- Bouwjaar
- 2024
Indeling
- Aantal kamers
- 3
- Aantal slaapkamers
- 2
- Aantal badkamers
- 1
Buitenruimte
- Dakterras
- Niet aanwezig
Energie
- Energielabel
- C