Contact met de makelaar

Deze woning is gevonden buiten ons eigen netwerk. Met de knop hieronder kom je direct bij de aanbieder terecht.

Nieuw

Dr. Schaepmanstraat 36

Bekijk kaart
2032 GL Haarlem (Van Zeggelenbuurt)
€ 625.000 k.k.
  • 112 m²
  • 6 kamers
  • 1926

Samenvatting

  • Deze woning wordt sinds 29 januari 2026 aangeboden door Rikken Makelaardij;
  • De tussenwoning heeft een woonoppervlakte van 112 m² en beschikt over 6 kamers, waarvan 5 slaapkamers;
  • De woning is gebouwd In 1926 en ligt in de buurt Van Zeggelenbuurt in Haarlem;
  • De woning beschikt onder andere over de volgende voorzieningen: Kabel TV, Glasvezelaansluiting, Internetaansluiting, Buitenzonwering, Douche, Toilet, Wasruimte.

Beschrijving

English version below:

Welkom bij de Dr. Schaepmanstraat 36 te Haarlem

Deze karakteristieke jaren-30 tussenwoning met energielabel B is gelegen in de gewilde Amsterdamse buurt in Haarlem. Deze charmante woning heeft talloze moderne upgrades, waaronder een deels met pannen gedekte dakopbouw uit 2008, recent geplaatste zonnepanelen (2024), spouwmuurisolatie (2022), luxe open-keuken 2016 en pvc-vloer met vloerverwarming.

Ook is er in 2002 funderingsherstel uitgevoerd, waardoor de woning solide en betrouwbaar is.

De Ideale Buurt
De Amsterdamse buurt staat bekend als een kindvriendelijke en gewilde buurt op slechts 10 minuten loopafstand van het bruisende centrum van Haarlem. Hier vindt u een overvloed aan uitstekende restaurants, culturele attracties en gezellige winkelstraten. Voor uw dagelijkse boodschappen is de knusse "Amsterdamstraat" op loopafstand, evenals de historische stadspoort "de Amsterdamse Poort". Een supermarkt, scholen, kinderopvang, sportfaciliteiten en een speeltuin bevinden zich allemaal om de hoek. Bovendien ligt het prachtige Reinaldapark op loopafstand, met groene parken en waterpartijen waar u kunt wandelen en ontspannen.

Perfecte Bereikbaarheid
De oostelijke ligging van Haarlem zorgt voor een uitstekende aansluiting op belangrijke snelwegen, zoals de A9 en A5 bij het Rottepolderplein. Openbaar vervoer, waaronder bussen, Haarlem Centraal Station en Station Spaarnwoude is eveneens goed bereikbaar. Dit maakt de locatie ideaal voor mensen die rustig willen wonen en toch snel in de stad willen zijn.

Lokale Pareltjes
Laat de wekelijkse markten op zaterdag op de Grote Markt en op vrijdag op de Zomerkade niet aan uw aandacht ontsnappen - een waardevolle toevoeging aan uw weekendroutine.

Indeling
entree, hal met garderoberuimte, volledig vernieuwde en uitgebreide meterkast, trapkast en toiletruimte met hangend toilet en watafel. Vanuit de hal heb je toegang tot de ruime woonkamer met authentieke erker, moderne gashaard en hoog plafond. Door de hoge raampartijen is deze woonkamer heerlijk licht.
De moderne open hoekkeuken is gelegen aan de achterzijde van de woning en voorzien van robuust betonnen aanrechtblad en diverse inbouwapparatuur als combi-oven, stoomoven, afzuigkap, (5-pits inductiekookplaat), vaatwasser en koel-/vriescombinatie.
Middels de openslaande deuren aan de achterzijde van de woning komt u in de tuin gelegen op het zuidwesten. Een heerlijke plek met veel zon en privacy.

Trap naar:
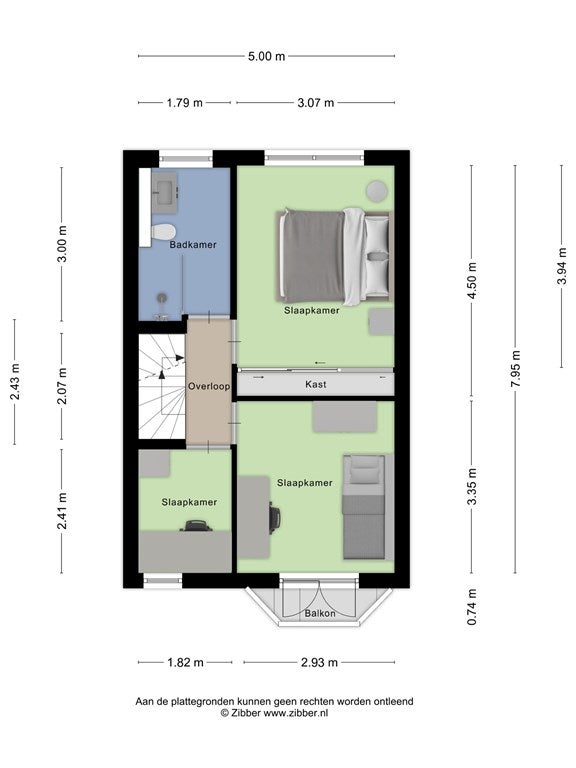
Eerste verdieping
Op deze verdieping bevinden zich drie goed bemeten slaapkamers. Aan de achterzijde ligt een ruime slaapkamer met inbouwkast en aan de voorzijde zijn twee slaapkamers gelegen waarvan er één momenteel in gebruik is als werkkamer. Aan de achterzijde is tevens de recent geplaatste luxe badkamer (2024) gesitueerd, voorzien van een ruime inloopdouche, wastafelmeubel en tweede toilet.

Trap naar:
Op deze etage zijn 2 ruime slaapkamers gesitueerd. Een aan de voorzijde en 1 aan de achterzijde van de woning. Erg charmant en sfeervol zijn de zichtbare balken en de paneeldeuren. De 2 geplaatste dakkapellen geven naast extra ruimte een fijne sfeer aan deze kamers. De wasruimte is gelegen aan de achterzijde van de woning en geeft naast de wasmachine-/drogeraansluiting en de Cv-installatie (2016) extra bergruimte.

Isolatie:
De woning is met uitzondering van de glas-in-lood ramen naast de voordeur, in erker en boven openslaande deuren geheel voorzien van HR beglazing. Op het platte hoofddak liggen 6 zonnepanelen 465wp (2024). Verder is de spouwmuur volledig geïsoleerd (2022). De begane grondvloer is geïsoleerd ten tijde van het funderingsherstel (2002)

Voor meer informatie betreffende deze woning kunt u terecht op onze exclusieve woningwebsite: ******

Bijzonderheden

• Karakteristieke jaren-30 tussenwoning met opbouw.
• Energielabel B!!
• Veel authentieke details aanwezig.
• Funderingsherstel uitgevoerd voor duurzaamheid.
• In 2022 is gevelisolatie toegepast en in 2024 zijn 6 zonnepanelen geplaatst 465wp .
• Amsterdamse buurt een rustige wijk waar kinderen veilig voor de deur kunnen spelen.
• Op loopafstand van warme bakker, groenteboer en Turkse supermarkt.
• Op loopafstand van het historische centrum van Haarlem en uitstekende bereikbaarheid naar de snelwegen Rottepolderplein (A9 & A5), openbaar vervoer (bus, trein vanuit Haarlem Centraal en Spaarnwoude), scholen en sportfaciliteiten.
• Nabijgelegen Reinaldapark met restaurant, sportmogelijkheden, groene parken en waterpartijen voor ontspannen wandelingen en recreatie.
• 3 Basisscholen op slechts 5 minuten lopen.
• Op 20minuten fietsafstand van het strand en de duinen.
• Gratis parkeren voor de deur.

English version:

Welcome to Dr. Schaepmanstraat 36, Haarlem

This charming 1930s family home with energylabel B is located in the highly sought-after Amsterdamse Buurt neighborhood of Haarlem. The property blends authentic character with numerous modern upgrades, including a partly tiled roof extension (2008), recently installed solar panels (2024), cavity wall insulation (2022), a luxurious open-plan kitchen (2016), and a PVC floor with underfloor heating.

Foundation repair was completed in 2002, ensuring the house is solid and reliable.

The Ideal Neighborhood
The Amsterdamse Buurt is known as a friendly and popular residential area, just a 10-minute walk from Haarlem’s vibrant city center. Here you’ll find an abundance of excellent restaurants, cultural attractions, and lively shopping streets. For daily groceries, the cozy Amsterdamstraat is only a short stroll away—along with the historic city gate Amsterdamse Poort.
Nearby amenities include a supermarket, schools, childcare, sports facilities, and a playground. The beautiful Reinaldapark is also within walking distance, offering lush greenery, scenic ponds, and peaceful walking routes.

Perfect Accessibility
The eastern location of Haarlem provides excellent connections to major highways such as the A9 and A5 at Rottepolderplein. Public transport options—including buses, Haarlem Central Station, and Spaarnwoude Station—are easily accessible, making this an ideal home for those who enjoy quiet living with quick access to the city.
Local Highlights
Don’t miss the weekly markets—on Saturdays at the Grote Markt and on Fridays at the Zomerkade—a perfect addition to your weekend routine.

Layout
Ground floor: Entrance, hallway with space for coats, fully renewed and expanded meter cupboard, stair closet, and modern toilet with wash basin. From the hallway, you enter the spacious living room featuring an authentic bay window, a modern gas fireplace, and high ceilings. Thanks to the large windows, the room enjoys abundant natural light.
At the rear of the house is the contemporary open-plan kitchen with a robust concrete countertop and built-in appliances, including a combi oven, steam oven, extractor hood, 5-burner induction hob, dishwasher, and fridge/freezer combination.
French doors open onto the southwest-facing garden—a sunny, private retreat perfect for relaxation.

First floor: Three well-sized bedrooms. At the rear, a spacious bedroom with a built-in wardrobe; at the front, two additional rooms, one currently used as a home office. The luxurious bathroom, newly installed in 2024, is located at the rear and features a spacious walk-in shower, washbasin unit, and second toilet.

Second floor: Two additional bright and charming bedrooms—one at the front and one at the rear—boasting visible beams and paneled doors. Two dormer windows add extra space and character. At the back is the laundry area with washer/dryer connections, the central heating system (2016), and extra storage space.

Energy Efficiency
Except for the stained-glass windows by the front door, in the bay window, and above the French doors, the entire house is fitted with HR (high-efficiency) glazing. The flat main roof features six 465Wp solar panels (2024). Cavity wall insulation was added in 2022, and the ground floor was insulated during the foundation repair in 2002.

For more information, visit our exclusive property website: ******.

Key Features:

•Characterful 1930s terraced home with roof extension
•Energylabel B!!
•Many authentic details preserved
•Foundation repair completed for long-term stability
•Façade insulation (2022) and six solar panels (2024, 465Wp each)
•Quiet, family-friendly neighborhood where children can safely play outdoors
•Walking distance to local bakery, greengrocer, and Turkish supermarket
•Easy walk to Haarlem’s historic city center, schools, public transport (bus, train), and sports facilities
•Close to Reinaldapark with restaurant, green areas, and recreational amenities
•Three primary schools within a 5-minute walk
•Approximately 20 minutes by bike to the beach and dunes
•Free parking in front of the house

Overdracht

Vraagprijs
€ 625.000 k.k.
Aangeboden sinds
29-01-2026
Status
Beschikbaar
Beschikbaar
In overleg
Onderhoudsstaat
Goed

Oppervlakte en inhoud

Woonoppervlakte
112 m²
Perceeloppervlakte
91 m²
Inhoud
397 m³

Bouw

Type woning
Huis
Soort woning
Tussenwoning (rijtjeshuis), Eengezinswoning
Soort bouw
Bestaande bouw
Bouwjaar
1926
Ligging
  • Aan een rustige weg
  • In een woonwijk

Indeling

Aantal kamers
6
Aantal slaapkamers
5
Aantal badkamers
1
Aantal woonlagen
3
Voorzieningen
  • Kabel TV
  • Glasvezelaansluiting
  • Internetaansluiting
  • Buitenzonwering
  • Douche
  • Toilet
  • Wasruimte

Buitenruimte

Balkon
Niet aanwezig
Tuin
Aanwezig (41 m², gelegen op het westen)
Tuinbeschrijving
achtertuin
Achterom
Niet aanwezig
Dakterras
Niet aanwezig

Energie

Isolatie
Spouwmuurisolatie, Vloerisolatie, Dakisolatie
Verwarming
CV-ketel, Gedeeltelijke vloerverwarming, Gashaard
Warm water
CV-ketel
Cv-ketel
Remeha Callenta (Gas, uit 2016, Eigendom)
Energielabel
B

Parkeergelegenheid

Aanwezig
Ja
Soort parkeergelegenheid
Openbaar
Meld een probleem met deze woning