Contact met de makelaar

Deze woning is gevonden buiten ons eigen netwerk. Met de knop hieronder kom je direct bij de aanbieder terecht.

Nieuw

Bertha von Suttnerstraat 9

Bekijk kaart
2037 LE Haarlem (Erasmusbuurt)
€ 499.000 k.k.
  • 125 m²
  • 9 kamers
  • 1970

Samenvatting

  • Deze woning wordt sinds 22 oktober 2025 aangeboden door De Beer Makelaars;
  • De tussenwoning heeft een woonoppervlakte van 125 m² en beschikt over 9 kamers, waarvan 4 slaapkamers;
  • De woning is gebouwd In 1970 en ligt in de buurt Erasmusbuurt in Haarlem;
  • De woning beschikt onder andere over de volgende voorzieningen: Kabel TV, Glasvezelaansluiting, Douche, Toilet.

Beschrijving

Meer woninginformatie bekijken?

Log in of registreer gratis.

Overdracht

Vraagprijs
€ 499.000 k.k.
Aangeboden sinds
22-10-2025
Status
Beschikbaar
Beschikbaar
In overleg
Onderhoudsstaat
Goed

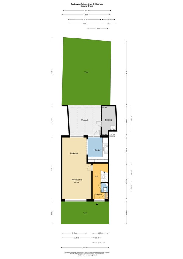
Oppervlakte en inhoud

Woonoppervlakte
125 m²
Perceeloppervlakte
158 m²
Inhoud
461 m³

Bouw

Type woning
Huis
Soort woning
Tussenwoning (rijtjeshuis), Eengezinswoning
Soort bouw
Bestaande bouw
Bouwjaar
1970
Ligging
In een woonwijk

Indeling

Aantal kamers
9
Aantal slaapkamers
4
Aantal badkamers
1
Aantal woonlagen
3
Voorzieningen
  • Kabel TV
  • Glasvezelaansluiting
  • Douche
  • Toilet

Buitenruimte

Balkon
Niet aanwezig
Tuin
Aanwezig (52 m², gelegen op het oosten)
Tuinbeschrijving
achtertuin, voortuin
Dakterras
Niet aanwezig

Energie

Isolatie
Dubbele beglazing, Vloerisolatie, HR glas, Dakisolatie
Verwarming
CV-ketel
Warm water
CV-ketel
Cv-ketel
Intergas Kompact HRE CW4 (uit 2025, Eigendom)
Energielabel
B

Bergruimte

Schuur/Berging
Aanwezig
Omschrijving
Aangebouwd steen

Parkeergelegenheid

Aanwezig
Ja
Soort parkeergelegenheid
Openbaar

Garage

Aanwezig
Ja
Omschrijving
Garagebox
Meld een probleem met deze woning
Contact met de makelaar Bel