Contact met de makelaar

Deze woning is gevonden buiten ons eigen netwerk. Met de knop hieronder kom je direct bij de aanbieder terecht.

Zuid Brouwersstraat 4

Bekijk kaart
2013 WT Haarlem (Leidsebuurt-oost)
€ 550.000 k.k.
  • 111 m²
  • 5 kamers
  • 1890

Samenvatting

  • Deze woning wordt sinds 2 weken aangeboden door UP Makelaars Haarlem;
  • De tussenwoning heeft een woonoppervlakte van 111 m² en beschikt over 5 kamers, waarvan 3 slaapkamers;
  • De woning is gebouwd In 1890 en ligt in de buurt Leidsebuurt-oost in Haarlem;
  • De woning beschikt onder andere over de volgende voorzieningen: Bad, Douche, Dakraam, Toilet.

Beschrijving

Meer woninginformatie bekijken?

Log in of registreer gratis.

Overdracht

Vraagprijs
€ 550.000 k.k.
Aangeboden sinds
08-10-2025
Status
Beschikbaar
Beschikbaar
In overleg
Onderhoudsstaat
Redelijk

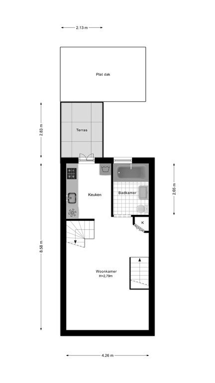
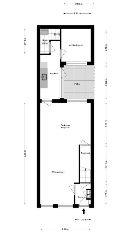
Oppervlakte en inhoud

Woonoppervlakte
111 m²
Perceeloppervlakte
67 m²
Inhoud
432 m³

Bouw

Type woning
Huis
Soort woning
Tussenwoning (rijtjeshuis), Eengezinswoning
Soort bouw
Bestaande bouw
Bouwjaar
1890
Ligging
  • Aan een rustige weg
  • In een woonwijk
  • Nabij het openbaar vervoer
  • Nabij een school
  • Buiten bebouwde kom
  • Beschut gelegen
  • Vrij uitzicht

Indeling

Aantal kamers
5
Aantal slaapkamers
3
Aantal badkamers
2
Aantal woonlagen
3
Voorzieningen
  • Bad
  • Douche
  • Dakraam
  • Toilet

Buitenruimte

Balkon
Niet aanwezig
Tuin
Aanwezig (7 m², gelegen op het zuidwesten)
Tuinbeschrijving
patio/atrium
Dakterras
Niet aanwezig

Energie

Isolatie
Muurisolatie
Verwarming
CV-ketel
Energielabel
D

Parkeergelegenheid

Aanwezig
Ja
Soort parkeergelegenheid
Openbaar
Meld een probleem met deze woning
Contact met de makelaar Bel