Contact met de makelaar

Deze woning is gevonden buiten ons eigen netwerk. Met de knop hieronder kom je direct bij de aanbieder terecht.

Nieuw

Langewerf 22

Bekijk kaart
4273 XT Hank (Hank)
€ 500.000 k.k.
  • 150 m²
  • 5 kamers
  • 1989

Samenvatting

  • Deze woning wordt sinds 20 november 2025 aangeboden door Rademakers Makelaardij;
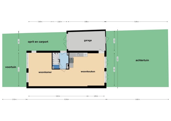
  • De geschakelde 2-onder-1-kapwoning heeft een woonoppervlakte van 150 m² en beschikt over 5 kamers, waarvan 4 slaapkamers;
  • De woning is gebouwd In 1989 en ligt in de buurt Hank in Hank;
  • De woning beschikt onder andere over de volgende voorzieningen: Airconditioning, Bad, Kabel TV, Glasvezelaansluiting, Internetaansluiting, Mechanische ventilatie, Rolluiken, Douche, Dakraam, Bergruimte, Toilet.

Beschrijving

Overdracht

Vraagprijs
€ 500.000 k.k.
Aangeboden sinds
20-11-2025
Status
Beschikbaar
Beschikbaar
In overleg
Onderhoudsstaat
Zeer goed

Oppervlakte en inhoud

Woonoppervlakte
150 m²
Perceeloppervlakte
219 m²
Inhoud
550 m³

Bouw

Type woning
Huis
Soort woning
Geschakelde 2-onder-1-kapwoning, Eengezinswoning
Soort bouw
Bestaande bouw
Bouwjaar
1989
Ligging
  • In een woonwijk
  • Nabij het openbaar vervoer
  • Nabij een school

Indeling

Aantal kamers
5
Aantal slaapkamers
4
Aantal badkamers
1
Aantal woonlagen
3
Voorzieningen
  • Airconditioning
  • Bad
  • Kabel TV
  • Glasvezelaansluiting
  • Internetaansluiting
  • Mechanische ventilatie
  • Rolluiken
  • Douche
  • Dakraam
  • Bergruimte
  • Toilet

Buitenruimte

Balkon
Niet aanwezig
Tuin
Aanwezig (83 m², gelegen op het oosten)
Tuinbeschrijving
achtertuin
Dakterras
Niet aanwezig

Energie

Isolatie
Spouwmuurisolatie, Dubbele beglazing, Vloerisolatie, Volledig geïsoleerd, Dakisolatie, Muurisolatie
Verwarming
CV-ketel, Gedeeltelijke vloerverwarming, Warmtepomp
Warm water
CV-ketel, Elektrische boiler
Cv-ketel
Nefit (Gas, uit 2022, Eigendom)
Energielabel
B

Parkeergelegenheid

Aanwezig
Ja
Soort parkeergelegenheid
Openbaar

Garage

Aanwezig
Ja
Meld een probleem met deze woning
Contact met de makelaar Bel