Contact met de makelaar

Deze woning is gevonden buiten ons eigen netwerk. Met de knop hieronder kom je direct bij de aanbieder terecht.

Nieuw

Weegbree 32

Bekijk kaart
1705 RA Heerhugowaard (Huygenhoek Zuid)
€ 492.500 k.k.
  • 167 m²
  • 5 kamers
  • 2009

Samenvatting

  • Deze woning wordt sinds 3 oktober 2025 aangeboden door Hoekstra & van Eck Heerhugowaard;
  • De hoekwoning heeft een woonoppervlakte van 167 m² en beschikt over 5 kamers, waarvan 4 slaapkamers;
  • De woning is gebouwd In 2009 en ligt in de buurt Huygenhoek Zuid in Heerhugowaard.

Beschrijving

Overdracht

Vraagprijs
€ 492.500 k.k.
Aangeboden sinds
03-10-2025
Status
Beschikbaar
Beschikbaar
In overleg

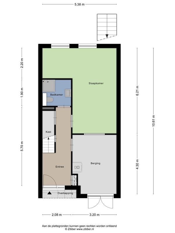
Oppervlakte en inhoud

Woonoppervlakte
167 m²
Perceeloppervlakte
92 m²
Inhoud
592 m³

Bouw

Type woning
Huis
Soort woning
Hoekwoning, Eengezinswoning
Soort bouw
Bestaande bouw
Bouwjaar
2009

Indeling

Aantal kamers
5
Aantal slaapkamers
4

Buitenruimte

Balkon
Niet aanwezig
Tuin
Aanwezig
Dakterras
Niet aanwezig

Energie

Energielabel
A+++

Garage

Aanwezig
Nee
Meld een probleem met deze woning
Contact met de makelaar Bel