Contact met de makelaar

Deze woning is gevonden buiten ons eigen netwerk. Met de knop hieronder kom je direct bij de aanbieder terecht.

Nieuw

Rens Prinshof 18

Bekijk kaart
1704 MW Heerhugowaard (Broekhorn)
€ 795.000 k.k.
  • 127 m²
  • 3 kamers
  • 2016

Samenvatting

  • Deze woning wordt sinds 29 januari 2026 aangeboden door Bakker Schoon Makelaardij;
  • De tussenwoning heeft een woonoppervlakte van 127 m² en beschikt over 3 kamers, waarvan 2 slaapkamers;
  • De woning is gebouwd In 2016 en ligt in de buurt Broekhorn in Heerhugowaard.

Beschrijving

In de aantrekkelijke wijk Broekhorn, op slechts 500 meter van het NS-station en 1 km van winkelcentrum Middenwaard, staat deze levensloopbestendige vrijstaande villa met een aangebouwde garage. Gelegen op 294 m² eigen grond, biedt de woning een woonoppervlakte van 127 m², exclusief zolder en garage. Gebouwd in 2016, beschikt het over uitstekende isolatie (energielabel A), 4 zonnepanelen en hardhouten kozijnen met HR++ beglazing.
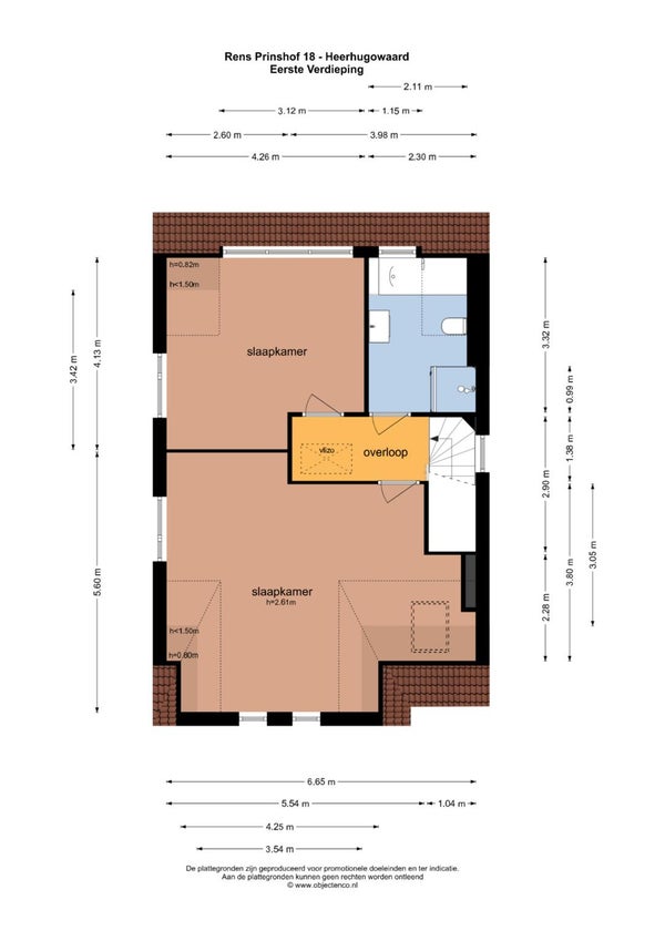
De indeling omvat een entree met toilet, een royale L-vormige woonkamer van 54 m² met hoekkeuken en dubbele tuindeuren. Op de eerste etage zijn twee ruime slaapkamers van 16 m² en 30 m², en een complete badkamer met vloerverwarming. De zolderify met nokhoogte van 2,13 meter biedt extra bergruimte. deze woning is perfect te betrekken of aan te passen aan levensloopbestendig wonen.

Overdracht

Vraagprijs
€ 795.000 k.k.
Aangeboden sinds
29-01-2026
Status
Beschikbaar
Beschikbaar
Per direct

Oppervlakte en inhoud

Woonoppervlakte
127 m²
Perceeloppervlakte
294 m²

Bouw

Type woning
Huis
Soort woning
Tussenwoning (rijtjeshuis), Eengezinswoning
Soort bouw
Bestaande bouw
Bouwjaar
2016

Indeling

Aantal kamers
3
Aantal slaapkamers
2
Aantal badkamers
1

Buitenruimte

Dakterras
Niet aanwezig

Energie

Energielabel
A
Meld een probleem met deze woning