Contact met de makelaar

Deze woning is gevonden buiten ons eigen netwerk. Met de knop hieronder kom je direct bij de aanbieder terecht.

Nieuw

Abt Neefsstraat 9

Bekijk kaart
5473 DD Heeswijk-Dinther (De abdij)
€ 395.000 k.k.
  • 110 m²
  • 6 kamers
  • 1986

Samenvatting

  • Deze woning wordt sinds 30 januari 2026 aangeboden door Mijn Huis Verkoop Ik Zelf;
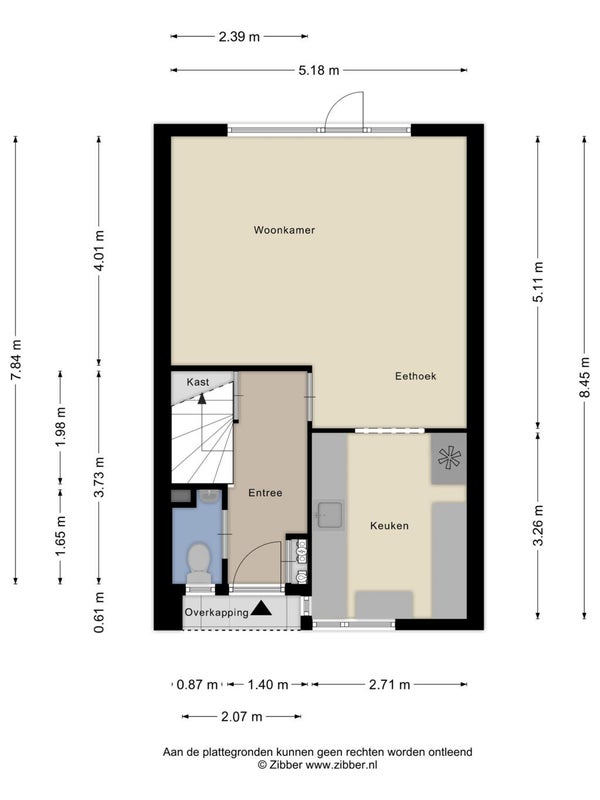
  • De hoekwoning heeft een woonoppervlakte van 110 m² en beschikt over 6 kamers;
  • De woning is gebouwd In 1986 en ligt in de buurt De abdij in Heeswijk-Dinther.

Beschrijving

Stap binnen in deze fijne hoekwoning midden in de kern van het gezellige Heeswijk-Dinther. Een plek waar alles klopt: rustig wonen, maar met alle dagelijkse voorzieningen letterlijk om de hoek. Op nog geen 300 meter afstand vind je de winkels voor de dagelijkse boodschappen, terwijl ook basisscholen op loopafstand liggen. Dit is zo’n woning waar je je meteen thuis voelt.

De woning beschikt over maar liefst vijf nette slaapkamers, waardoor er ruimte is voor het hele gezin, een thuiswerkplek of hobbykamer. Dankzij de praktische indeling en prettige lichtinval is elke ruimte functioneel én comfortabel. Mechanische ventilatie zorgt voor een gezond binnenklimaat en de recent vernieuwde cv-ketel (januari 2025) biedt extra zekerheid voor de komende jaren.

Achter de woning ligt een ruime en zonnige tuin met eigen achterom: ideaal voor spelende kinderen, lange zomeravonden of gewoon een moment van rust. De zonwering over de volledige breedte van de woning maakt het ook op warme dagen aangenaam. De schutting aan de straatzijde is in 2018 vernieuwd en draagt bij aan zowel privacy als een verzorgde uitstraling. Op de tweede verdieping zijn alle ramen voorzien van op maat gemaakte horren, een detail dat het wooncomfort compleet maakt.

De buurt is kindvriendelijk en rustig, met weinig verkeer en een prettige dorpssfeer. Heeswijk-Dinther staat bekend om zijn hechte gemeenschap, groene omgeving en het bourgondische karakter. Tegelijkertijd woon je hier verrassend centraal: binnen vijf minuten rijd je richting de A50 en steden als Den Bosch, Nijmegen, Eindhoven en Tilburg zijn allemaal binnen circa 30 minuten bereikbaar. Een perfecte combinatie van dorps wonen en stedelijke bereikbaarheid.

Hoogtepunten op een rij:

  • Hoekwoning in de kern van Heeswijk-Dinther
  • 5 volwaardige slaapkamers
  • Winkels en basisscholen op loopafstand
  • Ruime tuin met eigen achterom
  • Zonwering over de volledige breedte van de woning
  • Cv-ketel vernieuwd in januari 2025
  • Mechanische ventilatie aanwezig
  • Horren op maat op de tweede verdieping
  • Rustige, kindvriendelijke wijk
  • Uitstekende bereikbaarheid richting A50 en omliggende steden

Ben je op zoek naar een comfortabele gezinswoning op een centrale, maar rustige locatie? Dan nodigen we je van harte uit om deze woning zelf te komen ervaren. Maak snel een afspraak voor een bezichtiging en laat je verrassen door de ruimte, de sfeer en de fijne ligging van Abt Neefsstraat 9.

Gevonden op ******

Overdracht

Vraagprijs
€ 395.000 k.k.
Aangeboden sinds
30-01-2026
Status
Beschikbaar
Beschikbaar
In overleg

Oppervlakte en inhoud

Woonoppervlakte
110 m²
Perceeloppervlakte
136 m²
Inhoud
390 m³

Bouw

Type woning
Huis
Soort woning
Hoekwoning, Eengezinswoning
Soort bouw
Bestaande bouw
Bouwjaar
1986

Indeling

Aantal kamers
6

Buitenruimte

Tuin
Aanwezig
Dakterras
Niet aanwezig

Garage

Aanwezig
Nee
Meld een probleem met deze woning