Contact met de makelaar

Deze woning is gevonden buiten ons eigen netwerk. Met de knop hieronder kom je direct bij de aanbieder terecht.

Nieuw

Konijn 14

Bekijk kaart
3225 RH Hellevoetsluis (Morgen Stont)
€ 369.000 k.k.
  • 97 m²
  • 4 kamers
  • 1982

Samenvatting

  • Deze woning wordt sinds 24 oktober 2025 aangeboden door WM Makelaardij & Taxaties;
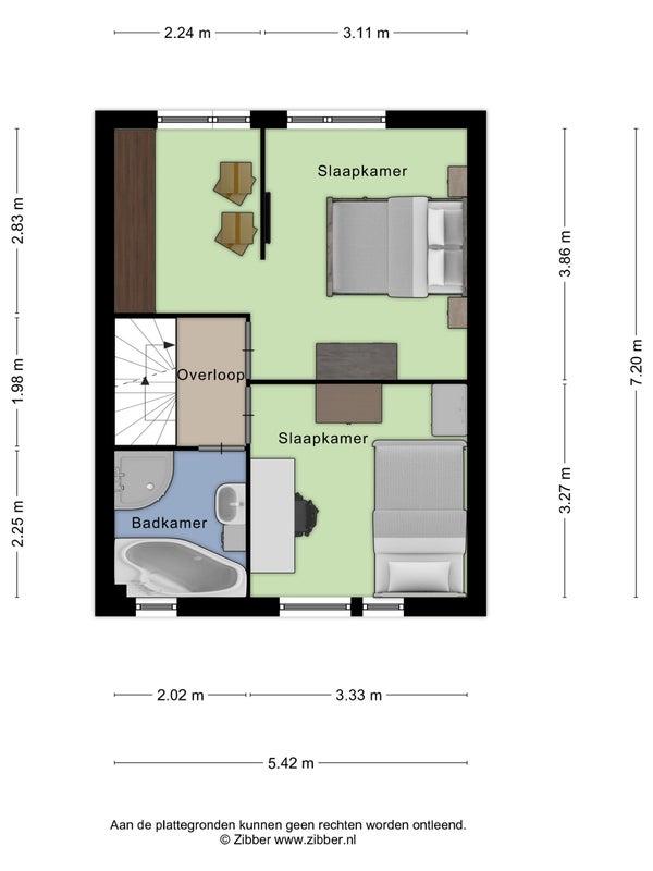
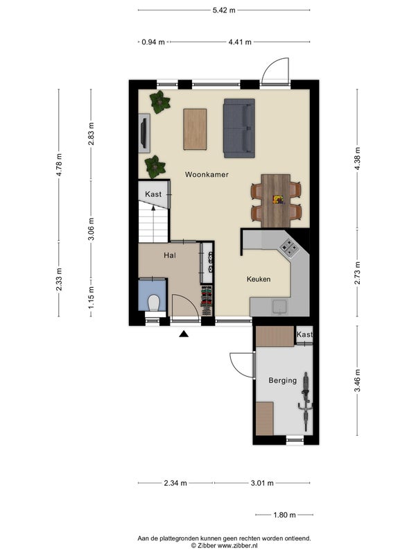
  • De tussenwoning heeft een woonoppervlakte van 97 m² en beschikt over 4 kamers, waarvan 3 slaapkamers;
  • De woning is gebouwd In 1982 en ligt in de buurt Morgen Stont in Hellevoetsluis;
  • De woning beschikt onder andere over de volgende voorzieningen: Bad, Buitenzonwering, Douche, Dakraam, Bergruimte, Toilet, Wasruimte.

Beschrijving

Overdracht

Vraagprijs
€ 369.000 k.k.
Aangeboden sinds
24-10-2025
Status
Beschikbaar
Beschikbaar
In overleg
Onderhoudsstaat
Goed

Oppervlakte en inhoud

Woonoppervlakte
97 m²
Perceeloppervlakte
156 m²
Inhoud
361 m³

Bouw

Type woning
Huis
Soort woning
Tussenwoning (rijtjeshuis), Eengezinswoning
Soort bouw
Bestaande bouw
Bouwjaar
1982
Ligging
In een woonwijk

Indeling

Aantal kamers
4
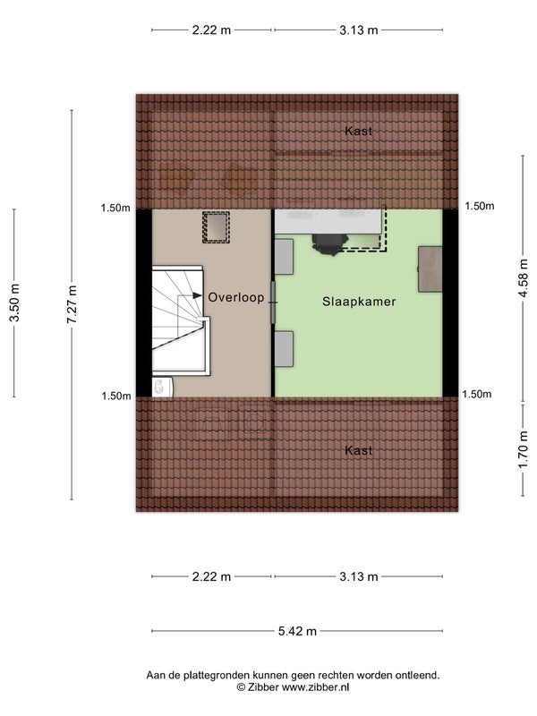
Aantal slaapkamers
3
Aantal badkamers
1
Aantal woonlagen
3
Voorzieningen
  • Bad
  • Buitenzonwering
  • Douche
  • Dakraam
  • Bergruimte
  • Toilet
  • Wasruimte

Buitenruimte

Balkon
Niet aanwezig
Tuin
Aanwezig (63 m², gelegen op het westen)
Tuinbeschrijving
achtertuin, voortuin
Dakterras
Niet aanwezig

Energie

Isolatie
Dubbele beglazing
Verwarming
CV-ketel
Warm water
CV-ketel
Cv-ketel
Intergas HR (Gas, uit 2023, Eigendom)
Energielabel
C

Bergruimte

Schuur/Berging
Aanwezig
Omschrijving
Aangebouwd steen

Parkeergelegenheid

Aanwezig
Ja
Soort parkeergelegenheid
Openbaar

Garage

Aanwezig
Nee
Meld een probleem met deze woning
Contact met de makelaar Bel