Contact met de makelaar

Deze woning is gevonden buiten ons eigen netwerk. Met de knop hieronder kom je direct bij de aanbieder terecht.

Nieuw

Hunzestraat 55

Bekijk kaart
5704 GS Helmond (Brouwhuis-West)
€ 379.000 k.k.
  • 101 m²
  • 5 kamers
  • 1989

Samenvatting

  • Deze woning wordt sinds 28 januari 2026 aangeboden door Theo Keijzers Makelaardij;
  • De tussenwoning heeft een woonoppervlakte van 101 m² en beschikt over 5 kamers, waarvan 4 slaapkamers;
  • De woning is gebouwd In 1989 en ligt in de buurt Brouwhuis-West in Helmond.

Beschrijving

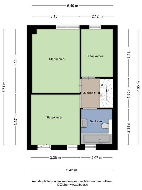
Deze ruime tussenwoning met garage aan het voetpad in Brouwhuis is omgeven door groen en bossen. De woning heeft een praktische indeling met een royale woonkamer van circa 27 m², vier ruime slaapkamers en een vaste trap naar de tweede verdieping. De garage, bereikbaar via een doodlopend straatje, bevindt zich achter op het perceel. Voorzieningen zoals scholen, winkels en sportfaciliteiten zijn binnen handbereik. De woning is gasloos en aangesloten op stadsverwarming. De lichte hal met laminaatvloer leidt naar de Z-vormige woonkamer met grote ramen. De open keuken biedt toegang tot de bijkeuken en het gastentoilet. De eerste verdieping heeft drie slaapkamers en een volledig betegelde badkamer. De tweede verdieping heeft een vierde slaapkamer en een ruime overloop. De onderhoudsvriendelijke achtertuin heeft een overdekt terras en een ruime garage.

Overdracht

Vraagprijs
€ 379.000 k.k.
Aangeboden sinds
28-01-2026
Status
Beschikbaar
Beschikbaar
Per direct

Oppervlakte en inhoud

Woonoppervlakte
101 m²
Perceeloppervlakte
150 m²

Bouw

Type woning
Huis
Soort woning
Tussenwoning (rijtjeshuis), Eengezinswoning
Soort bouw
Bestaande bouw
Bouwjaar
1989

Indeling

Aantal kamers
5
Aantal slaapkamers
4
Aantal badkamers
1

Buitenruimte

Dakterras
Niet aanwezig

Energie

Energielabel
C
Meld een probleem met deze woning