Contact met de aanbieder

Deze woning is gevonden buiten ons eigen netwerk. Via de knop hieronder ga je direct naar de website van de aanbieder.

Nieuw

De Veldoven

Bekijk kaart
3342 GR Hendrik-Ido-Ambacht (De Sandeling)
€ 750.000 k.k.
  • 238 m²
  • 6 kamers
  • 2025

Samenvatting

  • Deze woning wordt sinds 26 februari 2026 aangeboden door Estate Makelaar B.V;
  • De tussenwoning heeft een woonoppervlakte van 238 m² en beschikt over 6 kamers, waarvan 4 slaapkamers;
  • De woning is gebouwd In 2025 en ligt in de buurt De Sandeling in Hendrik-Ido-Ambacht.

Beschrijving

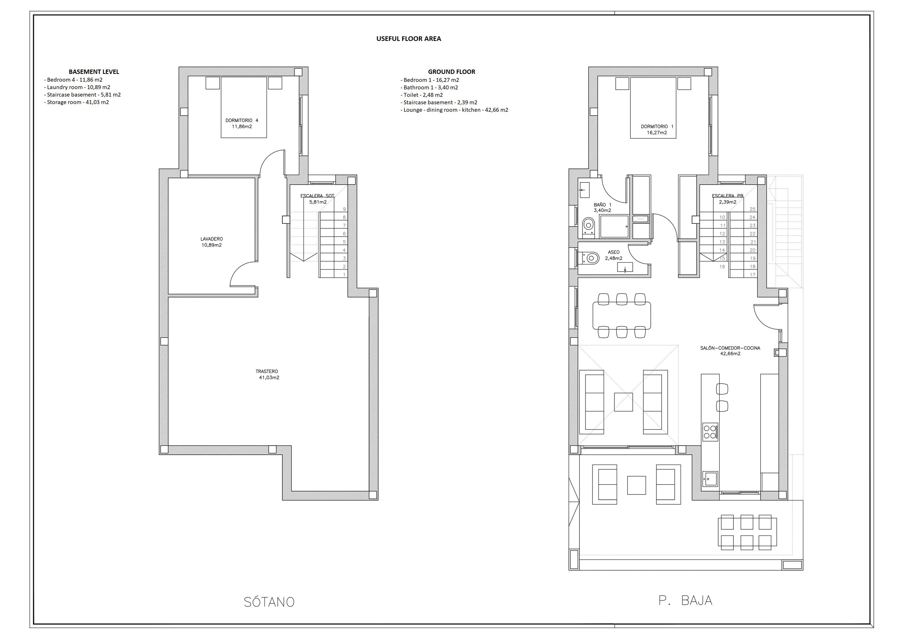
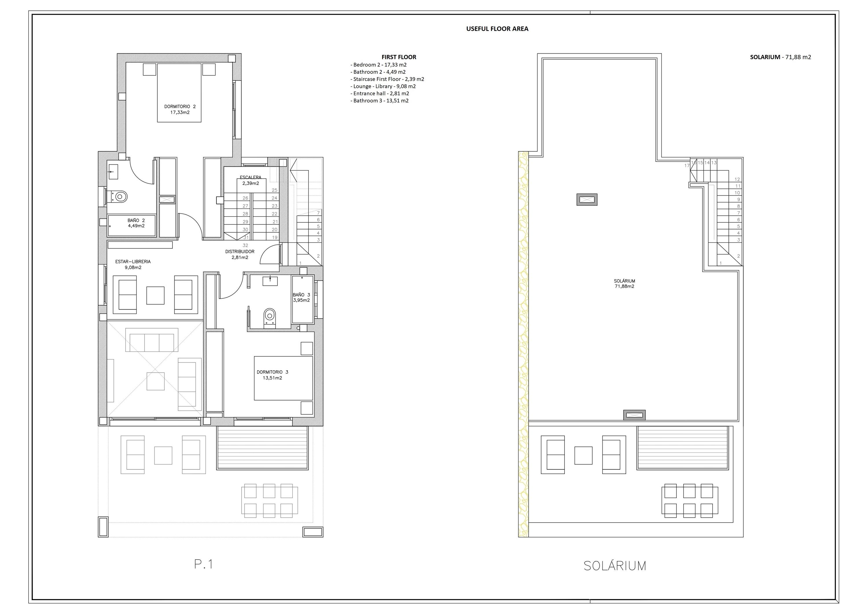
In het hart van Torrevieja zijn twee moderne villa's gebouwd, op slechts 1,5 km van het prachtige La Mata strand. Elke villa beschikt over 4 slaapkamers, 3 badkamers, en een apart toilet, samen met twee ruime woonkamers en een keuken. Het perceel van 420 m² biedt een vrijstaand huis met een woonoppervlakte van 238 m², inclusief een privézwembad dat perfect is voor de warme dagen. Geniet van buitenleven op het grote dakterras van 72 m², het balkon, en het tuinterras. In de onderbouw vindt u de vierde slaapkamer en een grote berging. De villa is volledig geïsoleerd en heeft een onderhoudsvriendelijke tuin met parkeergelegenheid op eigen terrein.

Overdracht

Vraagprijs
€ 750.000 k.k.
Prijs per m²
€ 3.151
Aangeboden sinds
26-02-2026
Status
Beschikbaar
Beschikbaar
Per direct

Oppervlakte en inhoud

Woonoppervlakte
238 m²

Bouw

Type woning
Huis
Soort woning
Tussenwoning (rijtjeshuis), Eengezinswoning
Soort bouw
Bestaande bouw
Bouwjaar
2025

Indeling

Aantal kamers
6
Aantal slaapkamers
4
Aantal badkamers
3

Buitenruimte

Dakterras
Niet aanwezig
Meld een probleem met deze woning