- 96 m²
- 4 kamers
- 1904
Samenvatting
- Deze woning wordt sinds 30 oktober 2025 aangeboden door Schotsman Makelaardij;
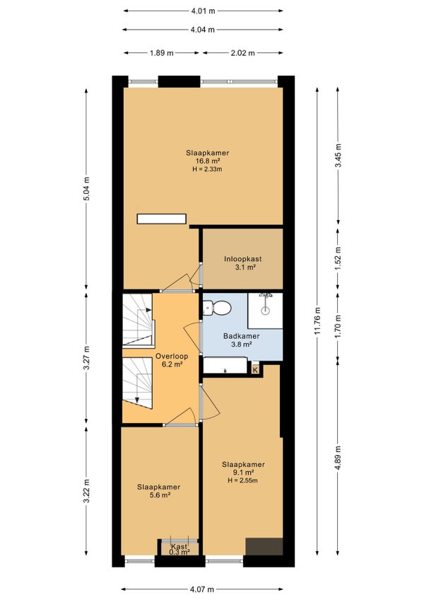
- De tussenwoning heeft een woonoppervlakte van 96 m² en beschikt over 4 kamers, waarvan 3 slaapkamers;
- De woning is gebouwd In 1904 en ligt in de buurt Bloemenkwartier Noord in Hilversum.
Beschrijving
Overdracht
- Vraagprijs
- € 550.000 k.k.
- Aangeboden sinds
- 30-10-2025
- Status
- Beschikbaar
- Beschikbaar
- In overleg
Oppervlakte en inhoud
- Woonoppervlakte
- 96 m²
- Perceeloppervlakte
- 135 m²
Bouw
- Type woning
- Huis
- Soort woning
- Tussenwoning (rijtjeshuis), Eengezinswoning
- Soort bouw
- Bestaande bouw
- Bouwjaar
- 1904
Indeling
- Aantal kamers
- 4
- Aantal slaapkamers
- 3
- Aantal badkamers
- 1
Buitenruimte
- Dakterras
- Niet aanwezig
 
                 
                 
                 
                 
                 
                 
                 
                 
                 
                 
                 
                 
                 
                 
                 
                 
                 
                 
                 
                 
                 
                 
                 
                 
                 
                 
                 
                 
                 
                 
                 
                 
                 
                 
                 
                 
                 
                 
                 
                 
                 
                