Contact met de makelaar

Deze woning is gevonden buiten ons eigen netwerk. Met de knop hieronder kom je direct bij de aanbieder terecht.

Nieuw

Hamseweg

Bekijk kaart
3828 AE Hoogland (De Bik)
€ 1.195.000 k.k.
  • 107 m²
  • 3 kamers
  • 2001

Samenvatting

  • Deze woning wordt sinds 23 januari 2026 aangeboden door Kiers Vastgoed - Makelaar in Amersfoort & Hoogland;
  • De tussenwoning heeft een woonoppervlakte van 107 m² en beschikt over 3 kamers, waarvan 2 slaapkamers;
  • De woning is gebouwd In 2001 en ligt in de buurt De Bik in Hoogland.

Beschrijving

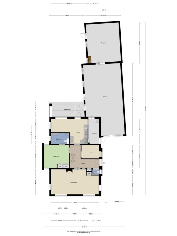
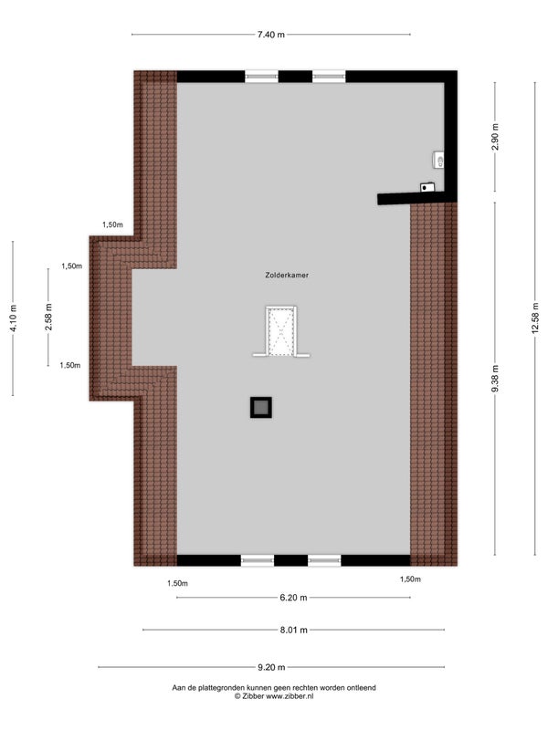
Aan de brede Hamseweg in Hoogland staat deze unieke vrijstaande woning op een royaal perceel van 718 m². De woning biedt de mogelijkheid om gelijkvloers te leven en is bovendien uitbreidbaar voor privé- en zakelijke doeleinden. Op de begane grond bevinden zich twee slaapkamers, een badkamer, een ruime woonkamer en een dichte woonkeuken met uitzicht op de tuin. Via een bijkeuken heb je toegang tot de royale garage van circa 68 m². De eerste verdieping met betonvloer en isolatie kan eenvoudig worden omgevormd tot extra woonruimte, zoals drie slaapkamers en een tweede badkamer. De tuin is zonnig gelegen op het zuidwesten, met een breed overdekt terras. Vanuit de woning heb je een goede verbinding met winkels, scholen en openbaar vervoer.

Overdracht

Vraagprijs
€ 1.195.000 k.k.
Aangeboden sinds
23-01-2026
Status
Beschikbaar
Beschikbaar
Per direct

Oppervlakte en inhoud

Woonoppervlakte
107 m²
Perceeloppervlakte
718 m²

Bouw

Type woning
Huis
Soort woning
Tussenwoning (rijtjeshuis), Eengezinswoning
Soort bouw
Bestaande bouw
Bouwjaar
2001

Indeling

Aantal kamers
3
Aantal slaapkamers
2
Aantal badkamers
1

Buitenruimte

Dakterras
Niet aanwezig

Energie

Energielabel
C
Meld een probleem met deze woning