Contact met de makelaar

Deze woning is gevonden buiten ons eigen netwerk. Met de knop hieronder kom je direct bij de aanbieder terecht.

Verkocht onder voorbehoud

Cole Porterhof 101

Bekijk kaart
1628 TK Hoorn (Kersenboogerd-Zuid - Buurt 33 05)
€ 650.000 k.k.
  • 158 m²
  • 6 kamers
  • 1995

Samenvatting

  • Deze woning wordt sinds 6 weken aangeboden door Hoekstra & Van Eck Hoorn;
  • De vrijstaande woning heeft een woonoppervlakte van 158 m² en beschikt over 6 kamers, waarvan 4 slaapkamers;
  • De woning is gebouwd In 1995 en ligt in de buurt Kersenboogerd-Zuid - Buurt 33 05 in Hoorn.

Beschrijving

Direct online een bezichtiging inplannen? Ga naar onze website!

JE DROOMHUIS IN KERSENBOOGERD ZUID
Ben je op zoek naar een royale gezinswoning in een groene, rustige wijk met alle voorzieningen binnen handbereik? Dan is deze parel in Kersenboogerd Zuid jouw kans! Deze zeer ruime woning heeft alles wat je zoekt: een goed onderhouden interieur, vier riante slaapkamers, een fraai aangelegde tuin met veranda én een vrijstaande garage/berging. Dit is jouw kans op heerlijk wonen met volop privacy, eigen parkeerplekken en een ligging die zorgt voor een perfecte balans tussen rust en comfort. Ideaal voor jonge gezinnen, gezinnen met opgroeiende kinderen, of mensen die net even die extra ruimte in huis willen.

HIGHLIGHTS DIE JOU WELLICHT OVERTUIGEN

Royaal wonen: Deze woning biedt verrassend veel leefruimte met vier grote slaapkamers, een fijne werkkamer en een riante begane grond.
Prima onderhouden: Het huis is praktisch instapklaar en perfect verzorgd.
Een vrijstaande garage/berging: Achterin de tuin bevindt zich een praktische, vrijstaande garage/berging die momenteel in twee delen is gesplitst.
Parkeren op eigen terrein: Geen gedoe met zoeken naar een parkeerplek, je eigen auto’s parkeer je eenvoudig op jouw eigen oprit en voor de garage/berging.
Ruime slaapkamers voor iedereen: De woning beschikt over grote slaapkamers, ideaal voor gezinnen die ruimte waarderen.

Duurzaam met 14 zonnepanelen!
Fraaie tuin met veranda: Je eigen grote tuin met een prachtige veranda met glazen dak; de perfecte plek om zomer en winter van het buitenleven te genieten.

VOLLEDIGE OMSCHRIJVING: PAS DE SLEUTEL IN HET SLOT VAN JE NIEUWE THUIS
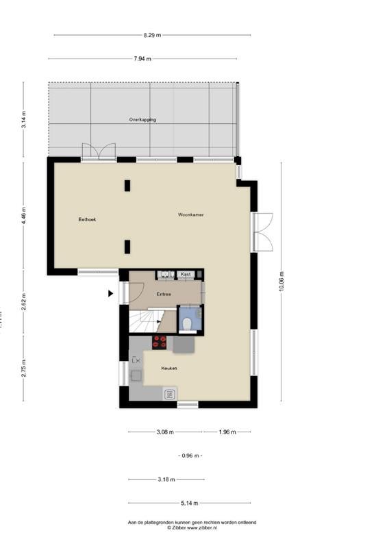
Welkom in dit royale familiehuis midden in de geliefde wijk Kersenboogerd Zuid, Hoorn. Zodra je de voordeur opent, proef je het huiselijke karakter en de moderne uitstraling van deze ideale gezinswoning. De entree, met een keurige vloer en lichte wanden, geeft toegang tot de trapopgang, meterkast en een keurig afgewerkt toilet. Loop verder naar de woonkamer en ontdek een heerlijk lichte ruimte perfect voor gezellige familieavonden of ontspannen momenten met een goed boek. Dankzij de vloer- en hete luchtverwarming op de begane grond geniet je hier altijd van een behaaglijk warme sfeer.

Aan de voorzijde tref je een nette keuken in U-opstelling, voorzien van alle gemakken en apparatuur die je van een kookruimte mag verwachten. Kook je een uitgebreide maaltijd voor familie en vrienden? Of werk je aan een snelle hap voor een drukke dag? Hier is koken altijd een feestje. De woonkamer loopt naadloos over in de eetkamer waar je grote ramen hebt die uitkijken op de prachtig aangelegde tuin.

De tuin is een oase van rust en privacy. Met een veranda die is voorzien van een glazen dak, kun je ook in het voorjaar of het najaar genieten van het buitenleven. Of het nu regent of de zon uitbundig schijnt, hier kun je loungen of uitgebreid borrelen met vrienden. Achterin de tuin vind je een extra verrassing: een vrijstaande garage/berging die momenteel in twee delen is gesplitst. Perfect als berging, klusruimte of misschien een hobbyplek? De mogelijkheden zijn eindeloos.

Op de eerste verdieping vind je twee royale slaapkamers en een nette, complete badkamer. Beide slaapkamers bieden alle ruimte die je nodig hebt, of het nu gaat om een masterbedroom, kinderkamers of een werkruimte. De badkamer is voorzien van een wastafelmeubel, douche en toilet.

De tweede verdieping herbergt nog eens twee ruime slaapkamers en een werkkamer. Hierdoor heeft ieder gezinslid zijn eigen plek én heb je voldoende ruimte voor een thuiskantoor of hobbyruimte. Dankzij de slimme indeling van het huis past elk stukje van dit huis bij de verschillende fases in je leven.

Parkeren hoef je nooit meer als een uitdaging te zien. Voor de woning en de garage/berging heb je meer dan genoeg eigen parkeerruimte, ideaal voor een of meerdere auto’s. De wijk zelf is ook een feestje: Kersenboogerd Zuid biedt volop rust en groen, én tal van voorzieningen zoals scholen, winkels en openbaar vervoer op steenworp afstand.

Of je nu met een jong gezin op zoek bent naar een fijne woonplek, kinderen hebt die net iets meer ruimte vragen of simpelweg toe bent aan een rianter thuis in een mooie buurt, deze woning biedt de perfecte basis voor jouw toekomst.

HIGHLIGHTS IN DETAIL
De begane grond is afgewerkt met een nette vloer met vloerverwarming en licht afgewerkte wanden. Aan de voorzijde van de woning bevindt zich een nette keuken in een praktische U-opstelling. Aan de tuinzijde van zowel de woonkamer als de eetkamer stap je via openslaande deuren of loopdeur de fijne achtertuin in, compleet met een fraaie veranda. Hier kun je het hele jaar door genieten van de buitenlucht, beschut en comfortabel. Achterin de tuin bevindt zich de vrijstaande garage/berging in twee delen gesplitst, ideaal voor al je opslag, klusruimte of hobbyplek. Op de eerste verdieping tref je twee bijzonder ruime slaapkamers en de badkamer. De tweede verdieping biedt nog meer ruimte: twee royale slaapkamers én een werkkamer. En dat alles met volop lichtinval, slimme indeling en een ruime oprit voor al je voertuigen.

KORTE HIGHLIGHTS OP EEN RIJ
Deze woning combineert ruimte, comfort en een toplocatie. Vier ruime slaapkamers en een werkkamer zorgen voor de perfecte indeling voor een groot gezin. De praktische begane grond met open leefruimtes en toegankelijke tuin zorgt voor een fijne dynamiek. Hier vind je een keuken in U-opstelling, elektrische vloerverwarming en een fraai aangelegde veranda. De vrijstaande garage/berging biedt volop opties voor opslag of hobby’s, terwijl je eigen oprit plek genoeg biedt voor meerdere auto’s. Inpakken en verhuizen maar!

Overdracht

Vraagprijs
€ 650.000 k.k.
Aangeboden sinds
10-12-2025
Status
Verkocht onder voorbehoud
Beschikbaar
In overleg

Oppervlakte en inhoud

Woonoppervlakte
158 m²
Perceeloppervlakte
301 m²
Inhoud
588 m³

Bouw

Type woning
Huis
Soort woning
Vrijstaande woning, Eengezinswoning
Soort bouw
Bestaande bouw
Bouwjaar
1995

Indeling

Aantal kamers
6
Aantal slaapkamers
4

Buitenruimte

Balkon
Niet aanwezig
Tuin
Aanwezig
Dakterras
Niet aanwezig

Energie

Energielabel
B

Garage

Aanwezig
Ja
Meld een probleem met deze woning