Contact met de makelaar

Deze woning is gevonden buiten ons eigen netwerk. Met de knop hieronder kom je direct bij de aanbieder terecht.

Nieuw

Melkweg

Bekijk kaart
1622 BA Hoorn (Grote Waal - Buurt 13 01)
€ 380.000 k.k.
  • 120 m²
  • 4 kamers
  • 1972

Samenvatting

  • Deze woning wordt sinds 26 november 2025 aangeboden door KUIN MAKELAARDIJ, actief en gedreven;
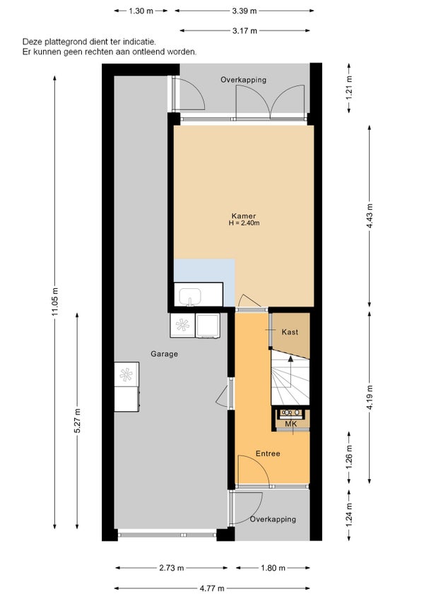
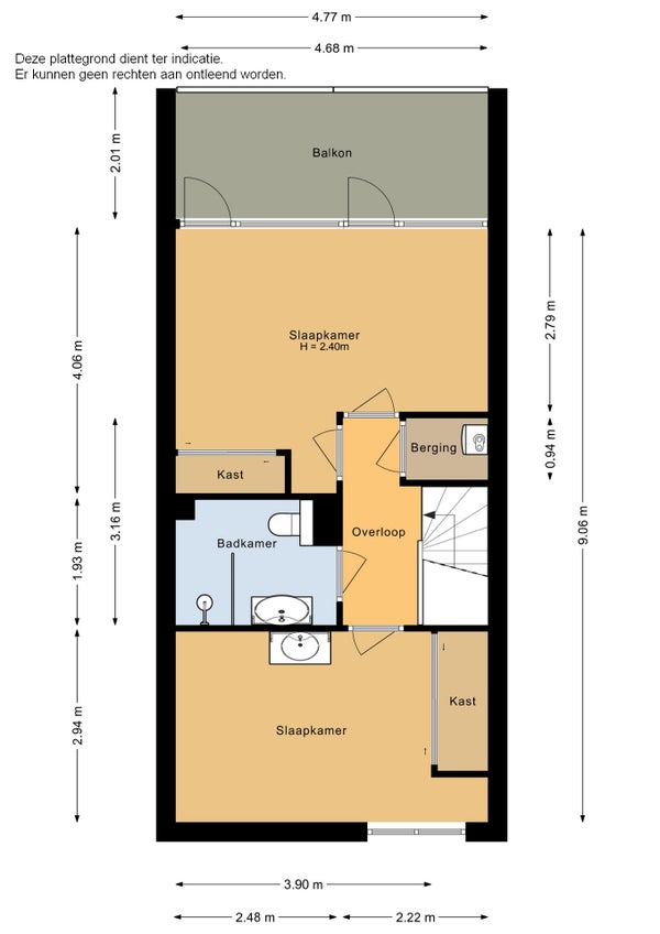
  • De tussenwoning heeft een woonoppervlakte van 120 m² en beschikt over 4 kamers, waarvan 2 slaapkamers;
  • De woning is gebouwd In 1972 en ligt in de buurt Grote Waal - Buurt 13 01 in Hoorn.

Beschrijving

Overdracht

Vraagprijs
€ 380.000 k.k.
Aangeboden sinds
26-11-2025
Status
Beschikbaar
Beschikbaar
In overleg

Oppervlakte en inhoud

Woonoppervlakte
120 m²
Perceeloppervlakte
121 m²

Bouw

Type woning
Huis
Soort woning
Tussenwoning (rijtjeshuis), Eengezinswoning
Soort bouw
Bestaande bouw
Bouwjaar
1972

Indeling

Aantal kamers
4
Aantal slaapkamers
2
Aantal badkamers
1

Buitenruimte

Dakterras
Niet aanwezig

Energie

Energielabel
C
Meld een probleem met deze woning