Contact met de makelaar

Deze woning is gevonden buiten ons eigen netwerk. Met de knop hieronder kom je direct bij de aanbieder terecht.

Nieuw

Woensbergweg 1

Bekijk kaart
1272 JP Huizen (Huizerhoogt)
€ 1.465.000 k.k.
  • 184 m²
  • 6 kamers
  • 1961

Samenvatting

  • Deze woning wordt sinds 28 januari 2026 aangeboden door Eerenberg Makelaars & Taxateurs B.V.;
  • De tussenwoning heeft een woonoppervlakte van 184 m² en beschikt over 6 kamers, waarvan 4 slaapkamers;
  • De woning is gebouwd In 1961 en ligt in de buurt Huizerhoogt in Huizen.

Beschrijving

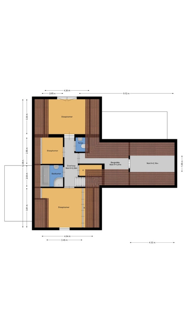
Deze vrijstaande villa, gelegen op 't Huizerhoogt aan de grens van Blaricum en Huizen, heeft een totaal grondoppervlak van 875 m². De woning beschikt over een verlengde garage, een oprit voor meerdere auto's en een zonnige tuin met veel privacy. De woning groet u met een entree en hal die toegang biedt tot een modern toilet, een proviand- en wijnkelder, en een lichte woonkamer van circa 59 m² met een gasopen haard en openslaande deuren naar de tuin. De luxe eetkeuken is voorzien van inbouwapparatuur, vergezeld door een bijkeuken met vloerverwarming. Op de benedenverdieping vindt u een royale slaapkamer met airconditioning en een moderne badkamer met inloopdouche. De verdieping biedt drie kamers, twee ruime slaapkamers, een tweede badkamer en toegang tot een royale bergzolder. Deze levensloopbestendige woning is voorzien van moderne voorzieningen, waaronder dubbele beglazing, zonwering en een alarminstallatie.

Overdracht

Vraagprijs
€ 1.465.000 k.k.
Aangeboden sinds
28-01-2026
Status
Beschikbaar
Beschikbaar
Per direct

Oppervlakte en inhoud

Woonoppervlakte
184 m²
Perceeloppervlakte
875 m²

Bouw

Type woning
Huis
Soort woning
Tussenwoning (rijtjeshuis), Eengezinswoning
Soort bouw
Bestaande bouw
Bouwjaar
1961

Indeling

Aantal kamers
6
Aantal slaapkamers
4
Aantal badkamers
2

Buitenruimte

Dakterras
Niet aanwezig

Energie

Energielabel
D
Meld een probleem met deze woning