Contact met de aanbieder

Deze woning is gevonden buiten ons eigen netwerk. Via de knop hieronder ga je direct naar de website van de aanbieder.

Woensbergweg 1

Bekijk kaart
1272 JP Huizen (Huizerhoogt)
€ 1.465.000 k.k.
  • 184 m²
  • 6 kamers
  • 1961

Samenvatting

  • Deze woning wordt sinds 4 weken aangeboden door Eerenberg Makelaars & Taxateurs B.V.;
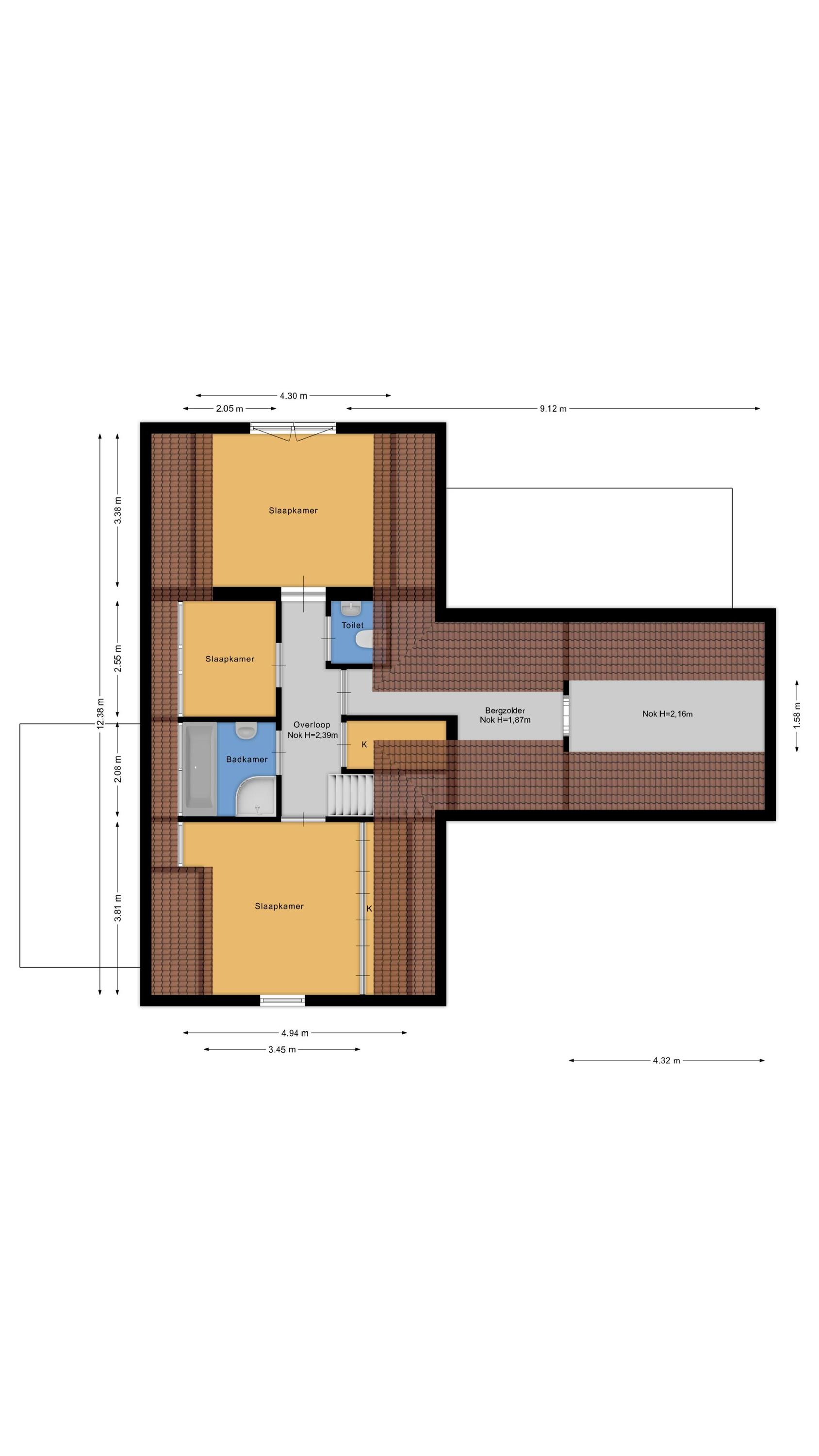
  • De tussenwoning heeft een woonoppervlakte van 184 m² en beschikt over 6 kamers, waarvan 4 slaapkamers;
  • De woning is gebouwd In 1961 en ligt in de buurt Huizerhoogt in Huizen.

Beschrijving

Deze vrijstaande villa, gelegen aan ’t Huizerhoogt op de grens van Blaricum en Huizen, biedt een ideale combinatie van rust en nabijheid van de natuur. Met een totale grondoppervlak van 875 m2 beschikt de woning over een ruime oprit voor meerdere auto’s, een verlengde garage en een zonnige tuin met privacy. De indeling omvat een lichte woonkamer van ongeveer 59 m2 met een gasopenhaard, een serre, en een eetkeuken met inbouwapparatuur. Op de parterre vindt u een royale slaapkamer met airco en een moderne badkamer. De verdieping herbergt drie kamers, waaronder twee slaapkamers en een werk-/logeerkamer, en een tweede badkamer. De woning is energiezuinig met dubbele beglazing en isolatie. Comfortabel wonen dichtbij het Goois Natuurreservaat, met alle voorzieningen van Blaricum binnen handbereik.

Overdracht

Vraagprijs
€ 1.465.000 k.k.
Prijs per m²
€ 7.962
Aangeboden sinds
28-01-2026
Status
Beschikbaar
Beschikbaar
Per direct

Oppervlakte en inhoud

Woonoppervlakte
184 m²
Perceeloppervlakte
875 m²

Bouw

Type woning
Huis
Soort woning
Tussenwoning (rijtjeshuis), Eengezinswoning
Soort bouw
Bestaande bouw
Bouwjaar
1961

Indeling

Aantal kamers
6
Aantal slaapkamers
4
Aantal badkamers
2

Buitenruimte

Dakterras
Niet aanwezig

Energie

Energielabel
D
Meld een probleem met deze woning