Contact met de aanbieder

Deze woning is gevonden buiten ons eigen netwerk. Via de knop hieronder ga je direct naar de website van de aanbieder.

Nieuw

Zoutestraat 88

Bekijk kaart
4561 XD Hulst (Carmel)
€ 174.000 k.k.
  • 65 m²
  • 3 kamers
  • 1923

Samenvatting

  • Deze woning wordt sinds 28 februari 2026 aangeboden door Makelaardij Van Gassen Vastgoed;
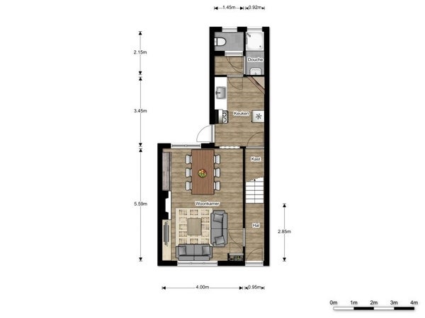
  • De tussenwoning heeft een woonoppervlakte van 65 m² en beschikt over 3 kamers, waarvan 2 slaapkamers;
  • De woning is gebouwd In 1923 en ligt in de buurt Carmel in Hulst;
  • De woning beschikt onder andere over de volgende voorzieningen: Douche, Dakraam, Toilet.

Beschrijving

BETAALBAAR WONEN? DIT IS JE KANS!

Wonen op een centrale plek in Hulst, op loopafstand van het gezellige vestingcentrum? Dan is Zoutestraat 88 absoluut het bekijken waard. Een betaalbare woning met mogelijkheden, ideaal voor starters of een stel dat graag dichtbij alle voorzieningen woont.

Met een woonkamer, keuken, badkamer en toilet op de begane grond en twee slaapkamers op de verdieping is dit een praktisch ingedeelde woning en eenvoudig overstappen naar gasloos wonen. De achtertuin met overkapping, ruime bergschuur en achterom maken het plaatje compleet. Dit is zo’n woning die perfect past bij starters, jonge gezinnen of kopers die betaalbaar willen wonen op een centrale locatie met alles binnen handbereik. Een mooie kans voor wie slim wil instappen in de Hulster woningmarkt.

Bijzonderheden
Voor extra informatie kun je terecht op onze website.

Hulst staat bekend om haar bourgondische sfeer, historische stadswallen en gezellige centrum met terrassen, speciaalzaken en supermarkten. Hier woon je op loopafstand van alles wat je dagelijks nodig hebt, van scholen en sportverenigingen tot horeca en winkels.
Daarnaast is Hulst gunstig gelegen ten opzichte van uitvalswegen richting Terneuzen, Antwerpen en Gent, wat het ook interessant maakt voor forenzen die in België of elders in Zeeuws-Vlaanderen werken.

De basis is fijn, de locatie sterk en de prijs aantrekkelijk, een mooie kans voor wie zijn wooncarrière wil starten! Plan vandaag nog een bezichtiging! Wij staan altijd voor je klaar, 7 dagen per week.

Overdracht

Vraagprijs
€ 174.000 k.k.
Prijs per m²
€ 2.677
Aangeboden sinds
28-02-2026
Status
Beschikbaar
Beschikbaar
In overleg
Onderhoudsstaat
Redelijk

Oppervlakte en inhoud

Woonoppervlakte
65 m²
Perceeloppervlakte
117 m²
Inhoud
220 m³

Bouw

Type woning
Huis
Soort woning
Tussenwoning (rijtjeshuis), Eengezinswoning
Soort bouw
Bestaande bouw
Bouwjaar
1923
Ligging
  • In het centrum
  • In een woonwijk
  • Nabij het openbaar vervoer
  • Nabij een school

Indeling

Aantal kamers
3
Aantal slaapkamers
2
Aantal badkamers
1
Aantal woonlagen
2
Voorzieningen
  • Douche
  • Dakraam
  • Toilet

Buitenruimte

Balkon
Niet aanwezig
Tuin
Aanwezig (gelegen op het zuidoosten)
Tuinbeschrijving
achtertuin
Achterom
Aanwezig
Dakterras
Niet aanwezig

Energie

Verwarming
Gashaard
Warm water
Elektrische boiler
Energielabel
G

Bergruimte

Schuur/Berging
Aanwezig

Parkeergelegenheid

Aanwezig
Ja
Soort parkeergelegenheid
Openbaar
Meld een probleem met deze woning