Niet beschikbaar

De woning die je wilt bekijken is niet langer beschikbaar. Je bekijkt nu het woningaanbod in dezelfde stad.

Contact met de aanbieder

Deze woning is gevonden buiten ons eigen netwerk. Via de knop hieronder ga je direct naar de website van de aanbieder.

Verkocht onder voorbehoud

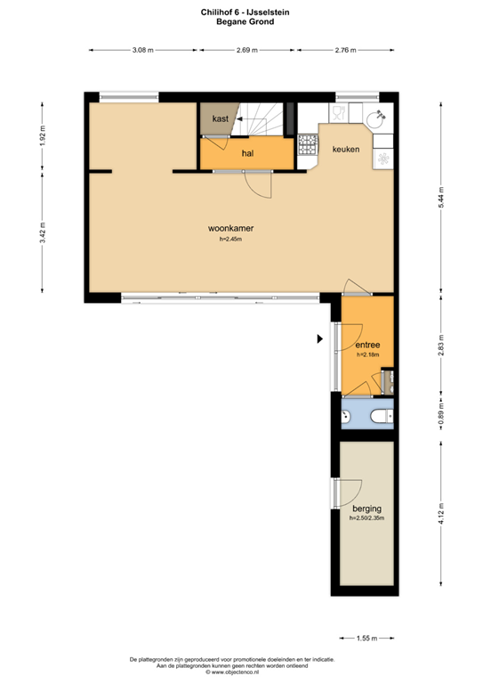
Chilihof 6

Bekijk kaart
3404 ZH IJsselstein (De Hoven en De Boomgaard)
€ 450.000 k.k.
  • 101 m²
  • 4 kamers
  • 1997

Samenvatting

  • Deze woning wordt sinds 6 weken aangeboden door Makelaardij Ijsselstein;
  • De tussenwoning heeft een woonoppervlakte van 101 m² en beschikt over 4 kamers, waarvan 3 slaapkamers;
  • De woning is gebouwd In 1997 en ligt in de buurt De Hoven en De Boomgaard in IJsselstein;
  • De woning beschikt onder andere over de volgende voorzieningen: Bad, Kabel TV, Glasvezelaansluiting, Internetaansluiting, Mechanische ventilatie, Douche, Schuifdeuren, Toilet.

Beschrijving

Een licht, flexibel huis met een verrassende tuin en volop mogelijkheden — inclusief de optie om in de toekomst een extra verdieping te realiseren.

RUIMTE, LICHT EN ALLE KANSEN OM JE EIGEN DROOMPLEK TE CREËREN
Ben je starter of een jong gezin dat net dat beetje extra ruimte zoekt? Dan is deze tussenwoning precies zo’n plek waar je meteen zin krijgt om te wonen, te groeien en je eigen ideeën tot leven te brengen. Een licht, flexibel huis met een verrassende tuin en volop mogelijkheden — inclusief de optie om in de toekomst een extra verdieping te realiseren.

DE HIGHLIGHTS
• Ruime, lichte woonkamer met schuifpui naar de zonnige tuin
• Nette, functionele badkamer en keuken waar je zo mee verder kunt.
• Extra ramen aan de achterzijde — uniek in deze wijk en goed voor nóg meer daglicht
• Ruime tuin op het oosten met dubbele deuren voor parkeren op eigen terrein (motor of auto)
• Royale stenen berging én voldoende tuinruimte om te ontspannen in de zon
• Uitstekend geschikt om een extra verdieping te plaatsen — toekomstproof wonen

WELKOM IN EEN HUIS DAT JE OMARMT MET LICHT
Zodra je binnenstapt, voel je het meteen: dit is een thuis met een hart. De woonkamer is breed, luchtig en vol daglicht, mede dankzij die extra ramen die je in vergelijkbare woningen níet vindt. De sfeer is open, vriendelijk en uitnodigend — een plek waar je na je werkdag met een diepe zucht neerploft op de bank, waar kinderen spelen op het vloerkleed en waar vrienden graag blijven hangen omdat het hier zo’n relaxte, warme vibe heeft.
De schuifpui naar de tuin zorgt voor een heerlijke overgang van binnen naar buiten. Laat de zomer binnen waaien, hoor het zachte ruisen van bladeren, voel de ochtendzon al vroeg het huis in kruipen. Zelfs op grijze dagen blijft het hier licht en prettig wonen — echt een bonus voor je humeur.
De keuken en badkamer zijn netjes, functioneel en goed onderhouden. Precies goed als je zonder gedoe wilt verhuizen, maar ook ideaal als je telt hoe fijn het is om met de tijd je eigen stijl erin te laten groeien.

SLAAPKAMERS EN RUIMTE OM TE DROMEN
Op de eerste verdieping vind je drie slaapkamers, elk met genoeg ruimte voor bedden, bureaus, kasten en speelgoed — of natuurlijk een thuiswerkplek, gamingroom of logeerkamer. De indeling is logisch en prettig, je herkent het meteen: dit huis is ontworpen om het leven nét wat makkelijker te maken.
Met 103 m² woonoppervlak heb je comfort in overvloed, maar het mooiste is misschien wel de mogelijkheid om een extra verdieping te bouwen. Wil je later meer slaapkamers? Een master met walk-in closet? Een groot thuiskantoor? Dit huis geeft je die vrijheid — wanneer jij eraan toe bent.

BUITENLEVEN DAT VERRAST
En dan die tuin op het oosten: groot genoeg voor een loungeset, barbecue, trampoline of moestuin — wat maar bij jouw leven past. Dankzij de dubbele openslaande tuindeuren kun je je motor of auto gewoon op eigen terrein parkeren.
Verder is er een royale stenen berging die je kunt gebruiken voor fietsen, hobby’s, opslag of zelfs een kleine werkplek. En nóg blijft er voldoende plek over om van het zonnetje te genieten — met een ontbijtje in de ochtendzon of een koel drankje in de namiddag.

EEN FIJNE, GROENE EN VERBONDEN LOCATIE
De woning ligt in een gezellige wijk waar je merkt dat mensen hier graag wonen. Het groen rondom het huis geeft rust en sfeer, en binnen een paar minuten wandel je naar medische voorzieningen, winkels en het openbaar vervoer. Het opstappunt richting Utrecht of Nieuwegein ligt op loopafstand, en de uitvalswegen liggen letterlijk om de hoek — lekker praktisch.
Het is een buurt waar kinderen buiten spelen, buren elkaar groeten en waar je het gevoel hebt dat je echt onderdeel bent van een vriendelijke gemeenschap. Precies dat warme dorpsgevoel, maar met alles binnen handbereik.
Je hoort de vogels ’s ochtends, ruikt het frisse groen om het huis, voelt de ruimte en ziet hoe licht door elke kamer danst — dit is zo’n plek waar je zintuigen zachtjes “ja” zeggen.

DIT IS JOUW KANS OM EEN FIJN, LICHT EN FLEXIBEL THUIS TE MAKEN
Deze tussenwoning is geen standaard huis — het is een kans. Een kans op ruimte. Op licht. Op gemak. Op toekomst. Op een plek waar je nu al goed zit, maar waar nóg veel meer in zit.
Wacht niet te lang, want huizen met dit soort mogelijkheden blijven nooit lang beschikbaar.
Bel of mail Makelaardij IJsselstein en plan vandaag nog je bezichtiging.
Laat je verrassen, laat je inspireren — en laat je gevoel de doorslag geven.

De informatie op deze website en in de brochure is uitsluitend bedoeld als algemene informatie.
Er kunnen geen rechten aan ontleend worden. Makelaardij IJsselstein heeft de grootste zorgvuldigheid in acht genomen bij het samenstellen en onderhouden hier van. Toch kan zij niet garanderen dat de hier verstrekte informatie volledig, juist en actueel is.
Makelaardij IJsselstein wijst iedere aansprakelijkheid ten aanzien van de hier geboden informatie dan ook uitdrukkelijk van de hand.

Overdracht

Vraagprijs
€ 450.000 k.k.
Prijs per m²
€ 4.455
Aangeboden sinds
01-01-2026
Status
Verkocht onder voorbehoud
Beschikbaar
In overleg
Onderhoudsstaat
Goed

Oppervlakte en inhoud

Woonoppervlakte
101 m²
Perceeloppervlakte
127 m²
Inhoud
396 m³

Bouw

Type woning
Huis
Soort woning
Tussenwoning (rijtjeshuis), Eengezinswoning
Soort bouw
Bestaande bouw
Bouwjaar
1997

Indeling

Aantal kamers
4
Aantal slaapkamers
3
Aantal badkamers
1
Aantal woonlagen
2
Voorzieningen
  • Bad
  • Kabel TV
  • Glasvezelaansluiting
  • Internetaansluiting
  • Mechanische ventilatie
  • Douche
  • Schuifdeuren
  • Toilet

Buitenruimte

Balkon
Niet aanwezig
Tuin
Aanwezig (58 m², gelegen op het oosten)
Tuinbeschrijving
besloten tuin
Achterom
Niet aanwezig
Dakterras
Niet aanwezig

Energie

Isolatie
Volledig geïsoleerd
Verwarming
CV-ketel
Warm water
CV-ketel
Cv-ketel
ITHO DAALDEROP AQUAMAX CW5 (Gas, uit 2014, Eigendom)
Energielabel
A

Bergruimte

Schuur/Berging
Aanwezig

Parkeergelegenheid

Aanwezig
Ja
Soort parkeergelegenheid
Openbaar
Meld een probleem met deze woning