Contact met de makelaar

Deze woning is gevonden buiten ons eigen netwerk. Met de knop hieronder kom je direct bij de aanbieder terecht.

Doorzwin 4171

Bekijk kaart
1788 NR Julianadorp (Doorzwin)
€ 250.000 k.k.
  • 104 m²
  • 5 kamers
  • 1983

Samenvatting

  • Deze woning wordt sinds 21 oktober 2025 aangeboden door Noordstad Makelaardij;
  • De tussenwoning heeft een woonoppervlakte van 104 m² en beschikt over 5 kamers, waarvan 4 slaapkamers;
  • De woning is gebouwd In 1983 en ligt in de buurt Doorzwin in Julianadorp;
  • De woning beschikt onder andere over de volgende voorzieningen: Kabel TV, Douche, Bergruimte, Toilet.

Beschrijving

Meer woninginformatie bekijken?

Log in of registreer gratis.

Overdracht

Vraagprijs
€ 250.000 k.k.
Aangeboden sinds
21-10-2025
Status
Beschikbaar
Beschikbaar
In overleg
Onderhoudsstaat
Goed

Oppervlakte en inhoud

Woonoppervlakte
104 m²
Perceeloppervlakte
156 m²
Inhoud
348 m³

Bouw

Type woning
Huis
Soort woning
Tussenwoning (rijtjeshuis), Eengezinswoning
Soort bouw
Bestaande bouw
Bouwjaar
1983
Ligging
  • In een woonwijk
  • Vrij uitzicht

Indeling

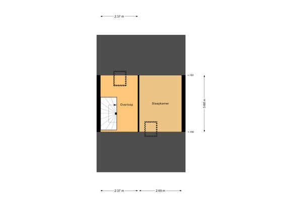
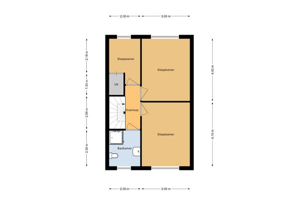
Aantal kamers
5
Aantal slaapkamers
4
Aantal badkamers
1
Aantal woonlagen
3
Voorzieningen
  • Kabel TV
  • Douche
  • Bergruimte
  • Toilet

Buitenruimte

Balkon
Niet aanwezig
Tuin
Aanwezig (60 m², gelegen op het zuidoosten)
Tuinbeschrijving
achtertuin, voortuin
Dakterras
Niet aanwezig

Energie

Isolatie
Dubbele beglazing
Verwarming
CV-ketel
Warm water
CV-ketel
Cv-ketel
hr ketel (Gas, Eigendom)
Energielabel
B

Bergruimte

Schuur/Berging
Aanwezig
Omschrijving
Vrijstaand steen

Parkeergelegenheid

Aanwezig
Ja
Soort parkeergelegenheid
Openbaar

Garage

Aanwezig
Nee
Meld een probleem met deze woning
Contact met de makelaar Bel