Contact met de makelaar

Deze woning is gevonden buiten ons eigen netwerk. Met de knop hieronder kom je direct bij de aanbieder terecht.

Nieuw

Winde 51

Bekijk kaart
8265 EG Kampen (Cellesbroek)
€ 515.000 k.k.
  • 160 m²
  • 6 kamers
  • 1974

Samenvatting

  • Deze woning wordt sinds 31 januari 2026 aangeboden door Van Dijk Makelaardij;
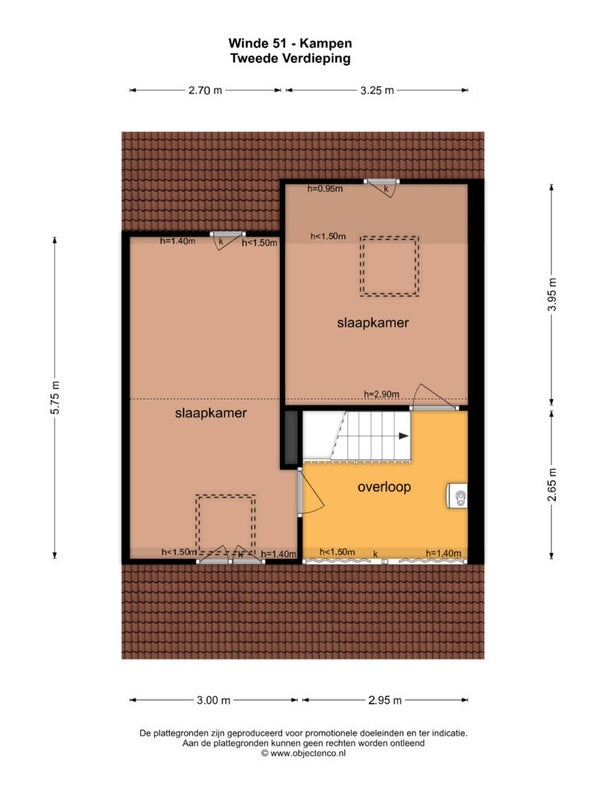
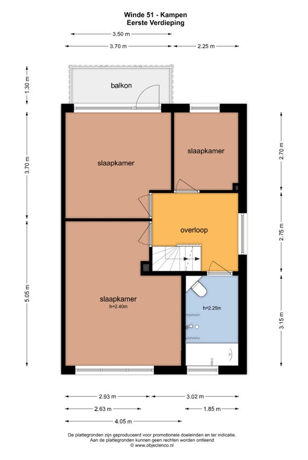
  • De tussenwoning heeft een woonoppervlakte van 160 m² en beschikt over 6 kamers, waarvan 5 slaapkamers;
  • De woning is gebouwd In 1974 en ligt in de buurt Cellesbroek in Kampen.

Beschrijving

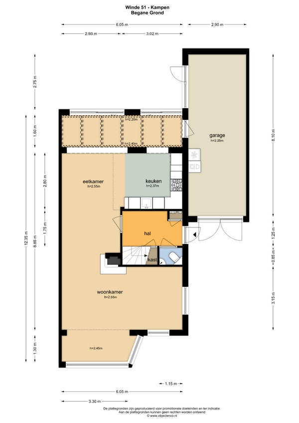
Op een rustige locatie ligt deze royaal uitgebouwde 2/1 kapwoning met vrij uitzicht aan de achterzijde. De woning, gebouwd in 1974, is ideaal gelegen nabij scholen, een winkelcentrum, en sportfaciliteiten. Binnen vind je een lichte woonkamer van ongeveer 53 m² met een erker, een marmeren vloer, en een schouw met houtkachel, naast een halfopen keuken met inbouwapparatuur. De serre van circa 11 m² biedt toegang tot de zonnige achtertuin van 160 m², uitgerust met sierbestrating en een houten berging. Er zijn vijf slaapkamers en een nette badkamer met ligbad en douche. Tot de voorzieningen behoren zonnepanelen, dubbel glas, en zowel vloer- als dakisolatie. Met een perceeloppervlakte van 332 m² en een garage van 24 m², biedt deze woning ruime parkeermogelijkheden op eigen terrein.

Overdracht

Vraagprijs
€ 515.000 k.k.
Aangeboden sinds
31-01-2026
Status
Beschikbaar
Beschikbaar
Per direct

Oppervlakte en inhoud

Woonoppervlakte
160 m²
Perceeloppervlakte
332 m²

Bouw

Type woning
Huis
Soort woning
Tussenwoning (rijtjeshuis), Eengezinswoning
Soort bouw
Bestaande bouw
Bouwjaar
1974

Indeling

Aantal kamers
6
Aantal slaapkamers
5
Aantal badkamers
1

Buitenruimte

Dakterras
Niet aanwezig
Meld een probleem met deze woning