Contact met de makelaar

Deze woning is gevonden buiten ons eigen netwerk. Met de knop hieronder kom je direct bij de aanbieder terecht.

Weterschoten 30 63

Bekijk kaart
7381 AC Klarenbeek (De Hooilanden)
€ 179.000 k.k.
  • 54 m²
  • 3 kamers
  • 2020

Samenvatting

  • Deze woning wordt sinds 16 oktober 2025 aangeboden door Pandinzicht Makelaardij & Vastgoed;
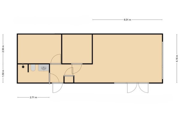
  • De vrijstaande woning heeft een woonoppervlakte van 54 m² en beschikt over 3 kamers, waarvan 2 slaapkamers;
  • De woning is gebouwd In 2020 en ligt in de buurt De Hooilanden in Klarenbeek.

Beschrijving

Overdracht

Vraagprijs
€ 179.000 k.k.
Aangeboden sinds
16-10-2025
Status
Beschikbaar
Beschikbaar
In overleg
Onderhoudsstaat
Goed

Oppervlakte en inhoud

Woonoppervlakte
54 m²
Perceeloppervlakte
458 m²
Inhoud
150 m³

Bouw

Type woning
Huis
Soort woning
Vrijstaande woning, Bungalow
Soort bouw
Bestaande bouw
Bouwjaar
2020
Ligging
  • Landelijk gebied
  • Open gebied
  • Buiten bebouwde kom
  • Vrij uitzicht

Indeling

Aantal kamers
3
Aantal slaapkamers
2
Aantal badkamers
1
Aantal woonlagen
1
Voorzieningen
  • Douche
  • Toilet

Buitenruimte

Balkon
Niet aanwezig
Tuin
Aanwezig (400 m²)
Tuinbeschrijving
tuin rondom
Dakterras
Niet aanwezig

Energie

Isolatie
Dubbele beglazing
Verwarming
CV-ketel
Warm water
CV-ketel

Bergruimte

Schuur/Berging
Aanwezig
Omschrijving
Vrijstaand kunststof

Parkeergelegenheid

Aanwezig
Ja
Soort parkeergelegenheid
Op eigen terrein

Garage

Aanwezig
Nee
Meld een probleem met deze woning
Contact met de makelaar Bel