Contact met de makelaar

Deze woning is gevonden buiten ons eigen netwerk. Met de knop hieronder kom je direct bij de aanbieder terecht.

Nieuw

Cloosterstraat 47

Bekijk kaart
4587 CB Kloosterzande (Molenstraat)
€ 295.000 k.k.
  • 101 m²
  • 4 kamers
  • 1920

Samenvatting

  • Deze woning wordt sinds 25 december 2025 aangeboden door Makelaardij Van Gassen Vastgoed;
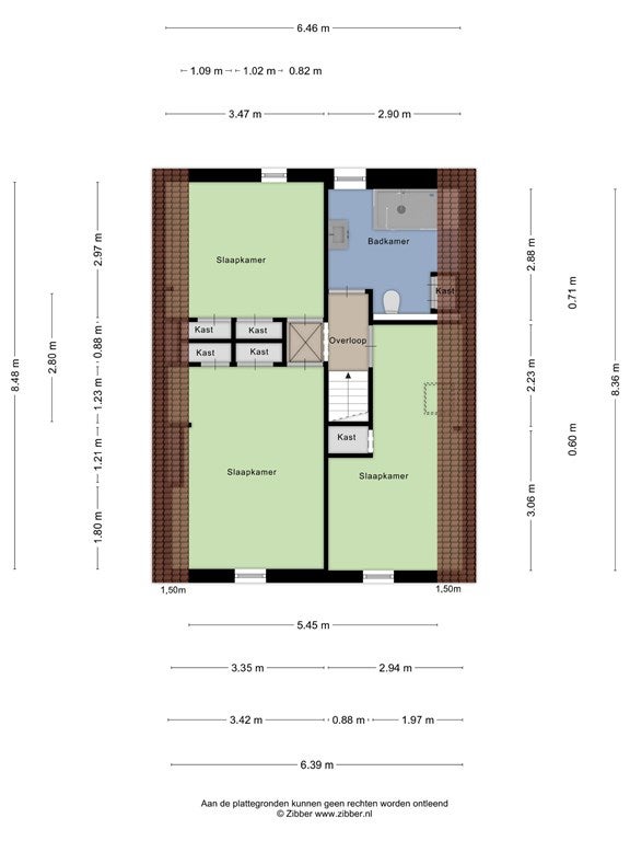
  • De halfvrijstaande woning heeft een woonoppervlakte van 101 m² en beschikt over 4 kamers, waarvan 3 slaapkamers;
  • De woning is gebouwd In 1920 en ligt in de buurt Molenstraat in Kloosterzande;
  • De woning beschikt onder andere over de volgende voorzieningen: Airconditioning, Rookkanaal, Jacuzzi, Sauna, Douche, Bergruimte, Toilet.

Beschrijving

Overdracht

Vraagprijs
€ 295.000 k.k.
Aangeboden sinds
25-12-2025
Status
Beschikbaar
Beschikbaar
In overleg
Onderhoudsstaat
Goed

Oppervlakte en inhoud

Woonoppervlakte
101 m²
Perceeloppervlakte
331 m²
Inhoud
358 m³

Bouw

Type woning
Huis
Soort woning
Halfvrijstaande woning, Eengezinswoning
Soort bouw
Bestaande bouw
Bouwjaar
1920
Ligging
  • In het centrum
  • Nabij het openbaar vervoer
  • Nabij een school

Indeling

Aantal kamers
4
Aantal slaapkamers
3
Aantal badkamers
1
Aantal woonlagen
2
Voorzieningen
  • Airconditioning
  • Rookkanaal
  • Jacuzzi
  • Sauna
  • Douche
  • Bergruimte
  • Toilet

Buitenruimte

Balkon
Niet aanwezig
Tuin
Aanwezig (gelegen op het noorden)
Tuinbeschrijving
achtertuin
Dakterras
Niet aanwezig

Energie

Verwarming
Electrische verwarming
Warm water
Elektrische boiler

Bergruimte

Schuur/Berging
Aanwezig

Parkeergelegenheid

Aanwezig
Ja
Soort parkeergelegenheid
Openbaar
Meld een probleem met deze woning