Contact met de makelaar

Deze woning is gevonden buiten ons eigen netwerk. Met de knop hieronder kom je direct bij de aanbieder terecht.

Nieuw

Anemoonstraat

Bekijk kaart
1541 AW Koog aan de Zaan (Oud Koog)
€ 395.000 k.k.
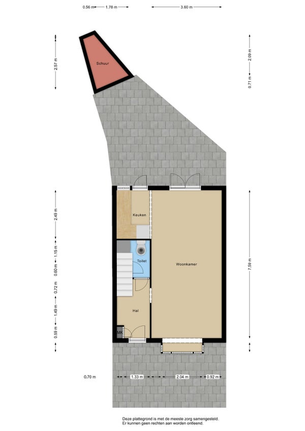
  • 84 m²
  • 5 kamers
  • 1934

Samenvatting

  • Deze woning wordt sinds 8 november 2025 aangeboden door Tulpar Makelaardij;
  • De tussenwoning heeft een woonoppervlakte van 84 m² en beschikt over 5 kamers, waarvan 3 slaapkamers;
  • De woning is gebouwd In 1934 en ligt in de buurt Oud Koog in Koog aan de Zaan.

Beschrijving

Meer woninginformatie bekijken?

Log in of registreer gratis.

Overdracht

Vraagprijs
€ 395.000 k.k.
Aangeboden sinds
08-11-2025
Status
Beschikbaar
Beschikbaar
In overleg

Oppervlakte en inhoud

Woonoppervlakte
84 m²
Perceeloppervlakte
96 m²

Bouw

Type woning
Huis
Soort woning
Tussenwoning (rijtjeshuis), Eengezinswoning
Soort bouw
Bestaande bouw
Bouwjaar
1934

Indeling

Aantal kamers
5
Aantal slaapkamers
3
Aantal badkamers
1

Buitenruimte

Dakterras
Niet aanwezig
Meld een probleem met deze woning