Contact met de makelaar

Deze woning is gevonden buiten ons eigen netwerk. Met de knop hieronder kom je direct bij de aanbieder terecht.

Verkocht onder voorbehoud

Dr. van Rhijnstraat 12

Bekijk kaart
2351 AV Leiderdorp (Kerkwijk)
€ 450.000 k.k.
  • 77 m²
  • 3 kamers
  • 1915

Samenvatting

  • Deze woning wordt sinds 6 weken aangeboden door Obèr Makelaardij;
  • De tussenwoning heeft een woonoppervlakte van 77 m² en beschikt over 3 kamers, waarvan 2 slaapkamers;
  • De woning is gebouwd In 1915 en ligt in de buurt Kerkwijk in Leiderdorp;
  • De woning beschikt onder andere over de volgende voorzieningen: Kabel TV, Internetaansluiting, Douche, Bergruimte, Toilet.

Beschrijving

In één van de mooiste straatjes van de oude Kerkwijk staat dit charmante 3 kamer tussenhuisje te koop. De Dr. Van Rhijnstraat ademt historie: een rustige, gezellige straat met karakteristieke gevels en een warme buurt sfeer. Je woont hier op een ideale plek, vlak bij de winkels van Leiderdorp én op korte afstand van het bruisende centrum van Leiden. Alles wat je nodig hebt ligt binnen handbereik, terwijl je toch volop geniet van rust en knusheid.
Wij noemen dit niet zomaar "een huisje om blij van te worden". Nostalgie, sfeer, bijna 80m2 woonoppervlak, modern en luxe afgewerkt en een goede achtertuin met achterom. Niet voor niets het populairste straatje volgens velen.

Van deze woning is ook een eigen website beschikbaar. Url van de website is straatnaam, dan het huisnummer en dan .nl. Behalve de foto’s op groot formaat zijn er ook allerlei handige tools. De relevante documentatie kan je hier vinden. Je kan ook zelf je afspraak maken via onze website of bv ******. Wel zo makkelijk.

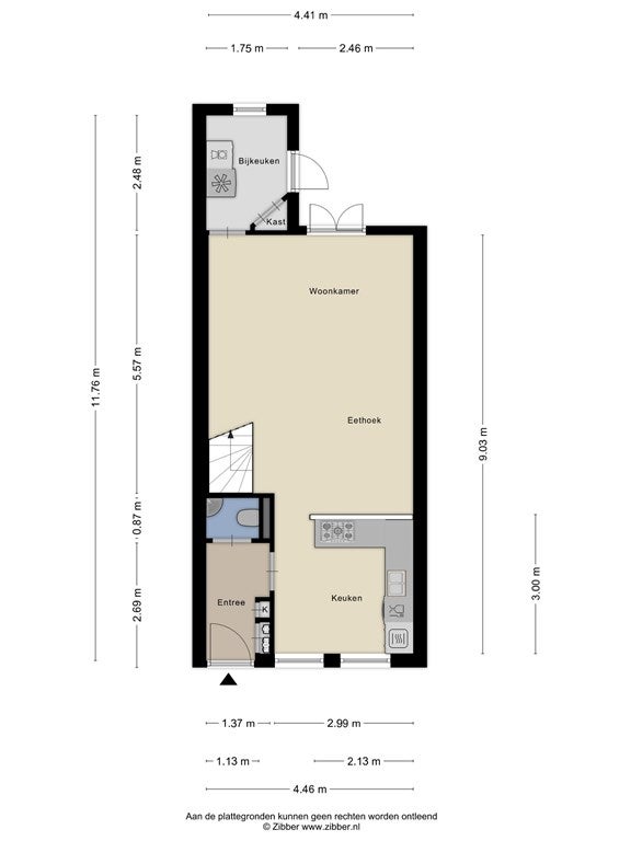
Zodra je in het straatje loopt merk je het al. Dit is bijzonder en je waant je terug in de tijd. Door naar het instap klare huisje. Ook dat gevoel heb je als je voor het huisje staat en binnenstapt. Dit is een huis met sfeer en nostalgie. Wel is alles in een modern jasje. Zo hebben we in de hal de vernieuwde meterkast en het moderne toilet met een fontein. Daarna kom je in de riante woonkamer, waar de slimme indeling gelijk opvalt. De moderne keuken is naar voren geplaatst, waardoor de leefruimte (met vloerverwarming) verrassend ruim en licht is geworden. Door de fijne openheid en de mooie hoogte voelt de ruimte groter dan je zou verwachten in dit type woning.

De open hoekkeuken aan de voorzijde is compleet ingericht met onder meer een koelkast met vriesvak, een vaatwasser, de 5-pits gaskookplaat, de afzuigkap en ovenunit. De bar richting de woonkamer maakt dit een gezellige plek waar je makkelijk samenkomt: ontbijten, borrelen of even bijpraten tijdens het koken – het kan hier allemaal. Achter in de woning vind je de ruime zitkamer met openslaande deuren naar de tuin en toegang tot de bijkeuken. De bijkeuken biedt extra bergruimte, plek voor de wasmachine en natuurlijk toegang tot buiten. De woonkamer is gewoon groot voor het type huis. Bijna 25m2 en dat is zonder de bijkeuken en de keuken. Ga gewoon eens zitten en geniet van de ruimte. Meerdere opstellingen zijn gewoon mogelijk. Daarna gaan we door naar de achtertuin via de openslaande deuren of via de bijkeuken.

De achtertuin ligt heerlijk op het zuidoosten en biedt altijd een plekje in de zon. Met ca. 30 m² (exclusief schuur) heb je hier een fijne combinatie van groen en praktisch gebruik. Achterin staat een schuur met elektra; ideaal voor fietsen of opslag. Dankzij de achterom kom je makkelijk met je fiets uit of in de tuin.

Op de eerste etage vind je twee slaapkamers en een moderne en luxe badkamer. Beide slaapkamers hebben handige vaste kasten. Ideaal voor de spulletjes. De achterkamer is lekker ruim, strak afgewerkt en biedt volop bergruimte onder de schuine kap. De slaapkamer is groot genoeg voor een tweepersoonsbed.
De kamer aan de voorzijde is ook perfect afgewerkt. Ideaal als kinder-, werk- of logeerkamer. Ook hier dus een vaste kast over de gehele breedte

De badkamer is helemaal van nu: luxe en modern uitgevoerd met een tweede toilet, brede wastafel en een prachtige inloopdouche.

Dit charmante tussenhuisje in de geliefde Dr. Van Rhijnstraat biedt alles wat je zoekt: sfeer, comfort, een slimme indeling en een zonnige tuin met achterom. Dankzij de historische ligging in de oude Kerkwijk woon je hier rustig, maar toch vlak bij winkels én het centrum van Leiden. Met de moderne keuken, fijne leefruimte, twee nette slaapkamers en luxe badkamer is dit een heerlijk instap klaar huis op een toplocatie. Een plek waar je je direct thuis voelt.

  • Oplevering ca 24 maart 2026
  • Energielabel C
  • Van deze woning is ook een eigen website beschikbaar. Url van de website is straatnaam, dan het huisnummer en dan .nl. Behalve de foto’s op groot formaat zijn er ook allerlei handige tools. De relevante documentatie kan je hier vinden. Je kan ook zelf je afspraak maken via onze website of bv ******. Wel zo makkelijk.

Overdracht

Vraagprijs
€ 450.000 k.k.
Aangeboden sinds
13-11-2025
Status
Verkocht onder voorbehoud
Beschikbaar
In overleg
Onderhoudsstaat
Zeer goed

Oppervlakte en inhoud

Woonoppervlakte
77 m²
Perceeloppervlakte
85 m²
Inhoud
272 m³

Bouw

Type woning
Huis
Soort woning
Tussenwoning (rijtjeshuis), Eengezinswoning
Soort bouw
Bestaande bouw
Bouwjaar
1915
Ligging
  • Aan een rustige weg
  • In een woonwijk
  • Nabij het openbaar vervoer
  • Nabij een school
  • Nabij een winkelcentrum

Indeling

Aantal kamers
3
Aantal slaapkamers
2
Aantal badkamers
1
Aantal woonlagen
2
Voorzieningen
  • Kabel TV
  • Internetaansluiting
  • Douche
  • Bergruimte
  • Toilet

Buitenruimte

Balkon
Niet aanwezig
Tuin
Aanwezig (32 m², gelegen op het zuidoosten)
Tuinbeschrijving
achtertuin
Dakterras
Niet aanwezig

Energie

Isolatie
Vloerisolatie
Verwarming
CV-ketel, Gedeeltelijke vloerverwarming
Warm water
CV-ketel
Cv-ketel
Remeha Calenta (Gas, uit 2014, Eigendom)
Energielabel
C

Bergruimte

Schuur/Berging
Aanwezig

Parkeergelegenheid

Aanwezig
Ja
Soort parkeergelegenheid
Openbaar
Meld een probleem met deze woning