Contact met de makelaar

Deze woning is gevonden buiten ons eigen netwerk. Met de knop hieronder kom je direct bij de aanbieder terecht.

Nieuw

Griede 21

Bekijk kaart
2451 ZC Leimuiden (Verspreide huizen West)
€ 500.000 k.k.
  • 127 m²
  • 5 kamers
  • 1978

Samenvatting

  • Deze woning wordt sinds 6 december 2025 aangeboden door Goedhart Makelaars en Taxateurs;
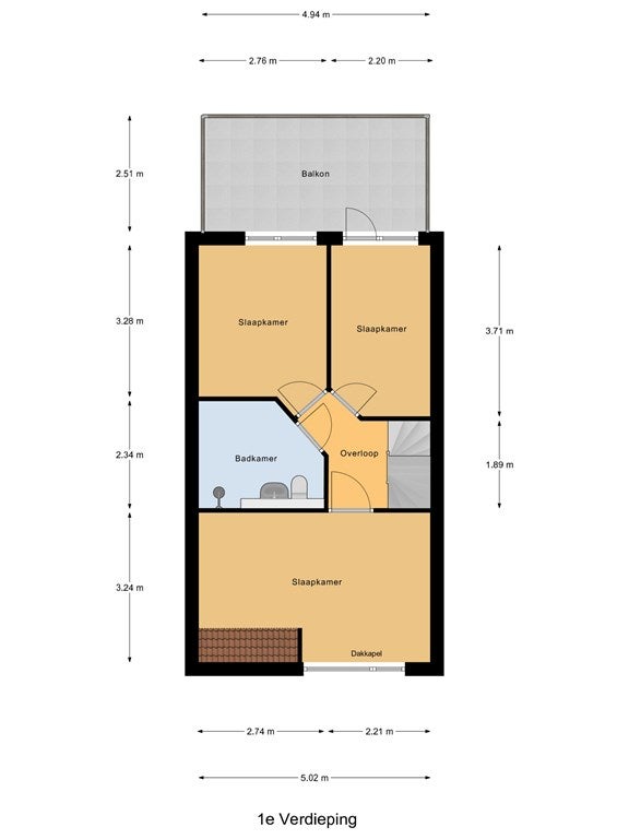
  • De tussenwoning heeft een woonoppervlakte van 127 m² en beschikt over 5 kamers, waarvan 4 slaapkamers;
  • De woning is gebouwd In 1978 en ligt in de buurt Verspreide huizen West in Leimuiden;
  • De woning beschikt onder andere over de volgende voorzieningen: Kabel TV, Rookkanaal, Internetaansluiting, Bergruimte, Toilet.

Beschrijving

Overdracht

Vraagprijs
€ 500.000 k.k.
Aangeboden sinds
06-12-2025
Status
Beschikbaar
Beschikbaar
In overleg
Onderhoudsstaat
Goed

Oppervlakte en inhoud

Woonoppervlakte
127 m²
Perceeloppervlakte
143 m²
Inhoud
460 m³

Bouw

Type woning
Huis
Soort woning
Tussenwoning (rijtjeshuis), Eengezinswoning
Soort bouw
Bestaande bouw
Bouwjaar
1978
Ligging
  • Aan een rustige weg
  • In een woonwijk
  • Nabij het openbaar vervoer

Indeling

Aantal kamers
5
Aantal slaapkamers
4
Aantal badkamers
1
Aantal woonlagen
3
Voorzieningen
  • Kabel TV
  • Rookkanaal
  • Internetaansluiting
  • Bergruimte
  • Toilet

Buitenruimte

Balkon
Aanwezig
Tuin
Aanwezig (53 m², gelegen op het zuidwesten)
Tuinbeschrijving
achtertuin
Dakterras
Niet aanwezig

Energie

Isolatie
Spouwmuurisolatie, Dakisolatie, Muurisolatie
Verwarming
CV-ketel, Gedeeltelijke vloerverwarming
Warm water
CV-ketel
Energielabel
B

Bergruimte

Schuur/Berging
Aanwezig

Parkeergelegenheid

Aanwezig
Ja
Soort parkeergelegenheid
Openbaar
Meld een probleem met deze woning