Contact met de makelaar

Deze woning is gevonden buiten ons eigen netwerk. Met de knop hieronder kom je direct bij de aanbieder terecht.

Verkocht onder voorbehoud

Griend 35 80

Bekijk kaart
8225 TK Lelystad (Griend)
€ 350.000 k.k.
  • 110 m²
  • 5 kamers
  • 1982

Samenvatting

  • Deze woning wordt sinds 6 weken aangeboden door ANTON Makelaardij;
  • De hoekwoning heeft een woonoppervlakte van 110 m² en beschikt over 5 kamers, waarvan 3 slaapkamers;
  • De woning is gebouwd In 1982 en ligt in de buurt Griend in Lelystad;
  • De woning beschikt onder andere over de volgende voorzieningen: Kabel TV, Glasvezelaansluiting, Rookkanaal, Buitenzonwering.

Beschrijving

ANTON Makelaardij biedt aan: Griend 35-80 te Lelystad!

Alle informatie over deze woning kunt u vinden op: ******

Op zoek naar een zeer goed onderhouden, knusse en UITGEBOUWDE eengezinswoning in een kindvriendelijke woonomgeving welke u zo kunt betrekken? Zoek niet verder, wellicht is deze prachtige HOEKWONING met geweldige tuin binnenkort van u!

Deze fraai afgewerkte hoekwoning beschikt over een extra uitbouw te gebruiken als kantoor/extra werkkamer, een zeer ruime leefkeuken, welke van alle gemakken is voorzien, 3 ruime slaapkamers en over een prachtige luxe badkamer uit 2020. De woning is op de eerste verdieping volledig voorzien van kunststof kozijnen en de benedenverdieping over hardhouten kozijnen. De riante en fraai aangelegde achtertuin is een lust voor het oog en is op het oosten gelegen. Met twee bergingen en meerdere zitjes is het hier goed vertoeven op een heerlijke zonnige dag. Parkeren kunt u uiteraard op eigen terrein.

De woning is gelegen op loop / fietsafstand van buurtwinkelcentrum, gezondheidscentrum en diverse (basis)scholen. Vaarwater het Gelderse Diep alsook het Gelderse Hout bevinden zich in de nabijheid van de woning. Binnen enkele (auto)minuten bereikt u de in- en uitvalswegen (A6 richting Amsterdam / noorden en N302 richting Harderwijk) van Lelystad. Dit alles maken het geheel tot een uiterst comfortabele en prettige woonomgeving!

Op zoek naar een fraaie uitgebouwde hoekwoning welke u zo kunt betrekken? We nodigen u graag uit om Griend 35-80 te komen bekijken! Voor een bezichtiging kunt u een aanvraag indienen via ****** of via de eigen woningwebsite ******.

Deze woning wordt u aangeboden middels een bieden vanaf prijs. Biedingen vanaf € 350.000,- k.k. zullen door verkoper in behandeling worden genomen.

Indeling:

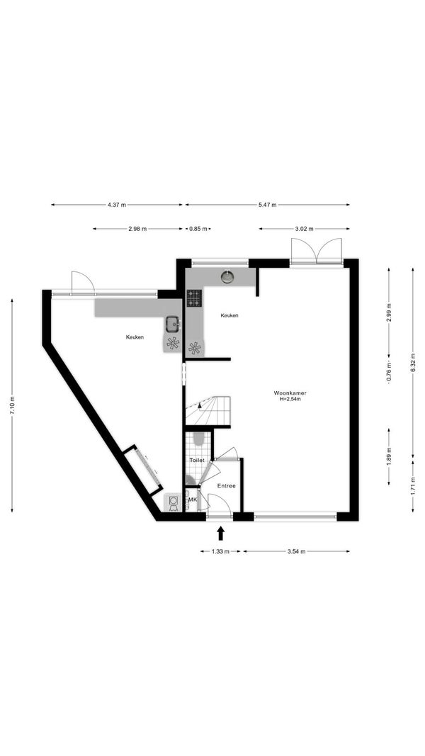
Begane grond (volledig voorzien van prachtige laminaatvloer):
Entree, garderobe, meterkast (glasvezel aanwezig), toiletruimte met hangtoilet en fonteintje, doorgang naar de woonkamer en de royale leefkeuken met dubbele deuren naar de op het oosten gelegen tuin. De tuingerichte leefkeuken is voorzien van een combi oven, 5 pits gaskookplaat, afzuigkap, vaatwasser en een koel/vriescombinatie. Aan de zijkant van de woning bevindt zich de uitbouw met daarin de wasmachine en droger aansluiting, 2e keukenblok en deur naar de achtertuin. In de tuin bevinden zich twee bergingen, een achterom en parkeren kan op eigen terrein aan de voorzijde van de woning.

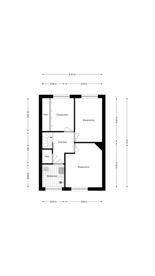
1e Verdieping (volledig voorzien van nette laminaatvloer en kunststof kozijnen):
De verdieping telt 3 ruime slaapkamers, een luxe badkamer (2020), welke voorzien is van een inloopdouche, hangcloset, wastafelmeubel, designradiator en twee kiepraampjes voor de natuurlijke ventilatie. Tevens is er een nog vaste bergkast met de cv-installatie (huurketel, Vaillant EcoTec Classic)

Bijzonderheden:

  • Zeer fraaie, uitgebouwde hoekwoning met 3 slaapkamers;
  • Zeer ruime leefkeuken welke van alle gemakken is voorzien;
  • Royale uitbouw voor meerdere doeleinde geschikt;
  • Voorzien van kunststof kozijnen op de eerste verdieping;
  • Luxe badkamer en toiletruimte uit 2020;
  • Zéér ruime en prachtige hoektuin;
  • Gelegen nabij een buurtwinkelcentrum, scholen en openbaar vervoer;
  • Energielabel B;
  • Oplevering in overleg.

Deze informatie is door ons met de nodige zorgvuldigheid samengesteld. Onzerzijds wordt echter geen enkele aansprakelijkheid aanvaard voor enige onvolledigheid, onjuistheid of anderszins, dan wel de gevolgen daarvan. Alle opgegeven maten en oppervlakten zijn indicatief.

Overdracht

Vraagprijs
€ 350.000 k.k.
Aangeboden sinds
22-11-2025
Status
Verkocht onder voorbehoud
Beschikbaar
In overleg
Onderhoudsstaat
Goed

Oppervlakte en inhoud

Woonoppervlakte
110 m²
Inhoud
376 m³

Bouw

Type woning
Huis
Soort woning
Hoekwoning, Eengezinswoning
Soort bouw
Bestaande bouw
Bouwjaar
1982
Ligging
  • Aan een rustige weg
  • In een woonwijk
  • Beschut gelegen

Indeling

Aantal kamers
5
Aantal slaapkamers
3
Aantal badkamers
1
Aantal woonlagen
2
Voorzieningen
  • Kabel TV
  • Glasvezelaansluiting
  • Rookkanaal
  • Buitenzonwering

Buitenruimte

Balkon
Niet aanwezig
Tuin
Aanwezig (gelegen op het oosten)
Tuinbeschrijving
achtertuin
Dakterras
Niet aanwezig

Energie

Isolatie
Volledig geïsoleerd
Verwarming
CV-ketel, Houtkachel
Warm water
CV-ketel
Cv-ketel
Vaillant EcoTec classic (Gas, uit 2014, Gehuurd)
Energielabel
B

Bergruimte

Schuur/Berging
Aanwezig
Omschrijving
Vrijstaand steen

Parkeergelegenheid

Aanwezig
Ja

Garage

Aanwezig
Nee
Meld een probleem met deze woning