Contact met de makelaar

Deze woning is gevonden buiten ons eigen netwerk. Met de knop hieronder kom je direct bij de aanbieder terecht.

Nieuw

Buizerdlaan 14

Bekijk kaart
8245 HL Lelystad (Flora West)
€ 850.000 k.k.
  • 285 m²
  • 6 kamers
  • 2023

Samenvatting

  • Deze woning wordt sinds 6 oktober 2025 aangeboden door Welkom Thuis Wonen;
  • De vrijstaande woning heeft een woonoppervlakte van 285 m² en beschikt over 6 kamers, waarvan 4 slaapkamers;
  • De woning is gebouwd In 2023 en ligt in de buurt Flora West in Lelystad.

Beschrijving

Overdracht

Vraagprijs
€ 850.000 k.k.
Aangeboden sinds
06-10-2025
Status
Beschikbaar
Beschikbaar
In overleg
Onderhoudsstaat
Zeer goed

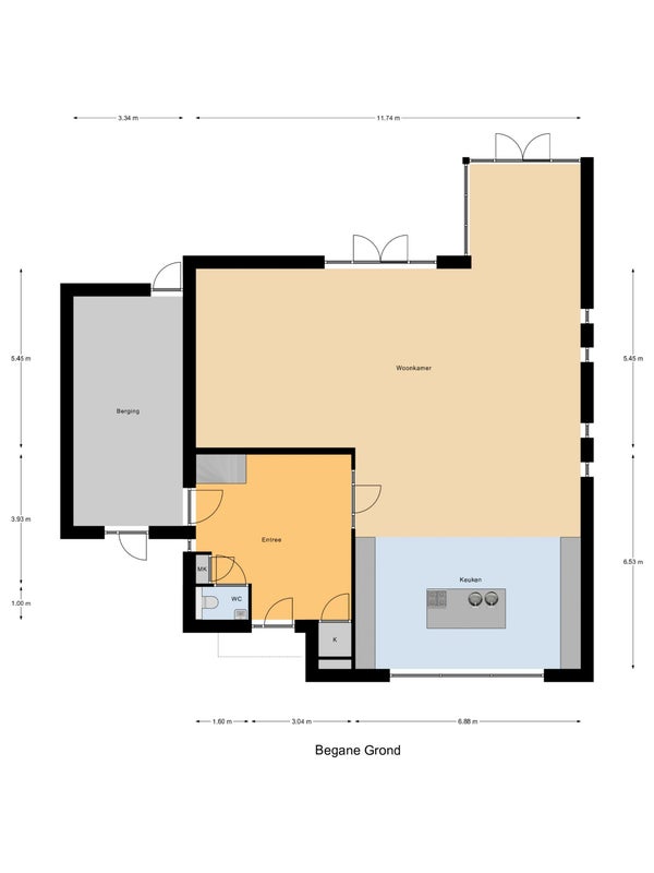
Oppervlakte en inhoud

Woonoppervlakte
285 m²
Perceeloppervlakte
633 m²
Inhoud
1.136 m³

Bouw

Type woning
Huis
Soort woning
Vrijstaande woning, Villa
Soort bouw
Bestaande bouw
Bouwjaar
2023
Ligging
  • Aan vaarwater
  • In een woonwijk

Indeling

Aantal kamers
6
Aantal slaapkamers
4
Aantal badkamers
1
Aantal woonlagen
2

Buitenruimte

Balkon
Niet aanwezig
Tuin
Aanwezig
Dakterras
Niet aanwezig

Energie

Isolatie
Vloerisolatie, Volledig geïsoleerd, Dakisolatie
Verwarming
Stadsverwarming, Volledige vloerverwarming
Warm water
Stadsverwarming
Energielabel
A++

Bergruimte

Schuur/Berging
Niet aanwezig

Parkeergelegenheid

Aanwezig
Ja
Soort parkeergelegenheid
Op eigen terrein

Garage

Aanwezig
Nee
Meld een probleem met deze woning
Contact met de makelaar Bel