Contact met de makelaar

Deze woning is gevonden buiten ons eigen netwerk. Met de knop hieronder kom je direct bij de aanbieder terecht.

Verkocht onder voorbehoud

Kamp 27 70

Bekijk kaart
8225 EM Lelystad (Kamp)
€ 350.000 k.k.
  • 115 m²
  • 4 kamers
  • 1981

Samenvatting

  • Deze woning wordt sinds 6 weken aangeboden door ANTON Makelaardij;
  • De tussenwoning heeft een woonoppervlakte van 115 m² en beschikt over 4 kamers, waarvan 3 slaapkamers;
  • De woning is gebouwd In 1981 en ligt in de buurt Kamp in Lelystad;
  • De woning beschikt onder andere over de volgende voorzieningen: Kabel TV, Glasvezelaansluiting, Mechanische ventilatie, Dakraam.

Beschrijving

ANTON Makelaardij biedt aan: Kamp 27-70 te Lelystad!

Alle informatie over deze woning kunt u vinden op: ******

Op zoek naar een instapklare eengezinswoning met een prachtige badkamer uit 2024 en royale leefkeuken? Dan is deze woning met energielabel B absoluut een bezichtiging waard!

Welkom bij Kamp 27-70, een instapklare eengezinswoning gelegen in de directe nabijheid van het centrum van Lelystad. Deze woning biedt een perfecte combinatie van comfortabel wonen en moderne voorzieningen, en is bij uitstek geschikt voor gezinnen en starters. Met een woonoppervlakte van maar liefst 115 m² en een perceel van 125 m², is er volop ruimte om van te genieten.

Bij binnenkomst voelt deze woning heerlijk ruim aan en valt direct de prachtige en moderne keuken op, welke in 2018 is vernieuwd. Hier kunt u samen met vrienden en familie heerlijke maaltijden bereiden. De open indeling zorgt voor een fijne interactie tussen de keuken en de woonkamer, wat het huis bijzonder sfeervol maakt. De keuken is niet alleen functioneel, maar ook esthetisch aantrekkelijk met een eigentijds design.

De woning beschikt over vier kamers, waaronder drie ruime slaapkamers. De slaapkamers zijn licht en bieden veel mogelijkheden voor persoonlijke inrichting, waardoor iedereen in het gezin zijn eigen plekje kan creëren. De nieuwe badkamer en toiletruimte (2024) zorgen ervoor dat u kunt genieten van een luxe gevoel in uw eigen thuis. Hier zijn hoogwaardige materialen gebruikt, wat het geheel een verzorgde uitstraling geeft.

De achtertuin is op het zuid/westen gelegen wat betekend dat u aan het einde van de dag nog heerlijk kunt genieten van de laatste zonnestralen. In de tuin staat een stenen berging voor uw fietsen en uw auto kunt u parkeren onder de carport.

Deze heerlijk lichte woning ligt op loopafstand van een schitterend park en alle denkbare voorzieningen als buurtwinkelcentrum, gezondheidscentrum en diverse (basis)scholen. Ook het stadscentrum en NS-station liggen in de directe omgeving. Binnen enkele (auto)minuten bereikt u de in- en uitvalswegen (A6 richting Amsterdam / noorden en N302 richting Harderwijk) van Lelystad. Dit alles maken het geheel tot een uiterst comfortabele en prettige woonomgeving!

Deze woning gelegen aan Kamp 27-70 biedt niet alleen comfort, maar ook een moderne uitstraling en slimme indeling. Bent u op zoek naar een gezellige plek om te wonen, die instapklaar is en waar u met het hele gezin kunt genieten? Wacht dan niet te lang en plan een bezichtiging! Dit is de kans om een huis te vinden dat direct aan al uw wensen voldoet. Voor een bezichtiging kunt u ons bellen, een aanvraag indienen via ****** of uiteraard via de eigen woningwebsite ******

Deze schitterende woning wordt u aangeboden middels een bieden-vanaf-prijs. Biedingen vanaf
€ 350.000,- k.k. zullen door de verkoper in behandeling worden genomen.

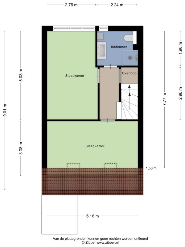
Indeling woning:

Begane grond (voorzien van een prachtige parketvloer):
Entree met meterkast (vernieuwd in 2018 en glasvezel aanwezig), garderobe, toiletruimte (2024) met hangcloset, fonteintje, designradiator en een raampje voor de natuurlijke ventilatie. Doorgang naar de lichte en ruime woonkamer. De tuingerichte leefkeuken (vernieuwd in 2018) is voorzien van koel/vries combinatie, inductie kookplaat, afzuigkap, vaatwasser, combi magnetron/oven, separate oven, close-in boiler, handige carrouselkast en losstaand keukenblok. Deur naar de tuin met berging en carport. Via een open trap bereikt u de eerste verdieping.

Eerste verdieping:
Overloop grenzend aan 2 ruime slaapkamers met nieuwe Velux dakramen, de moderne en zéér luxe badkamer is voorzien van een dubbel wastafelmeubel, ruime douchehoek, hangcloset, design radiator en raam voor natuurlijke ventilatie. Via een vaste trap bereikt u de tweede verdieping.

Tweede verdieping:
Ruime voorzolder met opstelplaats voor wasmachine en droger, dakraam, mechanische ventilatie en de cv-ketel (Remeha Avanta 2011). Ruime 3e slaapkamer met dakraam.

Bijzonderheden:

  • Instapklare woning met schitterende badkamer en toiletruimte (2024);
  • In de geliefde woonwijk de "Kamp" met veel voorzieningen op loopafstand;
  • Royale en moderne leefkeuken uit 2018;
  • 3 ruime slaapkamers;
  • Ruime tuin met carport op zuid/westen gelegen;
  • Energielabel B;
  • Aanvaarding in overleg.

Deze informatie is door ons met de nodige zorgvuldigheid samengesteld. Onzerzijds wordt echter geen enkele aansprakelijkheid aanvaard voor enige onvolledigheid, onjuistheid of anderszins, dan wel de gevolgen daarvan. Alle opgegeven maten en oppervlakten zijn indicatief.

Overdracht

Vraagprijs
€ 350.000 k.k.
Aangeboden sinds
18-11-2025
Status
Verkocht onder voorbehoud
Beschikbaar
In overleg
Onderhoudsstaat
Goed

Oppervlakte en inhoud

Woonoppervlakte
115 m²
Inhoud
406 m³

Bouw

Type woning
Huis
Soort woning
Tussenwoning (rijtjeshuis), Eengezinswoning
Soort bouw
Bestaande bouw
Bouwjaar
1981
Ligging
  • In een woonwijk
  • Beschut gelegen

Indeling

Aantal kamers
4
Aantal slaapkamers
3
Aantal badkamers
1
Aantal woonlagen
3
Voorzieningen
  • Kabel TV
  • Glasvezelaansluiting
  • Mechanische ventilatie
  • Dakraam

Buitenruimte

Balkon
Niet aanwezig
Tuin
Aanwezig (gelegen op het zuidwesten)
Tuinbeschrijving
achtertuin
Dakterras
Niet aanwezig

Energie

Isolatie
Dubbele beglazing, HR glas, Dakisolatie, Muurisolatie
Verwarming
CV-ketel
Warm water
CV-ketel, Elektrische boiler
Cv-ketel
Remeha Avanta (Gas, uit 2011, Eigendom)
Energielabel
B

Bergruimte

Schuur/Berging
Aanwezig
Omschrijving
Vrijstaand steen

Parkeergelegenheid

Aanwezig
Ja
Soort parkeergelegenheid
Openbaar

Garage

Aanwezig
Ja
Omschrijving
Carport
Meld een probleem met deze woning