Contact met de makelaar

Deze woning is gevonden buiten ons eigen netwerk. Met de knop hieronder kom je direct bij de aanbieder terecht.

Weth.Imminkstraat

Bekijk kaart
8148 PW Lemele (Kern Lemele)
€ 389.000 k.k.
  • 109 m²
  • 5 kamers
  • 1966

Samenvatting

  • Deze woning wordt sinds 2 maanden aangeboden door Blijhuis Makelaardij;
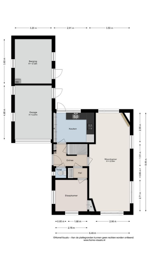
  • De tussenwoning heeft een woonoppervlakte van 109 m² en beschikt over 5 kamers, waarvan 4 slaapkamers;
  • De woning is gebouwd In 1966 en ligt in de buurt Kern Lemele in Lemele.

Beschrijving

Overdracht

Vraagprijs
€ 389.000 k.k.
Aangeboden sinds
13-10-2025
Status
Beschikbaar
Beschikbaar
In overleg

Oppervlakte en inhoud

Woonoppervlakte
109 m²
Perceeloppervlakte
494 m²

Bouw

Type woning
Huis
Soort woning
Tussenwoning (rijtjeshuis), Eengezinswoning
Soort bouw
Bestaande bouw
Bouwjaar
1966

Indeling

Aantal kamers
5
Aantal slaapkamers
4
Aantal badkamers
1

Buitenruimte

Dakterras
Niet aanwezig

Energie

Energielabel
G
Meld een probleem met deze woning