Contact met de aanbieder

Deze woning is gevonden buiten ons eigen netwerk. Via de knop hieronder ga je direct naar de website van de aanbieder.

Nieuw

Jodengang 64334 CM

Bekijk kaart
4334 CM Middelburg (Griffioen I)
€ 310.000 k.k.
  • 77 m²
  • 4 kamers
  • 1899

Samenvatting

  • Deze woning wordt sinds 26 februari 2026 aangeboden door Makelaar1;
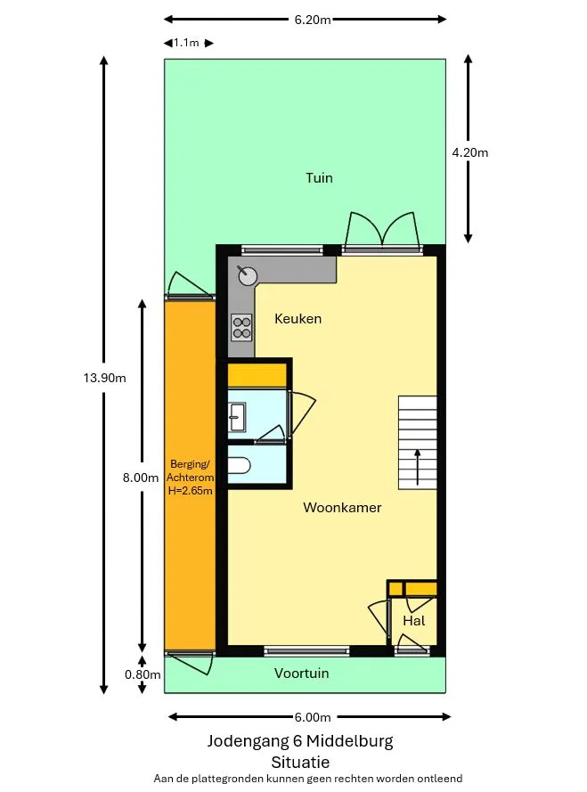
  • De tussenwoning heeft een woonoppervlakte van 77 m² en beschikt over 4 kamers, waarvan 3 slaapkamers;
  • De woning is gebouwd In 1899 en ligt in de buurt Griffioen I in Middelburg.

Beschrijving

Deze charmante, instapklare woning uit 1899 is gelegen in een rustig, autoluw straatje nabij het centrum van Middelburg. De woning beschikt over drie slaapkamers en een zonnige achtertuin. De slimme indeling benut elke vierkante meter optimaal, met veel aandacht voor lichtinval.

De lichte woonkamer heeft glad gestucte wanden en vloerverwarming, en biedt toegang tot de open Siematic hoekkeuken met uitzicht op de tuin. De achtertuin is beschut en privé, perfect voor ontspanning. De eerste verdieping heeft twee slaapkamers met hoge plafonds en een moderne badkamer met een inloopdouche. Op de tweede verdieping bevindt zich een multifunctionele derde slaapkamer met grote dakramen. Met een woonoppervlak van 77 m² en op loopafstand van voorzieningen, is deze woning ideaal voor een gezin.

Overdracht

Vraagprijs
€ 310.000 k.k.
Prijs per m²
€ 4.026
Aangeboden sinds
26-02-2026
Status
Beschikbaar
Beschikbaar
Per direct

Oppervlakte en inhoud

Woonoppervlakte
77 m²
Perceeloppervlakte
83 m²

Bouw

Type woning
Huis
Soort woning
Tussenwoning (rijtjeshuis), Eengezinswoning
Soort bouw
Bestaande bouw
Bouwjaar
1899

Indeling

Aantal kamers
4
Aantal slaapkamers
3
Aantal badkamers
1

Buitenruimte

Dakterras
Niet aanwezig

Energie

Energielabel
C
Meld een probleem met deze woning